ChangeOfUse Ferdigattest Leilighetsbygg

Bruksendring av loft og bod til leilighet, Hordvikneset 132C

📍 Hordvikneset 132A , 5108 HORDVIK

Nøkkelinfo

Sakstype
Bruksendring
Bygningstype
Leilighetsbygg
Bruksareal
29 m²
Boenheter
4
Kommune
Bergen
Fylke
Vestland
Gnr / Bnr
175 / 95
Saksnummer
BYGG-2025/14110
Fase
Ferdigattest

Om byggesaken

Bruksendring av loft og bod i en firemannsbolig på Hordvikneset 132C til en selvstendig leilighet. Loftsetasjen på 29 m² ombygges med ny planløsning som inkluderer bad på 5,8 m² og øvrige rom til boligformål. Bygningen er en trebygget bolig med saltak og flatt tak, med totalt 89,3 m² BRA per enhet. Det monteres også en rømningstige på fasaden i henhold til gjeldende forskrifter. Prosjektet er fullført og ferdigattest er utstedt.

Produkter og materialer

Elektro Elektrisk installasjon

Oppdatering av elektriske anlegg i ombygget loftsleilighet

Elektriske installasjoner tilpasset ny bruksenhet

Tømrer Innvendig ombygging

Ombygging av loft og bod til boligrom

Innvendige konstruksjoner og overflater tilpasset ny leilighet

Vinduer Fasadevindu

🧱 tre

Antall: 1

Vinduer i loft og øvrige rom i leiligheten

Dører Innvendige dører

Antall: 4

Innvendige dører til rom i leiligheten

Grunnarbeid Ingen nye grunnarbeider

Ingen nye grunnarbeider da det er bruksendring i eksisterende bygg

Fasade Rømningstige

🧱 metall

Antall: 1

Montering i henhold til gjeldende forskrifter, uten vesentlig endring av fasadens utseende

Rømningstige montert på fasade for rømningssikkerhet

VVS Sanitærinstallasjoner

VVS-installasjoner for nytt bad i loftsleilighet

Vann og avløp tilpasset ny bruksenhet

Bad Bad med sanitærutstyr

Antall: 1

Bad på 5,8 m² i loftsetasje

Nytt bad i ombygget loftsleilighet

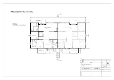
Plantegning

Enebolig 89.3 m²

Etasje 2 89.3 m²

Rom Areal Vinduer Dører
SOV 201 8.3 m² 1 1
STUE/KJØKKEN 202 40.9 m² 4 1
BOD 203 8.3 m² 1 1
SOV 204 13.7 m² 1 1
ENTRE 205 7.9 m² 0 1
BAD 206 7.5 m² 0 1
SP.BOD 207 5.3 m² 1 1
TERRASSE 208 9.1 m² 0 1

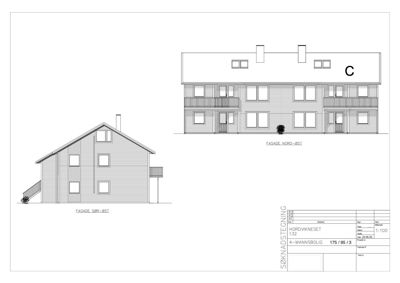
Fasader

4-MANNSBOLIG

Sør-Vest
Materiale
Tre
Taktype
Flatt tak
Vinduer
4
Dører
2
Balkonger
2
Synlige etasjer
2
Nord-Vest
Materiale
Tre
Taktype
Saltak
Vinduer
4
Dører
0
Balkonger
1
Synlige etasjer
2
Sør-Øst
Materiale
Tre
Taktype
Saltak
Vinduer
4
Dører
0
Balkonger
1
Synlige etasjer
2
Nord-Øst
Materiale
Tre
Taktype
Saltak
Vinduer
10
Dører
2
Balkonger
2
Synlige etasjer
2

Hendelser

09.07.2025 Ferdigattest. gnr. 175 bnr. 95, seksjon 3
08.07.2025 Tillatelse til tiltak. Gnr. 175 bnr. 95.Hordvikneset 132C, bruksendring bolig
08.07.2025 Ubw ordre 20673818 Bruksendring tilleggsdel til hoveddel loft og bod.
08.07.2025 Søknad om ferdigattest
08.07.2025 Fakturagrunnlag
07.07.2025 Samtykke
04.07.2025 Tilleggsopplysninger - 175/95/0/3 Hordvikneset 132C, bruksendring bolig
03.07.2025 BYGG-2025/14110. Hordvikneset 132 C. Behov for tilleggsopplysninger
24.06.2025 Søknad om bruksendring- 175/95/0/3 Hordvikneset 132C, bruksendring bolig