ChangeOfUse Ferdigattest Leilighetsbygg

Bruksendring til bolig med takvindu i Kong Oscars gate 6, Bergen

📍 Kong Oscars gate 6 , 5017 BERGEN

Nøkkelinfo

Sakstype
Bruksendring
Bygningstype
Leilighetsbygg
Bruksareal
75 m²
Boenheter
1
Kommune
Bergen
Fylke
Vestland
Gnr / Bnr
166 / 507
Saksnummer
BYGG-2025/14407
Fase
Ferdigattest

Om byggesaken

Bruksendring av fremre del av 3. etasje i et eksisterende leilighetsbygg i Kong Oscars gate 6, Bergen, fra kontor til boligformål. Det etableres en ny boenhet på ca. 74,8 m² BRA med rom som stue, kjøkken, bad og to soverom. Bygningen er en eldre trebygning med saltak og trefasade, og tiltaket inkluderer innsetting av ett takvindu på 70 x 100 cm mot vest. Det er gjennomført oppgradering av takkonstruksjon, sprinkleranlegg, ventilasjon, sanitær og brannalarm. Tiltaket omfatter også oppgradering til gjeldende tekniske krav innenfor eksisterende bygningsmasse, med unntak for heis og romhøyde som det er gitt dispensasjon for. Støyforhold er dokumentert tilfredsstillende i henhold til gjeldende krav. Det er ikke etablert nye parkeringsplasser, men krav til sykkelparkering er ivaretatt. Tiltaket er ferdigstilt med godkjent ferdigattest.

Produkter og materialer

Gulv Innvendige gulv

Oppgradering av gulv i boenhet, inkl. våtrom

Gulvbelegg og fliser i våtrom og øvrige rom

Vinduer Takvindu

🧱 Glass, tre/aluminium ramme

Antall: 1

Takvindu 70 x 100 cm mot vest

Innsetting av takvindu for lys og lufting i ny boenhet

Tømrer Innvendige arbeider

🧱 Tre

Innvendige vegger, himling og dører tilpasset ny boenhet

Tømrerarbeid i forbindelse med bruksendring

Ventilasjon Ventilasjonsanlegg

Ventilasjonsarbeid for ny boenhet

Ventilasjon for tilfredsstillende inneklima

Fasade Trepanel

🧱 Tre

Eksisterende trefasade opprettholdes, ingen vesentlige endringer

Vedlikehold og tilpasning av fasade i forbindelse med bruksendring

Maling Innvendig maling

Innvendig maling og overflatebehandling i ny boenhet

Overflatebehandling av vegger og tak

Bad Våtromsarbeid

Oppgradering av bad i henhold til TEK17

Bad med sanitærutstyr og fliser

Elektro Brannalarm og ledesystem

Oppgradering av brannalarm og ledesystem i bygget

Brannsikkerhetstiltak i forbindelse med bruksendring

Grunnarbeid Oppgradering vannstikkledning

Oppdimensjonering av stikkledning vann til 110 mm, inkl. tilbakeslagssikring

VA-tilknytning for ny boenhet

VVS Sprinkleranlegg

Oppgradering og dokumentasjon av eksisterende sprinkleranlegg, inkl. tilbakeslagssikring kategori 4

Sprinkleranlegg for brannsikkerhet i bygget

VVS Sanitærinstallasjoner

Oppgradering av sanitærinstallasjoner i ny boenhet

Sanitærarbeid i forbindelse med bruksendring

Tak Saltak

🧱 Tre, takstein

Utbedring av takkonstruksjon med nye bolter og forsterkninger

Forsterkning av takkonstruksjon i 3. etasje

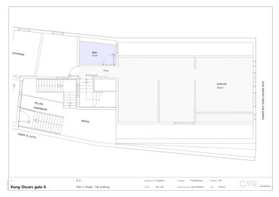
Plantegning

Enebolig 120.0 m²

Etasje 3 120.0 m²

Rom Areal Vinduer Dører
Soverom 301 0.0 m² 0 0
Bad 302 4.4 m² 0 1
Kontor 303 49.8 m² 0 0
Felles gang 304 0.0 m² 0 0
Repos 305 0.0 m² 0 0
STUE STUE 0.0 m² 0 0
SOVEROM SOVEROM 0.0 m² 0 0
KJOKKEN KJOKKEN 0.0 m² 0 0
BAD BAD 0.0 m² 0 0

Fasader

Enebolig

Sør
Materiale
Tre
Taktype
Saltak
Vinduer
10
Dører
1
Synlige etasjer
2

Hendelser

08.04.2026 Ferdigattest, 166/507, Kong Oscars gate 6
01.04.2026 Kong Oscars gate 6 Søknad om ferdigattest 166/507
26.01.2026 Fakturagrunnlag
26.01.2026 ubw ordre 20686705
09.01.2026 Tillatelse til endring, 166/507, Kong Oscars gate 6
07.01.2026 Kong Oscars gate 6 Søknad om endring av gitt tillatelse eller godkjenning 166/507
31.10.2025 Igangsettingstillatelse, 166/507, Kong Oscars gate 6
31.10.2025 Kong Oscars gate 6 Supplering av søknad 166/507
31.10.2025 Til info - Oppdaterte dokumenter er sendt via Holte
30.10.2025 Spørsmål om tiltaksklasse for brannprosjektering og uavhengig kontroll - 166/507/0/0 Kong Oscars gate 6, bruksendring
27.10.2025 Kong Oscars gate 6 Søknad om igangsettingstillatelse 166/507
16.09.2025 Fakturagrunnlag
16.09.2025 Ubw ordre 20676995
26.08.2025 Rammetillatelse, 166/507, Kong Oscars gate 6
18.08.2025 Byantikvarens tilbakemelding 2025/202697 166/507/0/0 Kong Oscars gate 6, bruksendring
24.07.2025 Brannvesenets uttalelse vedr. Intern høring. Gnr. 166 Bnr 507. Kong Oscars gate 6
24.07.2025 Intern høring
08.07.2025 Bekreftelse på mottatt søknad - 166/507/0/0 Kong Oscars gate 6, bruksendring
04.07.2025 Kong Oscars gate 6 Søknad om rammetillatelse 166/507