ChangeOfUse UnderBehandling Leilighetsbygg

Bruksendring og ny boenhet i leilighetsbygg, Leitet 15, Bergen

📍 Leitet 15 , 5018 BERGEN

Nøkkelinfo

Sakstype
Bruksendring
Bygningstype
Leilighetsbygg
Bruksareal
64 m²
Boenheter
3
Kommune
Bergen
Fylke
Vestland
Gnr / Bnr
166 / 1017
Saksnummer
BYGG-2025/17575
Fase
Under behandling

Om byggesaken

Ny selvstendig boenhet på 64 m² etableres i første etasje i eksisterende leilighetsbygg på Leitet 15 i Bergen. Tiltaket innebærer innvendige ombygginger, etablering av brann- og lydskille (EI 60, lydklasse C) mellom boenheter, samt felles inngangsparti og omfordeling av boder. Byggets ytre form, fasader og plassering forblir uendret. Den nye boenheten får privat balkong på 8,8 m² med gode solforhold, og tilgang til felles uteoppholdsareal på ca. 35 m² med tilfredsstillende støy- og solforhold. Totalt vil eiendommen ha tre boenheter etter tiltaket. Tiltaket krever dispensasjon fra avstandskrav til kommunal vei, som er innvilget, og oppgraderinger av vannledning anbefales. Parkering løses med soneparkering, og sykkelparkering etableres på fellesareal. Tiltaket er i tråd med gjeldende planer og kulturmiljøhensyn.

Produkter og materialer

VVS Rørteknisk anlegg

Faglig vurdering av eksisterende private ledninger for økt belastning

VVS-arbeider knyttet til ny boenhet og oppgradering av vannforsyning

Fasade Vinduer

Vinduer mot stille side for soverom, oppfyller støykrav i gul sone

Vinduer for ny boenhet med støyhensyn

Fasade Balkong

Antall: 1

Privat balkong på 8,8 m² med gode solforhold mot sørvest

Balkong til ny boenhet for uteopphold

Dører Innvendige dører

Nye dører for avstengning og lydskille mellom boenheter

Innvendige dører i ny boenhet og brannskille

Annet Felles inngangsparti

Antall: 1

Felles inngangsparti på 8 m² for eksisterende og ny boenhet

Felles inngangsparti for boenheter

Tømrer Brann- og lydskille

Brannmotstand EI 60 og lydklasse C mellom boenheter

Nye skillekonstruksjoner for brann og lyd mellom boenheter

Bad Baderom

Antall: 1

Baderom på 8,6 m² i ny boenhet

Bad med nødvendige sanitærinstallasjoner

Kjøkken Kjøkkeninnredning

Antall: 1

Kjøkken på 13,8 m² i ny boenhet

Kjøkkeninnredning for ny boenhet

Elektro Ny installasjon

Elektriske installasjoner i ny boenhet

Gulv Gulvbelegg

Gulvbelegg i ny boenhet

Grunnarbeid Vannledning

Utskifting av gammel 20 mm vannledning anbefales for økt kapasitet

Oppgradering av vannforsyning til eiendommen

Sykkelparkering Sykkelstativer

Antall: 2

To sykkelparkeringsplasser per boenhet på fellesareal

Sykkelparkering for beboere

Ventilasjon Ventilasjonssystem

Ventilasjon i ny boenhet iht. TEK17

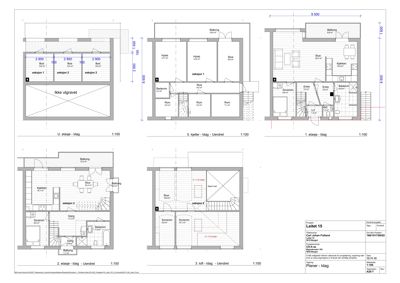
Plantegning

Enebolig 410.0 m²

Etasje 0 104.0 m²

Rom Areal Vinduer Dører
Bod 01 8.6 m² 1 1
Bod 02 8.4 m² 1 1
Bod 03 8.6 m² 1 1
Hybel 04 13.7 m² 1 1
Hybel 05 13.0 m² 1 1
Stue 06 9.6 m² 1 1
Baderom 07 2.3 m² 0 1
Stue 08 8.0 m² 0 1
Rom 09 5.0 m² 0 1
Rom 10 5.5 m² 0 1
Rom 11 7.1 m² 0 1
Bod 001 8.6 m² 1 0
Bod 002 8.4 m² 1 0
Bod 003 8.6 m² 1 0

Etasje 1 102.0 m²

Rom Areal Vinduer Dører
Soverom 101 8.6 m² 1 1
Entre 102 3.5 m² 0 1
Entre 103 3.9 m² 0 1
V.F 104 1.9 m² 0 1
WC 105 1.3 m² 0 1
Baderom 106 8.6 m² 1 1
Stue 107 26.3 m² 1 1
Kjøkken 108 13.8 m² 1 1
Balkong 109 8.8 m² 0 1

Etasje 2 102.0 m²

Rom Areal Vinduer Dører
Soverom 201 8.6 m² 1 1
Gang 202 11.3 m² 0 1
Gang 203 1.5 m² 0 1
Baderom 204 7.2 m² 1 1
Kjøkken 205 14.7 m² 1 1
Stue 206 22.2 m² 1 1
Balkong 207 12.3 m² 0 1
Balkong 208 0.8 m² 0 1

Etasje 3 102.0 m²

Rom Areal Vinduer Dører
Soverom 301 6.9 m² 1 1
Soverom 302 15.1 m² 1 1
Stue 303 19.8 m² 1 1

Fasader

Leitet 15

Vest
Taktype
Saltak
Vinduer
16
Dører
0
Synlige etasjer
3
Sør
Taktype
Saltak
Vinduer
4
Dører
0
Balkonger
2
Synlige etasjer
2
Nord
Taktype
Saltak
Vinduer
10
Dører
4
Balkonger
4
Synlige etasjer
2
Øst
Taktype
Saltak
Vinduer
14
Dører
4
Balkonger
4
Synlige etasjer
2

Hendelser

14.04.2026 Leitet 15 Søknad om igangsettingstillatelse 166/1017
04.02.2026 Fakturagrunnlag
04.02.2026 ubw ordre 20687679
30.01.2026 Rammetillatelse, 166/1017, Leitet 15
08.01.2026 Bergenhus. Gnr 166 bnr 1017, Leitet. Søknad om dispensasjon fra byggegrense langs kommunal veg. Vedtak fra Bymiljøetaten.
23.12.2025 Tilleggsopplysninger - 166/1017/0/0 Leitet 15, bruksendring og etablering av ny boenhet
09.12.2025 Behov for ytterligere tilleggsopplysninger
09.12.2025 Anmodning om uttalelse
09.12.2025 Intern høring
08.12.2025 Leitet 15 Supplering av søknad 166/1017
04.12.2025 Behov for tilleggsopplysninger
19.11.2025 Bekreftelse på mottatt søknad - 166/1017/0/0 Leitet 15, bruksendring og etablering av ny boenhet
17.11.2025 Leitet 15 Søknad om rammetillatelse 166/1017