ChangeOfUse Igangsettingstillatelse Leilighetsbygg

Bruksendring og takopplett i leilighetsbygg, Michael Krohns gate 35, Bergen

📍 Michael Krohns gate 33 , 5057 BERGEN

Nøkkelinfo

Sakstype
Bruksendring
Bygningstype
Leilighetsbygg
Bruksareal
56 m²
Boenheter
1
Kommune
Bergen
Fylke
Vestland
Gnr / Bnr
158 / 133
Saksnummer
BYGG-2024/14007
Fase
Igangsettingstillatelse

Om byggesaken

Prosjektet omfatter bruksendring fra tilleggsdel til hoveddel i eksisterende leilighetsbygg, med etablering av en ny boenhet på loftet på 56,4 m². Det utføres takopplett over eksisterende trappeløp for å oppnå nødvendig romhøyde på minimum 2,1 meter, samt innsetting av åtte nye takvinduer for bedre lysinnslipp. Bygget består av flere etasjer med totalt areal på ca. 1300 m², og tiltaket innebærer ingen økning i bygningsvolum utover takopplettets begrensede omfang. Fasadeendringene er små og tilpasset eksisterende bygningsstruktur, og tiltaket er i tråd med gjeldende reguleringsplan og kommuneplanens arealdel. Eiendommene Michael Krohns gate 33 og 35 skal slås sammen og reseksjoneres som del av prosjektet. Det søkes dispensasjon fra uteoppholdsareal, avstand til nabogrense og krav til heis. Prosjektet inkluderer også oppdatering av renovasjonsteknisk plan og brannprosjektering.

Produkter og materialer

Tømrer Innvendige konstruksjoner og montering

Detaljprosjektering og utførelse av tømrerarbeid i forbindelse med bruksendring og takopplett

Tømrerarbeid for ombygging og takopplett

Elektro Ledesystemer

Installasjon av ledesystemer i tråd med brannprosjektering

Ledesystem for rømningsveier

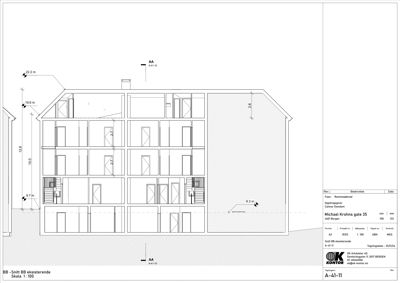
Tak Takopplett over trappeløp

Antall: 1

Takopplett med gesimshøyde kote +21,1 meter, innvendig romhøyde minimum 2,1 meter, tilpasset eksisterende bygningsvolum og estetikk

Takopplett for å oppnå nødvendig romhøyde og rømningsvei i trappeløp

VVS Varme og kuldeinstallasjoner

Varme- og kuldeinstallasjoner i ny boenhet og øvrige deler av bygget

Varme- og kuldeinstallasjoner for komfort og teknisk funksjon

Ventilasjon Ventilasjon- og klimainstallasjoner

Ventilasjon og klimainstallasjoner i ny boenhet og eksisterende bygg

Ventilasjon og klimaanlegg for inneklima

Grunnarbeid Sammenføyning av matrikkelenheter

Antall: 1

Sammenslåing av eiendommene Michael Krohns gate 33 og 35 til én eiendom med reseksjonering

Juridisk og matrikulær sammenslåing som del av prosjektet

Mur Murarbeid

Murarbeid knyttet til tilpasninger i eksisterende bygningsmasse

Murarbeid i forbindelse med ombygging

Gulv Innvendige overflater

Oppgradering av gulvflater i ny boenhet og øvrige deler

Gulvbehandling og overflater

Elektro Brannalarmanlegg

Installasjon av brannalarmanlegg med seriekoblede brannmeldere i henhold til brannkonsept

Brannalarmanlegg for sikkerhet og brannvarsling

Mur Miljøsanering og riving

Miljøsanering og riving i forbindelse med ombygging

Miljøsanering og riving av nødvendige bygningsdeler

VVS Sanitærinstallasjoner

Oppdatering og installasjon av sanitærutstyr i ny boenhet og øvrige deler av bygget

Sanitærinstallasjoner for ny boenhet og eksisterende bygg

Fasade Fasadeendringer

🧱 Pusset fasade

Små fasadeendringer i forbindelse med takvinduer og takopplett, tilpasset eksisterende fasade og bymiljø

Fasadeendringer for å integrere takvinduer og takopplett

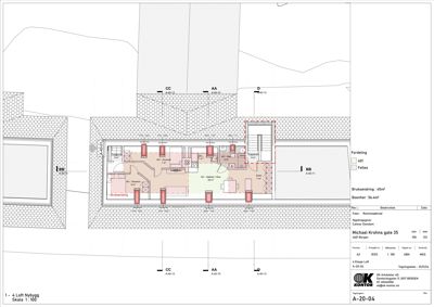
Vinduer Takvinduer

Antall: 8

Nye takvinduer i loftsetasje, dimensjoner bl.a. 470x1320, 600x1100 mm, plassert for å gi tilstrekkelig lysinnslipp uten å skjemme fasaden

Takvinduer for økt dagslys i ny boenhet på loft

Maling Innvendig maling

Innvendig maling og overflatebehandling i ny boenhet og øvrige deler

Maling av vegger og tak

Plantegning

Enebolig 1,300.9 m²

Etasje 0 756.5 m²

Rom Areal Vinduer Dører
Kjellerstue 101 22.0 m² 0 2
Hybel 102 20.0 m² 0 1
Bod 201 5.0 m² 0 1
Bod 202 5.0 m² 0 1
Bod 301 5.0 m² 0 1
Bod 302 5.0 m² 0 1
Bod 401 5.0 m² 0 1
Hjemmekino 101 9.0 m² 0 1
Bad 101 9.0 m² 0 1
Gang 101 3.0 m² 0 2
Bod 101 1.0 m² 0 1
Teknisk 101 1.0 m² 0 1
Gang 101 2.0 m² 0 1
Gang 102 4.0 m² 0 1
Bad 102 6.0 m² 0 1
Bod 102 1.0 m² 0 1
Teknisk 102 2.0 m² 0 1
Gang 102 8.0 m² 0 1
Felles vaskerom 201 6.0 m² 0 1
Trapperom 101 8.0 m² 0 0
Trapperom 102 3.0 m² 0 0
Trapperom 102 8.0 m² 0 0
Teknisk Teknisk 1.0 m² 0 1
Felles vaskerom Felles vaskerom 6.0 m² 0 1
Trapperom Trapperom 8.0 m² 0 1
Gang Gang 2.0 m² 0 1

Etasje 3 164.0 m²

Rom Areal Vinduer Dører
Soverom 301 18.0 m² 1 1
Stue 301 23.0 m² 2 1
Soverom 301 23.0 m² 1 1
Kjøkken 301 5.0 m² 0 1
Bad 301 2.0 m² 0 1
WC 301 1.0 m² 0 1
Entre 301 5.0 m² 0 1
Trapperom 301 9.0 m² 0 1
Soverom 302 17.0 m² 1 1
Stue 302 21.0 m² 2 1
Soverom 302 21.0 m² 1 1
Kjøkken 302 5.0 m² 0 1
Bad 302 2.0 m² 0 1
WC 302 1.0 m² 0 1
Entre 302 5.0 m² 0 1
Trapperom 302 9.0 m² 0 1

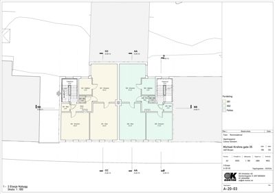
Etasje 1 162.0 m²

Rom Areal Vinduer Dører
Trapperom 101 17.0 m² 0 1
Kjøkken 101 19.0 m² 0 1
Entre 101 7.0 m² 0 2
Bad 101 3.0 m² 0 1
Soverom 101 14.0 m² 1 1
Soverom 101 15.0 m² 1 1
Soverom 101 8.0 m² 1 1
Trapperom 102 17.0 m² 0 1
Bad 102 5.0 m² 0 1
WC 102 1.0 m² 0 1
Entre 102 12.0 m² 0 2
Kjøkken/stue 102 19.0 m² 1 1
Soverom 102 13.0 m² 1 1
Soverom 102 12.0 m² 1 1

Etasje 4 56.4 m²

Rom Areal Vinduer Dører
Kjøkken / Stue 401 28.0 m² 3 1
Soverom 401 7.0 m² 2 1
Soverom 401 6.0 m² 2 1
Bad 401 3.0 m² 0 1
Trapperom 401 9.0 m² 0 1
Entre 401 7.0 m² 0 1

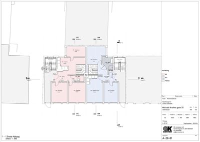
Etasje 2 162.0 m²

Rom Areal Vinduer Dører
Trapperom 201 9.0 m² 0 1
Kjøkken 201 5.0 m² 0 1
Stue 201 23.0 m² 2 1
WC 201 1.0 m² 0 1
Bad 201 2.0 m² 0 1
Entre 201 5.0 m² 0 1
Soverom 201 18.0 m² 1 1
Soverom 201 23.0 m² 1 1
Trapperom 202 9.0 m² 0 1
Kjøkken 202 5.0 m² 0 1
Stue 202 21.0 m² 2 1
WC 202 1.0 m² 0 1
Bad 202 2.0 m² 0 1
Entre 202 5.0 m² 0 1
Soverom 202 21.0 m² 1 1
Soverom 202 17.0 m² 1 1

Fasader

Eksisterende

Nord-øst
Materiale
Pusset
Taktype
Saltak
Vinduer
19
Dører
1
Synlige etasjer
4

Nybygg

Sør-Øst
Taktype
Saltak
Vinduer
4
Dører
1
Synlige etasjer
3
Sør-vest
Taktype
Saltak
Vinduer
24
Dører
3
Synlige etasjer
3
Nord-øst
Taktype
Saltak
Vinduer
16
Dører
1
Synlige etasjer
3

Enebolig

Nordvest
Materiale
Tre
Taktype
Saltak
Takmat.
Tegl
Vinduer
4
Dører
1
Balkonger
1
Synlige etasjer
2

Hendelser

14.04.2026 Michael Krohns gate 35 Supplering av søknad 158/133
01.09.2025 Igangsettingstillatelse, 158/133, Michael Krohns gate 35
18.08.2025 Michael Krohns gate 35 Søknad om igangsettingstillatelse 158/133
18.03.2025 Fakturagrunnlag 2024
18.03.2025 Ubw ordre 20665540
10.03.2025 Rammetillatelse - 158/133 - Michael Krohns gate 35
13.01.2025 Michael Krohns gate 35 Supplering av søknad 158/133
20.12.2024 Bekreftelse ikke behov for ny nabovarsling
20.12.2024 Avklaring - 158/133/0/0 Michael Krohns gate 35, bruksendring fra tilleggsdel til hoveddel
19.12.2024 Spørsmål om å redusere takopplett
18.12.2024 Byantikvarens uttalelse. BYGG-2024/14007. Michael Krohns gate 35, bruksendring fra tilleggsdel til hoveddel.
18.12.2024 Bekrefter utsatt frist - 158/133/0/0 Michael Krohns gate 35, bruksendring fra tilleggsdel til hoveddel
17.12.2024 Behov for utsatt frist - 158/133/0/0 Michael Krohns gate 35, bruksendring fra tilleggsdel til hoveddel
02.12.2024 Behov for tilleggsopplysninger
02.12.2024 Intern høring Byantikvaren BYGG-2024/14007
29.11.2024 Michael Krohns gate 35 Supplering av søknad 158/133
18.11.2024 Bekrefter utsatt frist - 158/133/0/0 Michael Krohns gate 35, bruksendring fra tilleggsdel til hoveddel
17.11.2024 Til info - 158/133/0/0 Michael Krohns gate 35, bruksendring fra tilleggsdel til hoveddel
08.10.2024 Utsatt frist
07.10.2024 Ber om utsatt frist
25.09.2024 Behov for tilleggsopplysninger - Varsel om avvisning
19.06.2024 Behov for tilleggsopplysninger
06.06.2024 Bekreftelse på mottatt søknad - 158/133/0/0 Michael Krohns gate 35, bruksendring fra tilleggsdel til hoveddel
05.06.2024 Michael Krohns gate 35 Søknad om rammetillatelse 158/133