ChangeOfUse UnderBehandling Leilighetsbygg

Bruksendring av flerboligbygg i Michael Krohns gate 62, Bergen

📍 Michael Krohns gate 62 , 5057 BERGEN

Nøkkelinfo

Sakstype
Bruksendring
Bygningstype
Leilighetsbygg
Bruksareal
226 m²
Boenheter
1
Kommune
Bergen
Fylke
Vestland
Gnr / Bnr
158 / 156
Saksnummer
BYGG-2026/12503
Fase
Under behandling

Om byggesaken

Bruksendring av Urdihuset, et fredet flerboligbygg fra næringsformål (museum/kunstgalleri) til boligformål med én boenhet. Bygningen har et bruksareal på ca. 226 m² i 1. etasje og et loft på 75 m² som benyttes som bodareal. Det gjøres minimale innvendige endringer, blant annet flytting av kjøkken, uten ytre bygningsmessige endringer. Eiendommen har uteoppholdsareal på minimum 40 m² og parkeringsplass for én bil samt seks sykkelplasser. Det er gitt dispensasjon fra plankrav og byggegrenser, samt godkjent endret bruk av avkjørsel til fylkesveg. Bygget ligger i gul støysone, men tilfredsstiller krav til bokvalitet og uteareal. Prosjektet sikrer vern gjennom aktiv bruk av et kulturminne og bidrar til økt boligtilbud i et område med høy barneutflytting.

Produkter og materialer

Kjøkken Nytt kjøkken

Antall: 1

Kjøkken flyttes fra baksiden til fremsiden av huset, i henhold til godkjente tegninger

Nytt kjøkken i bolig, flyttet plassering

Dører Innvendige og ytterdører

Antall: 27

Dører i eksisterende bygg, inkludert ytterdører og innvendige dører til rom og garderober

Terrasse Uteoppholdsareal

Minimum 40 m² uteoppholdsareal på stille side med gode solforhold

Uteareal for bolig med tilfredsstillende kvaliteter

Fasade Ingen endringer

Ingen ytre endringer på bygget i forbindelse med bruksendring

Fasaden beholdes uendret for å ivareta fredningsstatus

Isolasjon Eksisterende bygningsmasse

Ingen endringer i isolasjon grunnet fredning og bevaring

Isolasjon i eksisterende bygg beholdes som før

Parkering Bil- og sykkelparkering

1 biloppstillingsplass og 6 sykkelparkeringsplasser i henhold til KPA 2018

Parkering for bolig og sykkelparkering ved inngang

Gulv Eksisterende gulv

Ingen vesentlige endringer, eksisterende gulv beholdes

Gulv i eksisterende bygg beholdes, eventuelt tilpasses boligbruk

Vinduer Fasadevindu

Antall: 14

Vinduer i eksisterende bygg, inkludert 10 vinduer i loftsetasje

Grunnarbeid Opparbeidelse av avkjørsel og snuplass

Avkjørsel skal ha svingradius 4 m, fall 5 cm de første 2 meterne, og tilfredsstille siktkrav 30 m i begge retninger og 3x35 m til sykkelfelt

Opparbeidelse og godkjenning av avkjørsel til fylkesveg med snuplass på egen grunn

Elektro Elektrisk anlegg

Oppgradering til boligstandard i henhold til TEK17, med unntak for krav som strider mot fredning

Elektrisk installasjon tilpasset boligbruk

Bad Bad med vindu

Antall: 1

Bad på 7 m² med vindu

Bad med dagslys og ventilasjon

Trapper Innvendig trapp til loft

Antall: 1

Ny innvendig trapp til loft, lett tilgjengelig og nær dør til hage

Trapp til loft som benyttes som bodareal

VVS Sanitærinstallasjoner

Antall: 3

Bad 1 (4 m²), Bad 2 (3,5 m²), Bad (7 m²) med nødvendige sanitærinstallasjoner

Oppgradering eller tilpasning av sanitærinstallasjoner i eksisterende bad

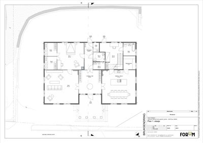
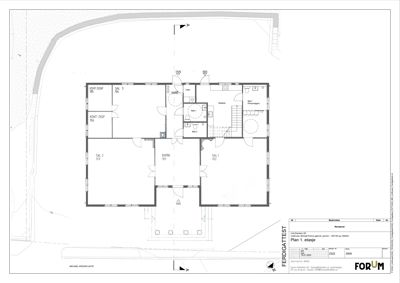
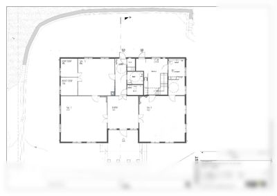
Plantegning

Enebolig 0.0 m²

Etasje 1 0.0 m²

Rom Areal Vinduer Dører
ENTRE 101 0.0 m² 0 4
SAL 1 102 0.0 m² 3 2
SAL 2 103 0.0 m² 3 1
SAL 3 104 0.0 m² 2 1
KONT-DISP 105 0.0 m² 1 1
KONT-DISP 106 0.0 m² 1 1
GARD U01 0.0 m² 0 2
Vask. U02 0.0 m² 0 1
Kjøkken U03 0.0 m² 1 2
Bad 1 U04 0.0 m² 0 1
Bad 2 U05 0.0 m² 0 1
Bad / Personalgard. U06 0.0 m² 0 1
Stue Stue 47.0 m² 3 2
Sov 1 Sov 1 30.0 m² 1 1
Gard Gard 7.0 m² 1 1
Vindfang / Hall Vindfang / Hall 22.0 m² 2 3
Bilningang Bilningang 9.5 m² 0 2
Vask Vask 2.0 m² 0 1
Bad 1 Bad 1 4.0 m² 0 1
Bad 2 Bad 2 3.5 m² 0 1
Sov 2 Sov 2 22.0 m² 1 1
Bad Bad 7.0 m² 1 1
Spisskammer Spisskammer 7.0 m² 1 1
Kjøkken / Allrom Kjøkken / Allrom 47.0 m² 2 2

Etasje 3 0.0 m²

Rom Areal Vinduer Dører
Loft 0 0.0 m² 10 0

Hendelser

14.04.2026 Michael Krohns gate 62 Søknad om rammetillatelse 158/156