ChangeOfUse UnderBehandling Leilighetsbygg

Oppdeling og tilbygg av bolig med bruksendring på Nerhågen 20

📍 Nerhågen 18 , 9414 HARSTAD

Nøkkelinfo

Sakstype
Bruksendring
Bygningstype
Leilighetsbygg
Bruksareal
668 m²
Boenheter
4
Kommune
Harstad - Hárstták
Fylke
Troms - Romsa - Tromssa
Gnr / Bnr
51 / 870
Saksnummer
2025/3059
Fase
Under behandling

Om byggesaken

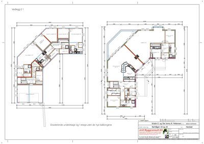
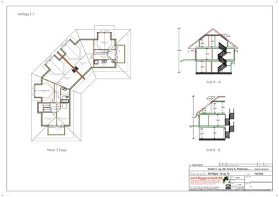
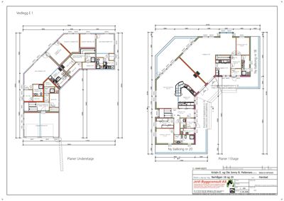
Eksisterende bolig på Nerhågen 20 gjennomgår oppdeling fra to til fire boenheter med fysisk adskillelse og nye innganger. Prosjektet inkluderer tilbygg av balkonger på til sammen ca. 60 m², samt bruksendring som medfører ny bygningskode. Boligen er et trebygget leilighetsbygg med saltak og tegltak, fordelt på kjeller, to etasjer og loft, med totalt ca. 668 m² BRA. Det er etablert brannskiller mellom boenhetene i henhold til TEK17, og vinduer er skiftet til 3-lags støydempende glass. Utomhusarealene inkluderer lekeplass og sandkasse, og det er dokumentert støyreduserende tiltak. Prosjektet krever oppdatering av tiltaksklasse til klasse 2 på grunn av kompleksiteten og antall boenheter. Det foreligger omfattende tegninger som viser rominndeling, trapper, balkonger og fasader.

Produkter og materialer

Fasade Trepanel

🧱 Tre

Trepanel på fasader sør, nord, nordvest og vest

Fasade med trepanel som eksisterende

VVS Sanitærinstallasjoner

Nye bad og vaskerom i boenheter, oppgradering iht. TEK17

Sanitærinstallasjoner for fire boenheter

Grunnarbeid Terrengjustering og oppfylling

Små terrengendringer og oppfylling av gårdsplass

Terrengarbeid i forbindelse med tilbygg og oppdeling

Vinduer Fasadevindu

🧱 Tre med 3-lags støydempende glass

Antall: 31

Vinduer skiftet til 3-lags lydreduserende glass for hele bygget

Nye og eksisterende fasadevindu med lydreduserende 3-lags glass

Trapper Innvendig trapp

Antall: 1

Trapperom med trapp mellom etasjer

Innvendig trapp i bygget

Gulv Innvendige gulv

Oppdatering av gulvflater i forbindelse med bruksendring og oppdeling

Innvendige gulv i boenheter og fellesarealer

Utendørs Lekeplass og støyskjerming

Lekeplass med sandkasse og lekestativ, støyskjerm etablert i henhold til reguleringsplan

Utendørs leke- og oppholdsareal for boenheter

Brannvern Brannskille og brannvarsling

Brannskiller mellom boenheter, separate røykvarslere og brannskille i etasjeskiller

Brannsikring i henhold til TEK17 for fire boenheter

Tak Saltak med teglstein

🧱 Teglstein

Antall: 1

Eksisterende saltak med teglstein opprettholdes

Taktekking med teglstein på saltak

Balkong Balkonger på 2 plan

🧱 Tre og metallrekkverk

Antall: 2

Totalt ca. 59,7 m² balkonger fordelt på kjeller og 1. etasje

Nye balkonger som tilbygg til eksisterende bolig

Elektro Elektriske installasjoner

Elektriske anlegg oppdatert for fire boenheter med separate innganger

Elektriske installasjoner i boenheter og fellesarealer

Plantegning

Enebolig 394.2 m²

Etasje 0 120.5 m²

Rom Areal Vinduer Dører
Gang G 15.2 m² 0 4
Stue 101 35.2 m² 3 2
Kjøkken 102 12.5 m² 1 1
Bad 103 8.5 m² 0 1
Vaskerom 104 4.2 m² 0 1
Soverom 105 14.5 m² 1 1
Soverom 106 12.8 m² 1 1
Bod 107 6.5 m² 0 1
Garasje 108 25.1 m² 1 1
Kjellerrom Kjellerrom H20 18.0 m² 1 1
Bod Bod H20 4.5 m² 0 1
Bod Bod U20 4.5 m² 0 1
Bad/WC Bad/WC Leilighet U20 6.0 m² 0 1
Dusj Dusj H20 2.5 m² 0 0
Vaskerom Vaskerom H20 5.5 m² 0 1
Badstu Badstu Hoved 20 8.0 m² 0 1
Kjøkken Kjøkken H20 10.5 m² 1 1
Stue Stue Leilighet U20 25.0 m² 2 1
Soverom Soverom 1 Leilighet U20 12.0 m² 1 1
Soverom Soverom 2 Leilighet U20 12.0 m² 1 1
Gang Gang med trapperom opp til hoved 18 8.0 m² 0 2
Bad Bad H18 6.0 m² 0 1
Dusj Dusj H18 2.0 m² 0 0
Kjøkken Kjøkken U18 9.0 m² 1 1
Stue Stue Hybel leilighet U18 18.0 m² 1 1
Soverom Soverom Hybel leil. U18 12.0 m² 1 1
Garasje Garasje 25.0 m² 1 1
Garasje GARASJER 39.0 m² 0 1
Gang GANG 5.2 m² 0 1
Bod BOD 4.1 m² 0 1
Disponible DISP 54.2 m² 0 1
Gang 001 5.2 m² 0 2
Bod 002 4.3 m² 0 1
Bod 003 6.1 m² 0 1
Bod 004 4.1 m² 0 1
Bod 005 3.5 m² 0 1
Bod 006 29.4 m² 0 1
Bod 007 40.8 m² 0 1
Garasje 008 39.0 m² 0 1
Gang G01 12.5 m² 0 2
Kjøkken K01 18.2 m² 1 1
Bad B01 8.5 m² 0 1
Vaskerom V01 6.3 m² 0 1
Soverom S01 14.8 m² 1 1
Soverom S02 12.1 m² 1 1
Stue St01 28.6 m² 2 1
Bod Bod01 4.2 m² 0 1
Garasje G02 25.2 m² 1 1
Stue/kjøkken 201 22.0 m² 1 2
Soverom 202 10.0 m² 1 1
Bad 203 5.0 m² 0 1
Gang 204 7.0 m² 0 2
Stue/kjøkken 301 20.0 m² 1 2
Soverom 302 9.0 m² 1 1
Bad 303 5.0 m² 0 1
Gang 304 6.0 m² 0 2
Stue/kjøkken 401 28.0 m² 1 2
Soverom 402 14.0 m² 1 1
Bad 403 7.0 m² 0 1
Gang 404 9.0 m² 0 2
Trapp 501 10.0 m² 0 0
Teknisk rom 502 5.0 m² 0 0
Fellesgang 503 15.0 m² 0 2

Etasje 1 115.3 m²

Rom Areal Vinduer Dører
Stue 201 32.5 m² 2 2
Kjøkken 202 11.2 m² 1 1
Bad 203 7.8 m² 0 1
Vaskerom 204 3.9 m² 0 1
Soverom 205 13.2 m² 1 1
Soverom 206 11.5 m² 1 1
Bod 207 5.8 m² 0 1
Gang 208 14.1 m² 0 3
Gang G 10.0 m² 0 3
Soverom Soverom 1 Leil H20 11.4 m² 1 1
Soverom Soverom 1 Leil H18 10.0 m² 1 1
Stue Stue Leil Hoved 20 58.7 m² 2 1
Kjøkken Kjøkken H20 13.6 m² 1 1
Kjøkken Kjøkken H18 6.7 m² 1 1
Bad Bad Leil H20 7.5 m² 0 1
Bad Bad Leil H18 3.0 m² 0 1
WC WC Leil H20 2.3 m² 0 1
WC WC Leil H18 1.5 m² 0 1
Vaskerom Vaskerom Leil H20 3.4 m² 0 1
Vaskerom Vaskerom Leil H18 2.0 m² 0 1
Arb. Rom Arb. Rom Leil H20 7.5 m² 1 1
Hall Hall Leil H20 15.5 m² 1 1
Gang Gang Leil H18 5.0 m² 0 1
Stue Stue Hybel leilighet U18 18.0 m² 1 1
Soverom Soverom Hybel leil. U18 12.0 m² 1 1

Etasje 2 158.4 m²

Rom Areal Vinduer Dører
Stue 201 36.4 m² 3 1
Soverom 1 202 15.5 m² 1 1
Soverom 2 203 8.2 m² 1 1
Soverom 3 204 11.1 m² 1 1
Bad 205 6.7 m² 0 1
Gang 206 5.4 m² 0 1
Løft 207 7.0 m² 0 0
Teknisk rom 208 5.6 m² 0 0

Fasader

Enebolig

Sør
Materiale
Tre
Taktype
Saltak
Takmat.
Tegl
Vinduer
11
Dører
2
Balkonger
1
Synlige etasjer
2
Nord
Materiale
Tre
Taktype
Saltak
Vinduer
10
Dører
1
Balkonger
1
Synlige etasjer
2
Nordvest
Materiale
Tre
Taktype
Saltak
Vinduer
10
Dører
1
Balkonger
1
Synlige etasjer
2

Hendelser

21.04.2026 Forhåndsvarsel om avvisning
20.03.2026 Spørsmål om utleiedel
17.02.2026 Gbnr 51/870 Nerhågen 20 - Supplering av søknad
14.01.2026 Gbnr. 51/870 - Nerhågen 20 - Utsatt frist for innsending av ytterligere informasjon
05.01.2026 Ber om mer tid på å innhente tilleggsopplysninger
04.11.2025 Gnr 51/bnr 870 - Nerhågen 20 - Anmodning om tilleggsopplysninger til søknad om oppdeling av boligenhet
02.04.2025 Gbnr. 51/870 Nerhågen 20 - Foreløpig svarbrev - Melding om saksbehandlingstid - Oppdeling, bruksendring og tilbygg
26.03.2025 Søknad om tillatelse i ett trinn