ChangeOfUse Soeknad Leilighetsbygg

Bruksendring og tilbygg på leilighetsbygg i Nygaardsgata 40, Fredrikstad

📍 Nygaardsgata 40 , 1607 FREDRIKSTAD

Nøkkelinfo

Sakstype
Bruksendring
Bygningstype
Leilighetsbygg
Bruksareal
68 m²
Boenheter
1
Kommune
Fredrikstad
Fylke
Østfold
Gnr / Bnr
300 / 898
Saksnummer
2026/1031
Fase
Søknad

Om byggesaken

Ombygging av sidefløy i Nygaardsgata 40 fra næringslokale til boligformål med oppgradering til TEK17-standard. Prosjektet inkluderer bruksendring, innvendig endring av brannskille og våtrom, tilbygg på ca. 27,5 m², samt riving av deler av eksisterende bygg. Boenheten får et BRA på 68 m² med utebod og sykkelparkering under tak. Fasadeliv og gesimshøyder endres ikke, men det etableres flere nye vinduer i samme utforming som eksisterende, samt et skjermende tak over inngangsdøren. Uteoppholdsareal på 15 m² ivaretas med 5 m² på egen grunn og 10 m² i offentlig område. Det planlegges 2 sykkelparkeringsplasser, og det er ikke krav om parkeringsplasser for bil. Tiltaket omfatter også fasadeendringer og riving av deler av bygg.

Produkter og materialer

Brannvern Brannskille og brannteknisk prosjektering

Endring av brannskille i bygg med brannteknisk prosjektering

Brannskilleoppgradering i forbindelse med bruksendring

Våtrom Våtromsmembran og sanitærinstallasjoner

Oppgradering av våtrom til TEK17-standard med membran og sanitærinstallasjoner

Oppgradering og endring av våtrom i boenhet

Grunnarbeid Sykkelparkering og utebod under tak

🧱 tre og metall

Antall: 1

Sykkelparkering for 2 sykler og utebod under tak i tilbygg

Utebod og sykkelparkering under tak i tilbygg

Vinduer Fasadevindu

🧱 tre/aluminium, samme utforming som eksisterende

Antall: 6

Flere nye vinduer med samme utforming som eksisterende fasadevindu

Nye fasadevinduer for tilbygg og ombygging

Dører Inngangsdør med skjermtak

🧱 metall skyveport og vanlig dør

Antall: 2

Skyveport av metall mot gata og skjermende tak over inngangsdør

Inngangsdør med skjermtak og skyveport for næringslokalets reduksjon

Tømrer Tømrerarbeider for tilbygg og innvendige arbeider

🧱 tre

Tømrerarbeider inkludert montering av trekonstruksjoner og membran

Tømrerarbeider for tilbygg og innvendige endringer

Riving Deler av eksisterende bygg

Riving av deler av eksisterende bygg i forbindelse med ombygging

Riving av deler av bygg for tilpasning til nytt formål

Tilbygg Pulak tilbygg med bod og sykkelparkering

🧱 tre og metall

Antall: 1

Tilbygg på ca. 27,5 m² med utvendig bod og sykkelparkering under tak

Tilbygg for bod og sykkelparkering under tak

Fasade Fasadeendring

🧱 tre

Fasadeendringer uten endring av gesimshøyder og fasadeliv

Fasadeendringer med nye vinduer og skjermtak over inngang

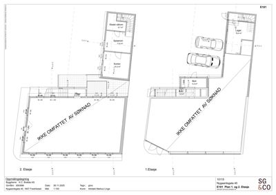
Plantegning

Enebolig 149.1 m²

Etasje 1 106.7 m²

Rom Areal Vinduer Dører
Opphold 101 22.1 m² 1 1
Gang/gard 102 3.7 m² 0 1
Bod 103 5.0 m² 0 1
Sykkel 104 6.7 m² 0 0
Bod 105 2.6 m² 0 1
Bod 106 5.3 m² 0 1
Teknisk rom 107 1.6 m² 0 1

Etasje 2 42.4 m²

Rom Areal Vinduer Dører
Sov 201 15.3 m² 1 1
Kjøkken 202 11.4 m² 1 1
Bad 203 5.7 m² 0 1

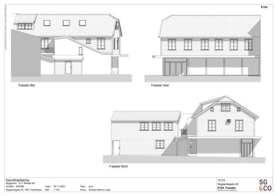
Fasader

Enebolig

Øst
Materiale
Tre
Taktype
Saltak
Vinduer
6
Dører
1
Balkonger
1
Synlige etasjer
2
Vest
Materiale
Tre
Taktype
Saltak
Vinduer
6
Dører
1
Synlige etasjer
2
Nord
Materiale
Tre
Taktype
Saltak
Vinduer
5
Dører
2
Balkonger
1
Synlige etasjer
2

Hendelser

21.04.2026 Nygaardsgata 40 - anmodning om omprosjektering
20.04.2026 Purring på svar - Nygaardsgata 40
09.01.2026 Bekreftelse på mottatt søknad - Bruksendring andre bygg, Endring - brannskille, Endring - våtrom, Tilbygg inntil 50 m², Riving av deler av bygg - Nygaardsgata 40 - Eiendom 300/898
09.01.2026 Rammesøknad - Nygaardsgata 40 - Eiendom 300/898 - Bruksendring andre bygg,Endring - brannskille,Endring - våtrom,Tilbygg inntil 50 m²,Riving av deler av bygg