ChangeOfUse Soeknad Leilighetsbygg

Bruksendring, påbygg og altaner på Nedre Enggate 18, Kristiansund

📍 Øvre Enggate 18 , 6509 KRISTIANSUND N

Nøkkelinfo

Sakstype
Bruksendring
Bygningstype
Leilighetsbygg
Bruksareal
25 m²
Boenheter
1
Kommune
Kristiansund
Fylke
Møre og Romsdal
Gnr / Bnr
6 / 231
Saksnummer
26/01258
Fase
Søknad

Om byggesaken

Prosjektet omfatter bruksendring av loftsrom til boligformål, oppføring av takoppbygg på både øst- og vestfasade, samt etablering av altaner i 2., 3. og 4. etasje på Nedre Enggate 18 i Kristiansund. Bygget er et eksisterende leilighetsbygg med salgslokale i 1. etasje, garasje i kjeller og boliger i øvrige etasjer. Takoppbyggene er tilpasset eksisterende bygningsstruktur og materialbruk, med lysere puss for å gi et lettere uttrykk. Altanene får metallrekkverk i tråd med tekniske krav og understøttes ned til bakkeplan. Loftet innredes med nye boenheter, og det etableres privat altan tilknyttet ny boenhet i 4. etasje. Brannkonsept og tekniske løsninger følger TEK17 med enkelte søkte unntak. Totalt økes bruksarealet med ca. 25 m² uten økning i bebygd areal. Parkeringsbehov dekkes i eksisterende parkeringskjeller og bakgård. Tiltaket er i tråd med kommunale planer og hensynssoner for bevaring av kulturmiljø.

Produkter og materialer

Brannvern Brannslokkeutstyr

Håndslukkerapparat i hver boenhet, brannslange i salgslokale, brannalarmanlegg kategori 2

Brannvernutstyr og systemer iht. brannkonsept og TEK17

Elektro Brannalarmanlegg og belysning

Brannalarmanlegg kategori 2 med alarmoverføring, nødlys og markeringsskilt i rømningsveier

Elektriske installasjoner for brannsikkerhet og rømningsveier

Gulv Innvendige gulv

Gulv i nye boenheter tilpasses eksisterende standard og tekniske krav

Gulv i innredet loftsrom og øvrige boenheter

Dører Ytterdører og brannklassifiserte dører

Antall: 8

Dører med brannklasse EI2 30-Sa og EI2 30-CSa i branncelleskiller og rømningsveier

Dører til boenheter, trapperom og rømningsveier

Ventilasjon Ventilasjonsanlegg

Ventilasjonsanlegg og kanaler med brannmotstand og tetting iht. brannkonsept

Ventilasjon for nye og eksisterende boenheter

Tak Takoppbygg

🧱 Lysere gul puss, sort Decra taktekking

Antall: 3

Takoppbygg på øst- og vestfasade, tilpasset eksisterende bygning med lysere puss og Decra taktekking som hovedtak

Takoppbygg for økt loftsareal med bedre takhøyde og dagslys

VVS Sanitærinstallasjoner

Oppgradering og tilpasning av sanitærinstallasjoner i forbindelse med bruksendring og ny boenhet

Sanitærinstallasjoner for nye og eksisterende boenheter

Maling Innvendige overflater

Maling og overflatebehandling i nye og ombygde rom

Innvendige overflater i boenheter og fellesarealer

Balkong Altaner med metallrekkverk

🧱 Metallrekkverk med balustre, understøttet til bakkeplan

Antall: 3

Altaner i 2., 3. og 4. etasje med rekkverk i metall iht. TEK17 §12-15, understøttet for å unngå skråstag eller utkraging

Altaner tilknyttet nye og eksisterende boenheter

Grunnarbeid Parkeringsløsning

Bruk av eksisterende parkeringskjeller og bakgård for bil- og sykkelparkering

Parkeringsløsning for nye boenheter uten nybygging av parkeringsareal

Vinduer Rømningsvinduer og fasadevinduer

Antall: 14

Vinduer i fasader og som rømningsvinduer med krav til størrelse og brannmotstand iht. brannkonsept

Nye og eksisterende vinduer for dagslys, utsyn og rømningsvei

Fasade Puss og maling

🧱 Lysere gul puss på takoppbygg, eksisterende puss på hovedfasade

Fasadebehandling i tråd med gjenreisningsbebyggelsens estetikk og reguleringsplan

Fasadeoppgradering og tilpasning av takoppbygg

Isolasjon Bygningsisolasjon

Isolasjon i takoppbygg og vegger iht. TEK17 og brannkrav

Isolasjon for varme, lyd og brann i nye konstruksjoner

Trapper Innvendig trapperom

Antall: 1

Trapperom utført som egen branncelle (Tr2) med røykventilasjon og brannklassifiserte konstruksjoner

Rømnings- og adkomsttrapp for boenheter

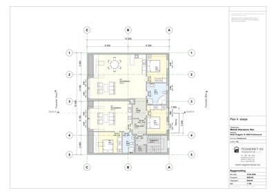
Plantegning

Enebolig 198.7 m²

Etasje 2 24.1 m²

Rom Areal Vinduer Dører
Stue 201 19.7 m² 3 1
Gang 202 4.4 m² 0 1

Etasje 4 174.6 m²

Rom Areal Vinduer Dører
Felles entre 401 4.7 m² 0 2
Gang 402 5.8 m² 0 1
Stue/kjøkken 403 52.9 m² 2 1
Sov 404 12.7 m² 1 1
Bad 405 9.7 m² 0 1
Sov 406 13.0 m² 1 1
Stue/kjøkken 407 27.4 m² 2 1
Bad 408 5.6 m² 0 1
Sov 409 11.2 m² 1 1
Kott 404 1.9 m² 0 0
Trapperom 401 10.8 m² 0 0

Fasader

Hovedbygg

Ukjent
Vinduer
12
Dører
0
Synlige etasjer
2

Enebolig

Øst
Materiale
Tre
Taktype
Flatt tak
Vinduer
10
Dører
1
Balkonger
3
Synlige etasjer
3
Vest
Vinduer
11
Dører
1
Synlige etasjer
3

Hendelser

22.04.2026 26/01258-1 Nedre Enggate 18 - Søknad om bruksendring fra tilleggsdel til hoveddel