Facade
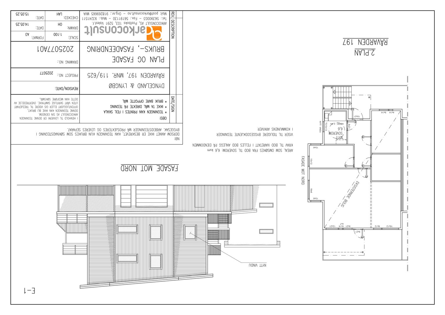
Tegning som viser både etasjeplan (2 PLAN) og fasade (FASADE MOT NORD) for et hus.
1 / 3
ChangeOfUse
Ferdigattest
Leilighetsbygg
Bruksendring med nytt vindu i leilighetsbygg, Råvarden 197, Bergen
📍 Råvarden 185 , 5239 RÅDAL
Nøkkelinfo
- Sakstype
- Bruksendring
- Bygningstype
- Leilighetsbygg
- Kommune
- Bergen
- Fylke
- Vestland
- Gnr / Bnr
- 119 / 625
- Saksnummer
- BYGG-2025/13879
- Fase
- Ferdigattest
Om byggesaken
Bruksendring av et rom i et eksisterende leilighetsbygg på Råvarden 197 i Bergen fra bod/WC til soverom. Tiltaket inkluderer innsetting av et nytt fasadevindu mot nord som visuelt harmonerer med byggets øvrige fasade. Bygget er et frittliggende boligbygg i tre med saltak, to etasjer og fem vinduer på nordfasaden. Arbeidet omfatter også nødvendige tømrerarbeider knyttet til ombyggingen. Tiltaket påvirker ikke byggets utnyttingsgrad eller uteoppholdsareal, og det er ikke behov for dispensasjoner eller endringer i vann- og avløpsløsninger.
Produkter og materialer
Vinduer
Fasadevindu
🧱 tre eller tilsvarende som harmonerer med eksisterende fasade
Antall: 1
Nytt vindu plassert på nordfasade, visuelt tilpasset eksisterende fasade
Nytt fasadevindu til innsetting i tidligere bod/WC som skal bli soverom
Grunnarbeid
Ingen endring
Ingen endring i grunnarbeid eller fundamentering
Ingen grunnarbeid nødvendig for bruksendringen
Tømrer
Innvendig ombygging
Ombygging av bod/WC til soverom, inkludert vegger, gulv og tak
Tømrerarbeid for å tilpasse rommet til ny bruk som soverom
Fasade
Fasadeendring
🧱 tre
Endring av fasade ved innsetting av nytt vindu på nordfasade
Fasadeendring for å tilpasse nytt vindu i byggets nordside
Fasader
Enebolig
Nord
- Materiale
- Tre
- Taktype
- Saltak
- Vinduer
- 5
- Dører
- 1
- Balkonger
- 1
- Synlige etasjer
- 2
Hendelser
22.12.2025
Ferdigattest, 119/625, Råvarden 197
16.12.2025
Råvarden 197 Søknad om ferdigattest 119/625
04.07.2025
Fakturagrunnlag
04.07.2025
ubw ordre 20673505
23.06.2025
Tillatelse til tiltak med ansvarsrett, 119/625, Råvarden 197, vedtak bruksendring bolig mm
16.06.2025
Råvarden 197 Søknad om tillatelse i ett trinn 119/625
—