ChangeOfUse Rammetillatelse Leilighetsbygg

Bruksendring og fasadeendring på Sigvat Skalds vei 6, Moss

📍 Sigvat Skalds vei 6 , 1532 MOSS

Nøkkelinfo

Sakstype
Bruksendring
Bygningstype
Leilighetsbygg
Bruksareal
156 m²
Boenheter
2
Kommune
Moss
Fylke
Østfold
Gnr / Bnr
2 / 1809
Saksnummer
2026/95
Fase
Rammetillatelse

Om byggesaken

Bruksendring av kjelleretasjen i en horisontalt delt tomannsbolig på Sigvat Skalds vei 6, Moss, fra tilleggsdel til hoveddel, slik at kjelleren tilknyttes 1. etasje via eksisterende trapp. Kjelleren innredes med stue/allrom, soverom, toalett/bad og bodarealer med takhøyde mellom 2,04 og 2,08 meter. Fasadeendring mot sør omfatter utskifting av kjellerlem med dør og utskifting av to vinduer til nye med størrelse 960 x 700 mm. Bygningen har tre etasjer og fasaden er i tre med saltak. Det er dokumentert rømningsvindu i kjeller og innvendig tilkomst mellom etasjene. Tiltaket påvirker ikke bygningsareal eller grunnforhold, og er i tråd med kommuneplan og reguleringsplan.

Produkter og materialer

Gulv Kjellergulv

Takhøyde i kjeller 2,04-2,08 m, isolasjon og oppvarming iht. forskrift

Oppgradering av kjellerrom for boligstandard

Grunnarbeid Ingen nye grunnarbeider

Ingen endring i grunnforhold eller fundamentering

Ingen nye grunnarbeider nødvendig

VVS Sanitærinstallasjoner

Toalett/bad i kjeller, vann og avløp fjernet på kjøkken i kjeller etter anvisning

Oppgradering av sanitærrom i kjeller, fjerning av kjøkkenvann og avløp

Tømrer Innvendig vegg og tak

🧱 tre og isolasjon

Innredning av kjellerrom med vegger, tak og isolasjon for boligstandard

Oppgradering av kjeller til boligstandard

Fasade Trepanel

🧱 tre

Fasade i tre med saltak, fasadeendring uten endring i plan eller antall elementer

Opprettholde og tilpasse fasade i tre som del av fasadeendring

Vinduer Rømningsvindu

🧱 tre/aluminium

Antall: 3

Vinduer 960 mm bredde x 700 mm høyde, 3 stk, med krav til rømningsvindu iht. teknisk forskrift

Nye vinduer i kjeller for å tilfredsstille krav til rømningsvindu

Elektro Belysning og strøm

Oppgradering av elektrisk anlegg i kjeller for boligbruk

Elektrisk installasjon tilpasset bruksendring

Dører Ytterdør kjeller

🧱 tre eller tilsvarende

Antall: 1

Dør som erstatter kjellerlem i fasade mot sør

Ny ytterdør i kjeller som del av fasadeendring

Brannvern Rømningsvei og brannsikkerhet

Rømningsvindu og dør i kjeller, brannsikkerhet iht. forskrift

Sikring av rømningsveier i kjeller

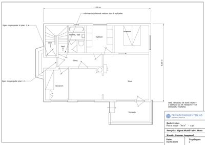
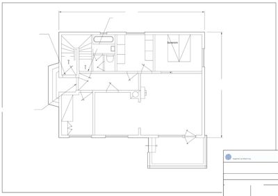
Plantegning

Enebolig 155.9 m²

Etasje 1 88.0 m²

Rom Areal Vinduer Dører
Stue 101 40.0 m² 1 1
Soverom 102 12.0 m² 1 1
Soverom 103 12.0 m² 1 1
Kjøkken 104 10.0 m² 0 1
Gang 105 8.0 m² 0 3
Toalett / bad 106 6.0 m² 0 1
Veranda 107 10.0 m² 1 1

Etasje 0 67.9 m²

Rom Areal Vinduer Dører
Gang 001 16.0 m² 0 4
Vedbod 002 12.0 m² 1 1
Vedbod 003 12.0 m² 1 1
Vaskerom 004 16.0 m² 1 1
Matbod 005 12.0 m² 0 1
Matbod 006 12.0 m² 0 1
Rulle 007 16.0 m² 0 1
W.C. 008 0.0 m² 0 1

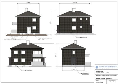
Fasader

Enebolig

Sør
Materiale
Tre
Taktype
Saltak
Høyde
8.3 m
Vinduer
4
Dører
0
Balkonger
2
Synlige etasjer
2
Vest
Materiale
Tre
Taktype
Saltak
Høyde
8.3 m
Vinduer
4
Dører
0
Balkonger
1
Synlige etasjer
2
Nord
Materiale
Tre
Taktype
Saltak
Høyde
8.3 m
Vinduer
1
Dører
1
Balkonger
1
Synlige etasjer
2
Øst
Materiale
Tre
Taktype
Saltak
Høyde
8.3 m
Vinduer
1
Dører
1
Synlige etasjer
2

Hendelser

20.04.2026 Sigvat Skalds vei 6 - 2/1809 - anmodning om utsatt behandling av ferdigattest - bruksendring av kjeller og fasadeendring
13.04.2026 Sigvat Skalds vei 6 - 2/1809 - søknad om ferdigattest
20.03.2026 Sigvat Skalds vei 6 - 2/1809 - informasjon om ferdigattest - bruksendring av kjeller og fasadeendring
10.03.2026 Sigvat Skalds vei 6 - 2/1809 - tillatelse til tiltak - bruksendring av kjeller og fasadeendring
09.03.2026 Sigvat Skalds vei 6 - 2/1809 - supplering av søknad
20.01.2026 Sigvat Skalds vei 6 - 2/1809 - supplering av søknad
15.01.2026 Sigvat Skalds vei 6 - 2/1809 - tilbakemelding om mangler - bruksendring av kjeller og fasadeendring
05.01.2026 Sigvat Skalds vei 6 - 2/1809 - ett-trinnssøknad - bruksendring av kjeller og fasadeendring