ChangeOfUse Soeknad Leilighetsbygg

Bruksendring og oppdeling av boenhet i Skivebakken 33C, Bergen

📍 Skivebakken 33C , 5018 BERGEN

Nøkkelinfo

Sakstype
Bruksendring
Bygningstype
Leilighetsbygg
Bruksareal
46 m²
Boenheter
3
Kommune
Bergen
Fylke
Vestland
Gnr / Bnr
166 / 775
Saksnummer
BYGG-2026/12574
Fase
Søknad

Om byggesaken

Bruksendring av deler av loftet i 3. etasje til ny hovedenhet og oppdeling av en eksisterende boenhet i 1. etasje til to separate boenheter. Totalt økes antall boenheter fra 1 til 3. Tiltaket inkluderer også etablering av sprinkleranlegg i bygget. Bygningen er et leilighetsbygg med bevaring av eksisterende bygningsstruktur og fasade, og tiltaket innebærer ingen endring i bygningsvolum eller fasade. Det søkes dispensasjon for avstand til nabogrense og minste boenhetsstørrelse. Prosjektet omfatter også tekniske oppgraderinger knyttet til vann- og avløpsanlegg, inkludert buffertank for sprinkleranlegget.

Produkter og materialer

Tømrer Innvendige vegger og oppdeling av boenheter

Oppdeling av eksisterende boenhet i 1. etasje til to boenheter, bruksendring av loft til ny boenhet

Bygningsmessige arbeider for oppdeling og tilpasning av boenheter

Bad Sanitærutstyr og våtromsarbeider

Oppgradering og tilpasning av bad og toalett i nye boenheter

Gulv Gulvbelegg i nye boenheter

Nye gulvflater i oppdelte boenheter og loftsboenhet

VVS Vann- og avløpsanlegg, inkl. sprinkleranlegg

Oppgradering av vannforsyning, installasjon av buffertank, tilbakestrømningssikring, tilknytning til offentlig vann og avløp

Tekniske installasjoner for vann og avløp tilpasset økt antall boenheter og sprinkleranlegg

Elektro Elektriske installasjoner for sprinkleranlegg og boenheter

Elektriske arbeider knyttet til sprinkleranlegg og nye boenheter

Vinduer Eksisterende vinduer beholdes

Ingen fasadeendringer, eksisterende vinduer beholdes

Ingen nye vinduer, eksisterende vinduer opprettholdes

Sprinkler Sprinkleranlegg med buffertank

Antall: 1

Sprinkleranlegg forsynes via intern tank med pumpe, tilbakestrømningssikring kategori 5 iht. VA-miljøblad 61 og NS 1717

Installasjon av sprinkleranlegg med tilhørende vannforsyning og sikkerhetsutstyr

Brannvern Brannkonsept og uavhengig kontroll

Antall: 1

Brannkonsept utarbeidet av BRANNKONSULT AS, uavhengig kontroll av brannsikkerhet av NORSK BYGGEKONTROLL AS

Prosjektering og kontroll av brannsikkerhet i forbindelse med bruksendring

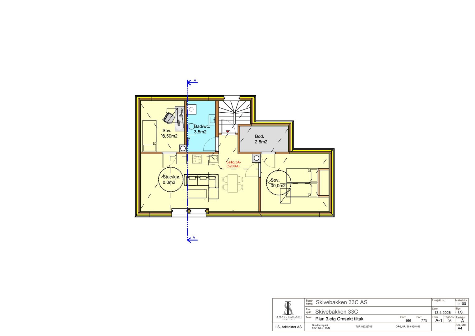
Plantegning

Enebolig 46.5 m²

Etasje 3 46.5 m²

Rom Areal Vinduer Dører
Stue/kjøkken 301 0.0 m² 1 1
Sov. 1 302 8.5 m² 0 1
Bad/wc 303 3.5 m² 0 1
Sov. 2 304 0.0 m² 0 1
Bod 305 2.5 m² 0 1
Kjøkken 0 0.0 m² 0 0

Etasje 1 0.0 m²

Rom Areal Vinduer Dører
Stue 101 0.0 m² 0 0
Kjøkken 102 0.0 m² 0 0
Gang 103 0.0 m² 0 0
Bad 104 0.0 m² 0 0
Toalett 105 0.0 m² 0 0
Soverom 106 0.0 m² 0 0

Hendelser

20.04.2026 Bekreftelse på mottatt søknad
16.04.2026 Skivebakken 33C Søknad om rammetillatelse 166/775