ChangeOfUse UnderBehandling Leilighetsbygg

Bruksendring av loft til bolig og batterirom i Solumgata 38

📍 Solumgata 38A , 3733 SKIEN

Nøkkelinfo

Sakstype
Bruksendring
Bygningstype
Leilighetsbygg
Bruksareal
220 m²
Boenheter
4
Kommune
Skien
Fylke
Telemark
Gnr / Bnr
217 / 713
Saksnummer
2025/22372
Fase
Under behandling

Om byggesaken

Bruksendring av loft på 212 m² i en eksisterende boligbygning til boligformål for fire leiligheter (E, F, G og H), inkludert innredning av batterirom på 8 m² for solcelleanlegg. Loftet får nye takvinduer og fasadeendringer med flere nye vinduer. Batterirommet er en egen branncelle med EI60-klassifisering og utstyrt med brannalarmanlegg og nødstoppbryter for solcelleanlegget. Solcelleanlegget på taket er integrert i energiløsningen med batteribank for lagring av strøm til oppvarming. Rømningsveier fra loftet er planlagt over tak med solcellepaneler, med tilstrekkelig bredde og sikkerhetssoner. Bygget har gjennomgått brannteknisk prosjektering og uavhengig kontroll, og det er gitt dispensasjon fra krav om felles varmesentral og energiløsninger for bygg over 1000 m² BRA.

Produkter og materialer

Ventilasjon Ventilasjon i batterirom

Avtrekksvifte for røyk og friskluftinntak i batterirom

Ventilasjonsanlegg for batterirom for brannsikkerhet

Solceller Takmontert solcelleanlegg

🧱 Glass og aluminium

Solcellepaneler på tak med kabelføringer, sikret med brannbarriere EI30 under taktekking

Solcelleanlegg for energiproduksjon på taket

Maling Innvendig maling

Innvendige overflater i loft og batterirom med brannklassifiserte malinger

Maling av innvendige overflater med brannhemmende egenskaper

Dører Brannklassifiserte dører

Dører med brannklasse EI30 og EI60 i batterirom og brannskiller

Brannklassifiserte dører for batterirom og brannskillevegger

Brannvern Brannalarmanlegg og brannslokkeutstyr

Brannalarmanlegg i fellesareal, leiligheter og batterirom, håndslukkere med ABC-pulver 6 kg

Brannalarmanlegg og håndslukkere for brannsikkerhet

Vinduer Takvinduer og fasadevinduer

🧱 Glass med EI30 brannklasse

Antall: 9

2 stk 75x75 cm takvinduer, 7 stk 90x150 cm takvinduer, fasadevinduer med brannklasse EI30

Nye takvinduer og fasadevinduer i loftsetasje for boligformål

VVS Batterirom for energilagring

Antall: 1

Batteribank på 150 kWh kapasitet, teknisk rom med ventilasjon og nødstoppbryter

Batterirom for lagring av strøm fra solcelleanlegg til oppvarming

Elektro Elektriske installasjoner for solcelleanlegg og batterirom

Elektriske kabler, nødstoppbryter, brannalarmanlegg og overvåkningssystemer

Elektriske installasjoner knyttet til solcelleanlegg og batterirom

Isolasjon Brannisolasjon

🧱 A2-s1,d0 klassifisert isolasjon

Isolasjon i vegger og tak med brannmotstand EI30 og EI60

Brannisolasjon for å oppnå nødvendig brannmotstand i loft og batterirom

Grunnarbeid Ingen nye grunnarbeider

Ingen nye grunnarbeider da det er bruksendring i eksisterende bygg

Ingen grunnarbeider nødvendig for bruksendringen

Tømrer Innredning av loft og batterirom

🧱 Trekonstruksjoner

Innredning av loft til boligformål og batterirom med brannskillevegger

Tømrerarbeid for innredning og brannsikring av loft og batterirom

Fasade Fasadeendringer med nye vinduer

🧱 Betong og glass

Antall: 7

Nye vinduer i loftsetasje på fasader nord, syd, øst og vest

Fasadeendringer med nye vinduer i loftsetasje

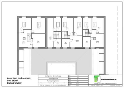
Plantegning

Leilighetsbygg 2,730.0 m²

Etasje 1 1,247.0 m²

Rom Areal Vinduer Dører
Leilighet A 0.0 m² 0 0
Leilighet B 0.0 m² 0 0
Leilighet C 0.0 m² 0 0
Leilighet D 0.0 m² 0 0
Leilighet E 0.0 m² 0 0
Leilighet F 0.0 m² 0 0
Leilighet G 0.0 m² 0 0
Leilighet H 0.0 m² 0 0
Leilighet I 0.0 m² 0 0
Leilighet J 0.0 m² 0 0
Leilighet K 0.0 m² 0 0
Leilighet L 0.0 m² 0 0
Leilighet M 0.0 m² 0 0
Leilighet N 0.0 m² 0 0
Leilighet O 0.0 m² 0 0
Leilighet P 0.0 m² 0 0
Batterierom Batterierom 0.0 m² 0 0
Boder Boder 0.0 m² 0 0
Søppelrom Søppelrom 0.0 m² 0 0
Batterrom Batterrom 0.0 m² 0 0

Etasje 2 1,263.0 m²

Rom Areal Vinduer Dører
Soverom Sov 0.0 m² 0 0
Loftstue Loft-stue 0.0 m² 0 0

Etasje 0 220.0 m²

Rom Areal Vinduer Dører
Lofstue 001 21.5 m² 1 1
Sov 002 7.1 m² 1 1
Sov 003 11.8 m² 1 1
Lofstue 004 15.9 m² 0 1
Sov 005 4.7 m² 1 1
Sov 006 10.1 m² 1 1
Sov 007 8.9 m² 1 1
Lofstue 008 16.3 m² 0 1
Sov 009 5.4 m² 1 1
Sov 010 8.4 m² 1 1
Sov 011 19.1 m² 1 1
Sov 012 7.1 m² 1 1
Sov 013 7.8 m² 1 1
Lofstue 014 22.7 m² 1 1
Sov 015 9.0 m² 1 1
Sov Sov 0.0 m² 0 0
Løftstue Løftstue 0.0 m² 0 0

Leiligheter Gymsalbygg 1,247.0 m²

Etasje 0 1,247.0 m²

Rom Areal Vinduer Dører
Gang 001 45.0 m² 0 4
Batterierom 002 12.5 m² 0 1

Leiligheter 2,351.0 m²

Etasje 1 2,351.0 m²

Rom Areal Vinduer Dører
Stue/kjøkken 101 30.3 m² 1 1
Soverom 102 11.9 m² 1 1
Entré 103 6.0 m² 0 1
Bad 104 9.4 m² 0 1
Soverom 105 10.2 m² 1 1
Stue/kjøkken 106 20.8 m² 1 1
Bad 107 6.2 m² 0 1
Gang 108 8.6 m² 0 2
Stue/kjøkken 109 36.4 m² 1 1
Soverom 110 12.4 m² 1 1
Soverom 111 11.0 m² 1 1
Bad 112 8.8 m² 0 1
Bad 113 9.9 m² 0 1
El-skap 114 7.2 m² 0 1
Gang 115 9.5 m² 0 2
Stue/kjøkken 116 17.4 m² 1 1
Soverom 117 18.5 m² 1 1
Stue/kjøkken 118 27.3 m² 1 1
Soverom 119 7.6 m² 1 1
Bad 120 6.5 m² 0 1
Bod 121 7.6 m² 0 1
Stue/kjøkken 122 36.0 m² 1 1
Soverom 123 6.4 m² 1 1
Soverom 124 6.8 m² 1 1
Soverom 125 7.1 m² 1 1
Bod 126 2.7 m² 0 1
Soverom 127 3.9 m² 1 1
Soverom 128 7.7 m² 1 1
Soverom 129 6.0 m² 1 1
Soverom 130 4.0 m² 1 1
Soverom 131 9.8 m² 1 1
Soverom 132 7.0 m² 1 1
Soverom 133 5.2 m² 1 1
Soverom 134 7.4 m² 1 1
Bod 135 6.3 m² 0 1
Stue/kjøkken 136 25.1 m² 1 1
Kjøkken 137 10.8 m² 0 1
Stue 138 14.7 m² 1 1
Bad 139 8.7 m² 0 1
Gang 140 6.0 m² 0 1
BOD 141 6.3 m² 0 1
Stue/kjøkken 142 3.8 m² 0 1
Gang 143 3.8 m² 0 1
Bad 144 5.2 m² 0 1
Soverom 145 6.8 m² 1 1
Bod 146 3.2 m² 0 1
Soverom 147 10.3 m² 1 1
Soverom 148 6.3 m² 1 1
Stue/kjøkken 149 23.6 m² 1 1
Soverom 150 16.6 m² 1 1
Batterirom 151 8.0 m² 0 0
Bod 152 4.4 m² 0 1

Etasje 0 0.0 m²

Rom Areal Vinduer Dører

Fasader

Leiligheter

Vest
Materiale
Betong
Taktype
Flatt tak
Takmat.
Tegl
Vinduer
10
Dører
6
Synlige etasjer
1
Øst
Materiale
Betong
Taktype
Flatt tak
Takmat.
Tegl
Vinduer
10
Dører
6
Synlige etasjer
1
Syd
Materiale
Betong
Taktype
Flatt tak
Vinduer
8
Dører
3
Synlige etasjer
2
Nord
Materiale
Betong
Taktype
Flatt tak
Vinduer
11
Dører
2
Synlige etasjer
1

Hendelser

21.04.2026 Søknad om igangsettingstillatelse - Gbnr 217/713 - Solumgata 38 - bruksendring
04.03.2026 Kommentar til naboklage - Gbnr 217/713 - Solumgata 38 - bruksendring
26.02.2026 Vedlegg til klage og frist for uttalelse - gbnr 217/713 - Solumgata 38 - bruksendring
25.02.2026 Bekreftelse på mottatt klage - Gbnr 217/713 - Solumgata 38 - bruksendring
25.02.2026 Orientering om mottatt klage - gbnr 217/713 - Solumgata 38 - bruksendring
24.02.2026 Saksnummer 25/22372. vedlegg 3 til klage
24.02.2026 Saksnummer 25/22372 Vedlegg 1 til klage
24.02.2026 Saksnummer 25/22372 Vedlegg 2 til klage
19.02.2026 Klage på vedtak sak nr.: 95/26 - Gbnr 217/713 - Solumgata 38 - bruksendring
02.02.2026 Rammetillatelse og dispensasjon - Gbnr 217/713 - Solumgata 38 - bruksendring
02.02.2026 Gebyr - Gbnr 217/713 - Solumgata 38 - bruksendring
12.01.2026 Tilbakemelding på kommentarer til brannkonsept - Solumgata 38 - bruksendring
05.01.2026 Tilbakemelding - gbnr 217/713 - Solumgata 38 - bruksendring
11.12.2025 Ber om tilbakemelding på brannkonsept - Gbnr 217/713 - Solumgata 38 - bruksendring
29.09.2025 Søknad om rammetillatelse - Gbnr 217/713 - Solumgata 38 - bruksendring