ChangeOfUse Soeknad Leilighetsbygg

Bruksendring og ombygging til leilighet i Stabbestadveien 9

📍 Stabbestad, Stabbestadveien 11A , 3788 STABBESTAD

Nøkkelinfo

Sakstype
Bruksendring
Bygningstype
Leilighetsbygg
Bruksareal
128 m²
Boenheter
1
Kommune
Kragerø
Fylke
Telemark
Gnr / Bnr
11 / 256
Saksnummer
2026/1621
Fase
Søknad

Om byggesaken

Ny fritidsleilighet på 128 m² etableres i et disponibelt lagerareal i etasje U2 i rekketun C ved Kragerø Resort, Stabbestadveien 9. Leiligheten får fire soverom, tre bad, vaskerom, garderobe, gang og et stort allrom med kjøkken. Det bygges et lite tilbygg under tak på 2,7 m² for bedre dagslys, med nye vinduer og dører som følger eksisterende bygningsuttrykk. Resterende lagerareal videreføres som boder. Fasaden mot nord endres med ny dør og vindu for bedre dagslys og adkomst til terrasse. Ny adkomststi etableres utenfor eksisterende betongmur med ny åpning i muren. Parkering ivaretas innenfor eksisterende anlegg. Tiltaket inkluderer tekniske tilknytninger til offentlig vann og avløp, og følger TEK17.

Produkter og materialer

VVS VA-tilknytning

Antall: 1

Tilknytning til offentlig vann og avløp

Teknisk tilknytning for ny leilighet

Bad Bad og vaskerom

Antall: 4

Tre bad og ett vaskerom med nødvendige sanitærinstallasjoner

Sanitærrom i leilighet

Elektro Elektrisk anlegg

Antall: 1

Elektrisk installasjon i ny leilighet iht TEK17

Elektrisk anlegg for ny boenhet

Maling Innvendig maling

Maling av vegger og himlinger i ny leilighet

Overflatebehandling innvendig

Tømrer Innvendige vegger og himlinger

🧱 tre/stål

Oppbygging av nye vegger og himlinger i ombygget areal

Innvendige konstruksjoner for leilighet

Gulv Innvendige gulv

Antall: 128

Gulv i hele leiligheten, antatt parkett eller fliser i våtrom

Innvendige gulvflater

Grunnarbeid Adkomststi

🧱 grus eller asfalt

Antall: 1

Ny gangsti utenfor betongmur

Ny adkomststi til eksisterende hybler

Fasade Betongmur med åpning

🧱 betong

Antall: 1

Ny åpning i eksisterende betongmur for ny adkomststi

Endring i betongmur for ny adkomst

Fasade Tilbygg under tak

🧱 tre og betong

Antall: 1

Tilbygg på 2,7 m² under tak for bedre dagslys

Lite tilbygg til leiligheten

Vinduer Fasadevindu

🧱 tre/alu eller tilsvarende

Antall: 14

Nye vinduer i fasade nord og øvrige fasader, tilpasset eksisterende bygningsuttrykk

Nye vinduer for dagslys i leilighet og fasadeendringer

Dører Ytterdør og skyvedør

🧱 tre/alu eller tilsvarende

Antall: 6

Ny dør og skyvedører i fasade nord og øst, inkludert ny dør til terrasse

Nye dører for adkomst og fasadeendringer

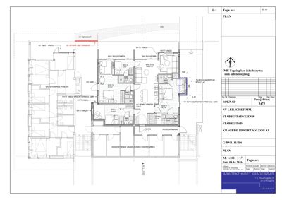
Plantegning

Leilighet 128.0 m²

Etasje 1 128.0 m²

Rom Areal Vinduer Dører
Gang 101 8.4 m² 0 2
Allrom/Kjøkken 102 40.0 m² 1 1
Sov 1 103 16.2 m² 1 1
Sov 2 104 14.0 m² 1 1
Sov 3 105 20.5 m² 1 1
Sov 4 106 5.9 m² 1 1
Vaskerom 107 3.8 m² 0 1
Gard 108 2.1 m² 0 1
Bad 109 2.2 m² 0 1
Bad 110 2.4 m² 0 1
Bad 111 2.4 m² 0 1
Bra Leil 112 128.0 m² 0 0

Fasader

Leilighet

Nord
Materiale
Betong
Vinduer
14
Dører
1
Balkonger
6
Synlige etasjer
4

Hendelser

15.04.2026 Bekreftelse på mottatt søknad - Gbnr. 11/256 - Stabbestadveien 9, U2 Rekketun C - Søknad om bruksendring fra lager til leilighet
10.04.2026 Søknad om rammetillatelse - Gbnr. 11/256 - Stabbestadveien 9, U2 Rekketun C - Søknad om bruksendring fra lager til leilighet