ChangeOfUse UnderBehandling Leilighetsbygg

Innvendig ombygging og sammenføyning av leiligheter i Steinkjellergaten 8B, Bergen

📍 Steinkjellergaten 8B , 5003 BERGEN

Nøkkelinfo

Sakstype
Bruksendring
Bygningstype
Leilighetsbygg
Bruksareal
179 m²
Boenheter
1
Kommune
Bergen
Fylke
Vestland
Gnr / Bnr
167 / 1486
Saksnummer
BYGG-2026/11924
Fase
Under behandling

Om byggesaken

Prosjektet omfatter omfattende innvendige bygningsmessige arbeider i et eksisterende leilighetsbygg i Steinkjellergaten 8B, Bergen. Det fjernes bærende vegger i midten av bygget og erstattes med limtredragere, gulvbjelker i 4. og 5. etasje forsterkes og repareres, og brannskillet mellom etasjene oppgraderes med ny isolasjon og gips. To eksisterende leiligheter i 4. etasje slås sammen til én større enhet, og det etableres et nytt bad i 5. etasje. Det gjøres også bruksendring av 0,5 m² ved innlemming av trapperom i badet, samt endringer i dører mot hovedtrapp. Ventilasjonsanlegg installeres, og avløpsstammer utbedres med rør-i-rør system. Tiltaket medfører ingen endringer i byggets ytre form, høyde eller fasade, og påvirker ikke antall boenheter, som reduseres fra to til én i 4. etasje. Bygget ligger i et tettbygd område med høy utnyttelse og kulturhistoriske hensyn, og tiltaket er tilpasset eksisterende bygningsstruktur og reguleringsplaner.

Produkter og materialer

Gips Brannklassifisert gips

Gips på overside bjelkelag mot 3. etasje og i himling mot 5. etasje

Branntetting og oppbygging av brannskille

Bad Nytt bad i 5. etasje

Antall: 1

Nytt bad på 2 m² i 5. etasje med tilhørende sanitærinstallasjoner

Bad med sanitærutstyr og overflater

Vinduer Fasadevindu

🧱 Tre/aluminium

Antall: 2

Vinduer i 4. etasje: 1 i sov/stue, 1 i sov; 4 vinduer i 5. etasje: 1 i stue/kjøkken, 1 i sov, 1 i bod, 1 i bod

Eksisterende vinduer i leilighetene, ingen endring i fasade

Gulv Forsterkning og avretting av gulv

🧱 Tre, betong

Forsterkning av gulvbjelker med lask og kubbing, avretting av gulv i 4. og 5. etasje

Gulvkonstruksjon og overflatebehandling

VVS Rør-i-rør system og avløpsstammer

Utbedring av eldre avløpsstammer i 4. og 5. etasje, alle gjennomføringer branntettes, røropplegg erstattes med rør-i-rør

Sanitærinstallasjoner og avløpssystem

Tømrer Innvendige tømrerarbeider

🧱 Tre

Montering av trekonstruksjoner, lukking av dører, reparasjon av bjelkelag

Innvendige bygningsmessige arbeider

Ventilasjon Nytt ventilasjonsanlegg

Antall: 1

Montering av nytt ventilasjonsanlegg og tilpasning av eksisterende luftesjakt

Ventilasjonsinstallasjon i leilighetene

Stål Limtrebjelker og stålbraketter

🧱 Limtre GL30c, stål S355

Limtrebjelker 140x315 mm, stålkvalitet S355, sveising og ankerstag M16 med Hilti RE 500 ankermasse

Nye limtrebjelker og stålbraketter for erstatning av bærende vegger og forsterkning av gulv og tak i 4. og 5. etasje

Grunnarbeid Ingen nye grunnarbeider

Tiltaket utføres i eksisterende bygg, ingen nye grunnarbeider

Ingen grunnarbeider nødvendig

Isolasjon Rockwool isolasjon i brannskille

🧱 Rockwool

Erstatning av stubbeloftsleire med Rockwool og gips i brannskillet mellom 4. og 5. etasje

Isolasjon for brannskilleoppgradering

Brannvern Branntetting og brannalarmanlegg

Branntetting av gjennomføringer, oppgradering av brannskille, installasjon av brannalarmanlegg og seriekoblede brannmeldere

Brannsikkerhetstiltak i bygget

Betong Oppbygging av bjelkeopplegg

Oppbygging med betong/tegl for limtrebjelke opplegg

Opplegg for limtrebjelker i teglvegg

Dører Innvendige dører og dobbeltdør mot hovedtrapp

🧱 Tre

Erstatning av to enkle dører med dobbeltdør mot hovedtrapp, øvrige dører mot hovedtrapp lukkes

Innvendige dører i leilighetene og trapperom

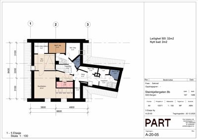
Plantegning

Leilighet 179.0 m²

Etasje 5 100.0 m²

Rom Areal Vinduer Dører
Stue/Kjøkken 501 20.0 m² 1 1
Sov 502 8.0 m² 0 1
Bad 503 2.0 m² 0 1
Gang 504 6.0 m² 0 2
Trapperom 505 4.0 m² 0 1
Bod 5. etg 506 4.0 m² 0 1
Bod 3etg 507 5.0 m² 0 1
Bod 4. etg 508 1.0 m² 0 1
Bod 1.etg 509 2.0 m² 0 1
Bod 2.etg 510 1.0 m² 0 1
Bod 4. etg 511 2.0 m² 0 1
Trapperom 512 6.0 m² 0 1
Felles bod 513 2.0 m² 0 1
Walk-in 514 3.0 m² 0 1

Etasje 4 79.0 m²

Rom Areal Vinduer Dører
Sov/stue 401 18.0 m² 1 1
Sov 402 9.0 m² 1 1
Spisestue 403 15.0 m² 1 0
Kjøkken 404 13.0 m² 1 1
Gang 405 12.0 m² 0 2
Bad 406 8.0 m² 0 1

Fasader

Enebolig

Nord Øst
Materiale
Tre
Taktype
Saltak
Vinduer
10
Dører
1
Synlige etasjer
4
Sør Øst
Materiale
Tre
Taktype
Saltak
Vinduer
10
Dører
1
Balkonger
3
Synlige etasjer
4
Sør Vest
Taktype
Saltak
Vinduer
10
Dører
1
Balkonger
3
Synlige etasjer
3

Hendelser

15.04.2026 Intern høring
15.04.2026 Anmodning om uttalelse
13.04.2026 Steinkjellergaten 8B Supplering av søknad 167/1486
13.04.2026 Behov for tilleggsopplysninger
19.03.2026 Bekreftelse på mottatt søknad
18.03.2026 Steinkjellergaten 8B Søknad om tillatelse i ett trinn 167/1486