ChangeOfUse UnderBehandling Leilighetsbygg

Bruksendring fra restaurant til leiligheter i Strandgata 17, Stathelle

📍 Strandgata 17 , 3960 STATHELLE

Nøkkelinfo

Sakstype
Bruksendring
Bygningstype
Leilighetsbygg
Bruksareal
237 m²
Boenheter
2
Kommune
Bamble
Fylke
Telemark
Gnr / Bnr
107 / 293
Saksnummer
2024/8622
Fase
Under behandling

Om byggesaken

Bruksendring av tidligere restaurant/pub i Strandgata 17 til boligformål med to boenheter. Bygget har to etasjer med et samlet bruttoareal på ca. 237 m². Ombyggingen omfatter hele 1. etasje og deler av 2. etasje, mens en eksisterende leilighet i 2. etasje ikke endres. Tiltaket inkluderer tilpasning av planløsning, branntekniske tiltak som branncellebegrensning med 30 minutters brannmotstand, seriekoblede røykvarslere og håndslokkeutstyr i hver boenhet. Det er søkt dispensasjon fra parkeringskrav og uteoppholdsareal, og det foreligger kulturminnefaglig vurdering som påpeker viktigheten av å bevare byggets eksteriør og originale bygningsdeler. Bygget er vernet og ligger i et bevaringsområde. Det er behov for ytterligere dokumentasjon for å oppfylle krav i TEK17, inkludert målsatte plantegninger, snitt, og redegjørelse for avvik og kompenserende tiltak.

Produkter og materialer

Ventilasjon Ventilasjonsanlegg

Separate ventilasjonsanlegg i hver leilighet, utført i ubrennbare materialer (klasse A2-s1,d0). Avtrekkskanaler fra kjøkken med brannmotstand EI15 A2-s1,d0 hvis ikke i sjakt.

Ventilasjonsanlegg tilpasset branntekniske krav.

Vinduer Rømningsvinduer

Antall: 3

Eksisterende vinduer i plan 2 for leilighet L1 og L3, og ett vindu i plan 1 for leilighet L2 skal tilrettelegges for rømning med minimum 0,6 m høyde og 0,5 m bredde, lett å åpne uten spesialverktøy, med lett demonterbar midtstokk.

Rømningsvinduer tilrettelegges for sikker rømningsvei.

Grunnarbeid Parkering

Antall: 0

Det er ikke etablert parkeringsplasser på egen eiendom. Søker har søkt dispensasjon fra parkeringskrav, med dokumentasjon på at det ikke er mulig å etablere parkeringsplasser på eiendommen, og at det foreligger private tinglyste parkeringsrettigheter på andre eiendommer.

Parkering løses uten nye plasser på egen eiendom, med dispensasjon og tinglyste rettigheter.

Fasade Yttervegger

🧱 Tre

Yttervegger mot nabobygninger med 30 minutters brannmotstand, spesielt mot uthus på ca. 100 m².

Brannsikring av yttervegger for å hindre brannspredning.

Dører Rømningsdører

Antall: 3

Eksisterende dører med begrensninger i bredde og høyde, bl.a. tofløyet dør med ca. 0,8 m bredde og 1,85 m høyde, sikret med panikkbeslag. Fri bredde minimum 0,86 m og fri høyde minimum 2,0 m er preakseptert, men unntak gjelder pga. lav etasjehøyde.

Rømningsdører med tilpasninger for sikker rømming.

Brannvern Røykvarslere

Antall: 3

Seriekoblede røykvarslere tilknyttet strømforsyning med batteribackup, minst én per etasje og boenhet, plassert i kjøkken, stue, sone utenfor soverom og tekniske rom.

Røykvarslere for varsling av brann i hver boenhet.

Brannvern Branncellebegrensende konstruksjoner

Branncellebegrensende konstruksjoner med brannmotstand EI30 [B30], inkludert vegger og takkonstruksjoner mellom leiligheter.

Branncellebegrensning for å hindre brannspredning mellom boenheter og nabobygninger.

Tak Takkonstruksjon

🧱 Teglstein

Eksisterende takkonstruksjon med brannmotstand EI30 [B30] ved hovedinngang, taktekking antatt teglstein.

Brannsikring av takkonstruksjon og taktekking.

Tømrer Innvendige ombygginger

🧱 Tre

Innvendige ombygginger for tilpasning til boligformål, inkludert planløsning, himlingshøyder og romfunksjoner.

Innvendige bygningsmessige arbeider for bruksendring.

Brannvern Håndslokkeutstyr

Antall: 2

Håndslokkeapparat eller husbrannslange i hver boenhet, minimum 6 kg pulverapparat med ABC-pulver eller tilsvarende.

Håndslokkeutstyr for brannslokking i startfasen.

Isolasjon Isolasjon i konstruksjoner

🧱 Ubrennbar eller begrenset brennbar

All isolasjon skal tilfredsstille klasse A2-s1,d0 (ubrennbar/begrenset brennbar).

Isolasjon med brannmotstand i henhold til TEK17.

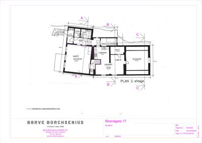
Plantegning

Leilighet 0.0 m²

Etasje 1 0.0 m²

Rom Areal Vinduer Dører
Stue L1-101 0.0 m² 0 0
Kjøkken L1-102 0.0 m² 0 0
Sove/Alkove L1-103 0.0 m² 0 0
Vask/Bod L1-104 0.0 m² 0 0
Bad L1-105 0.0 m² 0 0
Stue L2-101 0.0 m² 0 0
Kjøkken L2-102 0.0 m² 0 0
Bod L2-103 0.0 m² 0 0
Bad L2-104 0.0 m² 0 0
Entre L2-105 0.0 m² 0 0
Stue L1 39.3 m² 1 1
Stue L2 21.6 m² 1 1
Stue 1 39.3 m² 1 1
Kjøkken 2 10.6 m² 0 1
Entré 3 3.5 m² 0 1
Bod 4 4.2 m² 0 1
Bad 5 7.2 m² 0 1
Vask 6 1.9 m² 0 0
Bod/Vask 7 3.0 m² 0 1
Kort Gang 8 1.0 m² 0 1
Bad 9 3.0 m² 0 1
Alkove 10 4.3 m² 0 0

Etasje 2 0.0 m²

Rom Areal Vinduer Dører
Soverom L2 0.0 m² 0 1
Stue L2 0.0 m² 0 1
Kjøkken L2 0.0 m² 0 1
Teknisk L2 0.0 m² 0 1
Gang L2 0.0 m² 0 0
Bad L2 0.0 m² 0 1
WC L2 0.0 m² 0 1
Vindfang L2 0.0 m² 0 1
Soverom L3 0.0 m² 0 1
Stue L3 0.0 m² 0 1
Kjøkken L3 0.0 m² 0 1
Gang L3 0.0 m² 0 0
Soverom Sov 0.0 m² 0 1
Stue Stue 0.0 m² 0 1
Kjøkken Kjøkken 0.0 m² 0 1
Gang Gang 0.0 m² 0 0
Teknisk Teknisk 0.0 m² 0 1
Bad Bad 0.0 m² 0 1
WC WC 0.0 m² 0 1
Vindfang Vindfang 0.0 m² 0 1
Soverom L1 15.2 m² 0 1
Kjøkken K 7.0 m² 0 1
Gang G 6.7 m² 0 2
Teknisk T 0.0 m² 0 1
Bad B 3.5 m² 0 1
Vaskerom V 2.5 m² 0 1

Enebolig 0.0 m²

Etasje 2 0.0 m²

Rom Areal Vinduer Dører
Soverom 201 0.0 m² 0 1
Stue 202 0.0 m² 0 1
Kjøkken 203 0.0 m² 0 1
Gang 204 0.0 m² 0 0
Teknisk 205 0.0 m² 0 1
Bad 206 0.0 m² 0 1
WC 207 0.0 m² 0 1
Vindfang 208 0.0 m² 1 1
Dise. rom 209 0.0 m² 0 1
SOVEROM 101 29.6 m² 1 1
ENTRE 102 3.6 m² 0 1
VASK 103 2.0 m² 0 1
BAD 104 3.5 m² 0 1
GANG 105 9.7 m² 0 2
VENTILASJONSROM 106 0.0 m² 0 1
KJØKKEN 107 7.0 m² 0 1
KOTT 108 4.0 m² 0 1
STUE 109 18.0 m² 1 1
SOVEROM 110 15.2 m² 1 1

Etasje 1 0.0 m²

Rom Areal Vinduer Dører
Disp. rom 101 0.0 m² 3 1
Kjøkken 102 0.0 m² 0 2
WC 103 0.0 m² 0 1
Koh 104 0.0 m² 0 1
WC 105 0.0 m² 0 1
Bar 106 0.0 m² 1 1
Oppvask 107 0.0 m² 0 0
Kjøll 108 0.0 m² 0 0
KJØKKEN 109 10.6 m² 1 1
ENTRE 110 3.5 m² 0 1
Leil.2 111 39.3 m² 1 1

Flerbolig 75.0 m²

Etasje 2 75.0 m²

Rom Areal Vinduer Dører
Sov 301 29.6 m² 0 0
Stue 302 18.0 m² 0 0
Kjøkken 303 7.0 m² 0 0
Gang 304 6.7 m² 0 0
Kort 305 4.0 m² 0 0
Bad 306 3.5 m² 0 0
Vask 307 2.0 m² 0 0
Vindfang 308 3.6 m² 0 0
Teknisk 309 0.0 m² 0 0

Fasader

Enebolig

Vest
Materiale
Tre
Taktype
Saltak
Takmat.
Tegl
Vinduer
6
Dører
1
Synlige etasjer
1

Uthus

Vest
Materiale
Tre
Taktype
Saltak
Takmat.
Tegl
Vinduer
1
Dører
1
Synlige etasjer
1

Hendelser

17.04.2026 Tilsvar på mangelbrev - gbnr. 107/293 - Strandgata 17 - bruksendring
25.02.2026 Etterlyser løsning i saken - gbnr. 107/293 - Strandgata 17
18.02.2026 Ber om tilleggsopplysninger - mangelbrev - gbnr. 107/293 - Strandgata 17 - bruksendring
16.01.2026 Svar - forespørsel om mangelbrev og frist for tilbakemelding - gbnr. 107/293 - Strandgata 17 - bruksendring
13.01.2026 Forespørsel om mangelbrev og frist for tilbakemelding - gbnr. 107/293 - Strandgata 17 - bruksendring
02.12.2025 Oversendelse av vedtak i klagesak - gbnr. 107/293 - Strandgata 17 - bruksendring
15.08.2025 Klage på vedtak - avslag på søknad om bruksendring - gbnr. 107/293 - Strandgata 17
04.08.2025 Avvisning av mangelfull søknad - gbnr. 107/293 - Strandgata 17 - bruksendring
04.08.2025 Fakturagrunnlag avvisning av søknad - gbnr. 107/293 - Strandgata 17 - bruksendring
03.12.2024 Opprinnelig søknad med uttalelse fra fylket - gbnr. 107/293 - Strandgata 17 - bruksendring
03.12.2024 Mangler i søknad - gbnr. 107/293 - Strandgata 17 - bruksendring