ChangeOfUse Avslatt Leilighetsbygg

Bruksendring til forsamlingslokale i Øvre Torggate 12, Drammen

📍 Torggata 12 , 1870 ØRJE

Nøkkelinfo

Sakstype
Bruksendring
Bygningstype
Leilighetsbygg
Bruksareal
394 m²
Kommune
Drammen
Fylke
Buskerud
Gnr / Bnr
114 / 1282
Saksnummer
25/01063
Fase
Avslått

Om byggesaken

Bruksendring av eksisterende næringslokale på 394 m² i Øvre Torggate 12 til forsamlingslokale og kulturelt senter for inntil 250 personer ved spesielle anledninger. Lokalet ligger i underetasjen med adkomst fra gateplan og via parkeringshus. Bygningen har betongvegger, gulv og himling, og det skal bygges lettvegger for rominndeling. Det er etablert ventilasjonsanlegg, belysning med LED-paneler, flere toaletter, garderober, kjøkken og lagerrom. Brannteknisk vurdering viser at lokalet oppfyller krav til brannmotstand, rømningsveier og brannceller. Det er én trapp og to nødutganger. Det foreligger omfattende dokumentasjon på ventilasjon, belysning og branntekniske forhold. Nabomerknader gjelder blant annet støy, trafikk, parkering og reguleringsplan. Saken er avslått på grunn av strid med reguleringsplan og manglende samtykke fra sameiet.

Arbeidsomfang

- Innvendig bruksendring av eksisterende lokaler til religiøse aktiviteter (moské). - Oppføring av brannskille i bygget. - Tilpasning av innvendige rom for å ivareta krav til arbeidsmiljø (toaletter, dusjer, garderobe). - Oppføring av heis eller løfteplattform for tilgjengelighet. - Innretting av rømningsveier og nødutganger.

Produkter og materialer

Grunnarbeid Ingen nye grunnarbeider

Ingen terrenginngrep eller grunnarbeider i forbindelse med bruksendringen

Eksisterende bygg og grunnforhold benyttes uten endringer

Brannvern Branncellebegrensende konstruksjoner

🧱 Betong, mur

Branncelle EI60, brannmotstand R90 i bærende konstruksjoner, brannsikre dører EI2 60-CSa, brannskjerm over vinduer

Brannteknisk sikring av forsamlingslokalet med branncellebegrensende vegger, himling og gulv, samt nødutganger og rømningsveier

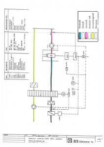
Ventilasjon Mekanisk balansert ventilasjon

Innreguleringsprotokoll for ventilasjonsanlegg, dokumentasjon på luftmengder pr. arbeidslokale, prosessavhengig avsug

Ventilasjonsanlegg som sikrer tilfredsstillende inneklima og luftskifte i forsamlingslokalet og tilhørende rom

Gulv Betonggulv

🧱 Betong

Eksisterende betonggulv med overflatebehandling

Betonggulv i forsamlingslokalet og tilhørende rom

Elektro LED belysning

Antall: 70

Namron LED panel 600x600 og 300x1200, 3000K, 750mA og 950mA, lysplan og lysberegninger i henhold til NS-EN 12464-1

Innendørs belysning med LED-paneler tilpasset arbeidsplassstandard og universell utforming

Rømningsutstyr Nødutganger og rømningsveier

Antall: 2

To nødutganger, en via gateplan og en via parkeringshus, dører med EI2 60-CSa klassifisering

Rømningsveier og nødutganger i henhold til branntekniske krav

Bad Toaletter og garderober

Antall: 8

Flere toaletter og garderober med tilhørende sanitærutstyr

Sanitæranlegg for ansatte og besøkende i forsamlingslokalet

Kjøkken Kjøkkenkrok

Antall: 1

Kjøkkenbenk og kaldkjøkken på 13.2 m²

Kjøkkenkrok for servering og matlaging i forsamlingslokalet

Tømrer Lettvegger

🧱 Gipsplater på stål- eller trestenderverk

Innvendige lettvegger for rominndeling i forsamlingslokalet

Oppføring av ikke-bærende lettvegger for toaletter, garderober, lager og tekniske rom

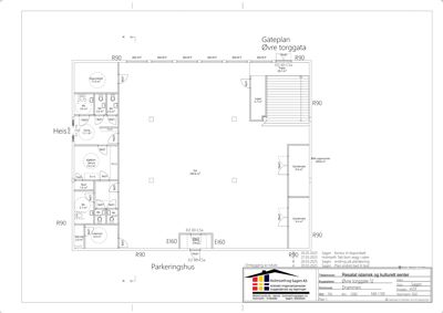
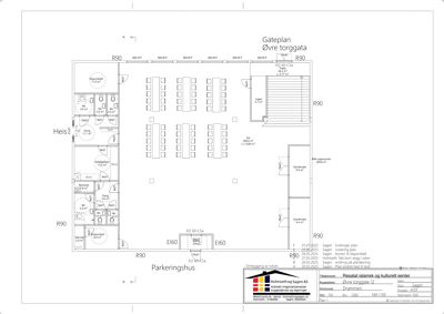
Plantegning

Parkeringshus 394.8 m²

Etasje 1 394.8 m²

Rom Areal Vinduer Dører
Sal 001 260.6 m² 0 0
Gang 002 11.1 m² 0 2
Kjøkken allrom 003 13.2 m² 0 2
Lekerom 004 6.9 m² 0 1
Teknisk 005 2.0 m² 0 1
Bod 006 1.6 m² 0 1
Wc 007 5.7 m² 0 1
Wc 008 1.4 m² 0 1
Wc 009 1.4 m² 0 1
Wc 010 3.6 m² 0 1
Wc 011 2.0 m² 0 1
Wc 012 2.0 m² 0 1
Vask 013 0.0 m² 0 1
Garderobe 014 9.4 m² 0 1
Garderobe 015 9.4 m² 0 1
Lager 016 5.7 m² 0 1
Disponibelt 017 11.9 m² 0 1
Sal 101 260.6 m² 0 0
Gang 102 11.1 m² 0 1
Kjøkken allrom 103 13.2 m² 0 1
Lager 104 5.7 m² 0 1
Garderobe 105 9.4 m² 0 1
Garderobe 106 9.4 m² 0 1
Wc 107 3.6 m² 0 1
Wc 108 2.0 m² 0 1
Wc 109 2.0 m² 0 1
Wc 110 5.7 m² 0 1
Wc 111 1.4 m² 0 1
Wc 112 1.4 m² 0 1
Bod 113 1.5 m² 0 1
Lekerom 114 6.9 m² 0 1
Teknisk 115 2.0 m² 0 1
Disponibelt 116 11.9 m² 0 1
Garderobe 117 9.4 m² 0 1
Garderobe 118 9.4 m² 0 1

Uthus 0.0 m²

Etasje 0 0.0 m²

Rom Areal Vinduer Dører
Pausrom 001 0.0 m² 0 1
WC 002 0.0 m² 0 1
HC/Kunde Toalett 003 0.0 m² 0 1
Heis 004 0.0 m² 0 1
Disponible 005 0.0 m² 0 0

Hendelser

08.04.2026 Øvre Torggate 12, Ber om utsettelse av fristen
19.03.2026 Øvre Torggate 12, anmodning om møte
12.03.2026 Øvre Torggate 12, kommunen opprettholder varsel om avslag avslag
10.03.2026 Øvre Torggate 12 Supplering av søknad 114/1282 søknad
10.03.2026 Øvre Torggate 12, vi vurderer å avslå søknaden din søknad
16.02.2026 Øvre Torggate 12 Supplering av søknad 114/1282 søknad
26.01.2026 Øvre Torggate 12, vedrørende utsatt frist
26.01.2026 Øvre Torggate 12, anmodning om utsettelse av frist
12.01.2026 Øvre Torggate 12, vedrørende utsatt frist
12.01.2026 Øvre Torggate 12, anmodning om utsettelse av frist
05.12.2025 Øvre Torggate 12, vi trenger flere opplysninger for å behandle søknaden din søknad
28.11.2025 Øvre Torggate 6, ber om status i sak
17.11.2025 Øvre Torggate 12, bekreftelse - vilkårene for samtykke er oppfylt
24.10.2025 Øvre Torggate 12, Etterkontroll – omgjøring av vedtaket om samtykke til vedtak om samtykke med vilkår vedtak
17.09.2025 Øvre Torggate 12, kopi: Etterkontroll – vi har ikke mottatt svar
11.08.2025 Øvre Torggate 12, Kopi: Etterkontroll – planene oppfyller fortsatt ikke kravene i regelverket
05.08.2025 Øvre Torggate 12 Supplering av søknad 114/1282 søknad
28.07.2025 Øvre Torggate 12 Supplering av søknad 114/1282 søknad
28.07.2025 Øvre Torggate 12 Søknad om tillatelse i ett trinn 114/1282 samtykke
25.07.2025 Øvre Torggate 12 - tilsvar til purring
23.07.2025 Øvre Torggate 12, purring på tilbakemelding etter innsending av klage klage
11.07.2025 Øvre Torggate 12, kopi: Oversendelse av vedtekter
11.07.2025 114/1282, Øvre Torggate 12, Kopi: Vi har foretatt etterkontroll av planene for tiltaket
10.07.2025 Øvre Torggate 12, kopi: Bekreftelse på mottak av vedtekter
10.07.2025 Øvre Torggate 12, kopi: Utsendelse av etterspurte vedtekter
09.07.2025 Øvre Torggate 12, Kopi av henvendelse om vedtekter
09.07.2025 Øvre Torggate 12, Seksjon RIKS i vårt sameie søker om bruksendring, Sameiet & Sentrum Borettslag protestere mot tiltaket og bruksendring
08.07.2025 Øvre Torggate 12, nabomerknad
08.07.2025 Øvre Torggate 12, kopi: Vi innvilger søknaden om samtykke etter automatisk saksbehandling søknad
23.06.2025 Øvre Torggate 12, Bekreftelse på at søknad om samtykke er trukket søknad
10.06.2025 Øvre Torggate 12, nabomerknad
22.05.2025 Øvre Torggate 12, Informasjon om ny ansvarlig søker
14.05.2025 Øvre Torggate 12, kopi: Vi mangler fortsatt opplysninger – nytt varsel om avslag på søknad avslag
19.02.2025 Øvre Torggate 12, Kopi: Dere får ny frist for å sende oss opplysninger
13.02.2025 Øvre Torggate 12, vi trenger flere opplysninger for å behandle søknaden din søknad
30.01.2025 Øvre Torggate 12, Svar på henvendelse fra Resalat Islamsk og kulturelt senter
22.01.2025 Øvre Torggate 12, Vi trenger flere opplysninger for å behandle søknaden – varsel om avslag på søknad avslag
08.01.2025 Øvre Torggate 12, Søknad om tillatelse til tiltak byggetillatelse