FacadeChange Soeknad Leilighetsbygg

Innglassing av balkong i leilighetsbygg, Askerveien 60

📍 Asker terrasse 7 , 1384 ASKER

Nøkkelinfo

Sakstype
Fasadeendring
Bygningstype
Leilighetsbygg
Kommune
Asker
Fylke
Akershus
Gnr / Bnr
2 / 315
Saksnummer
26/1157
Fase
Søknad

Om byggesaken

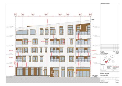
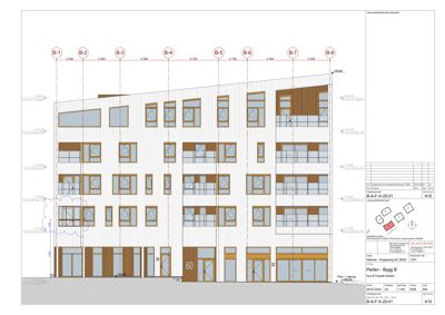
Prosjektet omfatter innglassing av en inntrukket hjørnebalkong i 2. etasje i leilighetsbygg Hus B, Askerveien 60. Eksisterende glassrekkverk fjernes og erstattes med faste glassfelt og skyvefelt i aluminiumsprofiler i okerbrun farge (RAL 8001), tilpasset byggets fasade og vindusformater. Den nye innglassingen monteres på balkongbrysningen med integrert rekkverk som oppfyller sikkerhetskrav. Tiltaket innebærer tilpasning av eksisterende trekonstruksjoner og riving av rekkverk, samt montering av glasskonstruksjoner. Balkongen er sprinklet, og innglassingen medfører ikke økning i bruksareal. Prosjektet er planlagt og prosjektert i henhold til TEK17 og tiltaksklasse 1, med godkjenning fra sameiets styre.

Produkter og materialer

Rekkverk Integrert rekkverk i innglassing

🧱 Aluminium

Antall: 1

Horisonal aluminiumsprofil som avslutning og rekkverk, høyde 1,0 m

Rekkverk integrert i innglassingskonstruksjonen som oppfyller sikkerhetskrav

Dører Skyvedører i innglassing

🧱 Aluminium og glass

Antall: 9

Skyvefelt delt i seks felt mot sørvest og tre felt mot sørøst, med egne vertikale profiler

Skyvedører som del av innglassingssystemet for balkong

Riving Fjerning av eksisterende glassrekkverk

Antall: 1

Riving av eksisterende glassrekkverk montert på innsiden av balkongbrysning

Riving av eksisterende rekkverk uten helse- eller miljøskadelige stoffer

Maling Overflatebehandling av aluminium

🧱 Pulverlakkert aluminium

Aluminiumsprofiler pulverlakkert i RAL 8001 okerbrun farge

Fargebehandling av innglassingsprofiler for fasadetilpasning

Tømrer Tilpasning av eksisterende trekonstruksjoner

🧱 Tre

Tilpasninger av eksisterende bygningsdeler for montering av innglassing

Tømrerarbeid for tilpasning av balkongkonstruksjon ved innglassing

Fasade Innglassing balkong

🧱 Aluminiumsprofiler i okerbrun farge (RAL 8001), glass

Faste glassfelt og skyvefelt med vertikale aluminiumsprofiler, integrert rekkverk med høyde 1,0 m, tilpasset eksisterende balkongbrysning

Innglassing av inntrukket hjørnebalkong med skyvefelt og faste glassfelt i aluminiumsrammer, farge RAL 8001

Fasader

Hus B

Sørvest
Materiale
Tre
Taktype
Saltak
Høyde
113.8 m
Mønehøyde
126.3 m
Vinduer
18
Dører
1
Balkonger
4
Synlige etasjer
4
Sørøst
Materiale
Tre
Taktype
Flatt tak
Høyde
10.9 m
Vinduer
24
Dører
1
Synlige etasjer
4

Hendelser

10.04.2026 2/315 Askerveien 60 - Søknad om tillatelse i ett trinn - Fasadeendring / innglassing av veranda