Photo
Fotografi av en hvit, toetasje bygning sett fra siden, med bakgrunn av fjell og et byområde.
1 / 13
FacadeChange
Unknown
Leilighetsbygg
Fasaderehabilitering
📍 Hornnesvegen 21A , 6809 FØRDE
Nøkkelinfo
- Sakstype
- Fasadeendring
- Bygningstype
- Leilighetsbygg
- Kommune
- Sunnfjord
- Fylke
- Vestland
- Gnr / Bnr
- 21 / 301
- Saksnummer
- 2026/2159
- Fase
- Unknown
Om byggesaken
Saken gjelder søknad om tillatelse i ett trinn for rehabilitering av fasade på et leilighetsbygg i Stranda Burettslag.
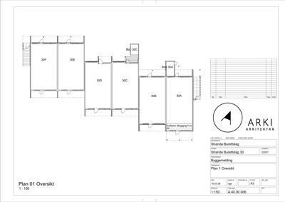
Plantegning
Enebolig 0.0 m²
Etasje 1 0.0 m²
| Rom | Areal | Vinduer | Dører |
|---|---|---|---|
| 31D 31D | 0.0 m² | 1 | 1 |
| 31C 31C | 0.0 m² | 1 | 1 |
| 31B 31B | 0.0 m² | 1 | 1 |
| 31A 31A | 0.0 m² | 1 | 1 |
| BOD 29C 29C | 0.0 m² | 0 | 1 |
| EKS. BOD 31B 31B | 0.0 m² | 0 | 1 |
| 30A 30A | 0.0 m² | 1 | 1 |
| 30B 30B | 0.0 m² | 1 | 1 |
| 30C 30C | 0.0 m² | 0 | 1 |
| 30D 30D | 0.0 m² | 0 | 1 |
| 30E 30E | 0.0 m² | 0 | 1 |
| 30F 30F | 0.0 m² | 0 | 1 |
| Bod 30A Bod 30A | 0.0 m² | 0 | 1 |
| Bod 30C Bod 30C | 0.0 m² | 0 | 1 |
Fasader
Stranda Burettslag
Aust
- Materiale
- Tre
- Taktype
- Flatt tak
- Vinduer
- 1
- Dører
- 1
- Balkonger
- 1
- Synlige etasjer
- 2
Vest
- Materiale
- Tre
- Taktype
- Flatt tak
- Vinduer
- 1
- Dører
- 1
- Balkonger
- 1
- Synlige etasjer
- 2
Enebolig
Nord
- Materiale
- Tre
- Taktype
- Flatt tak
- Vinduer
- 12
- Dører
- 4
- Synlige etasjer
- 2
Sør
- Materiale
- Tre
- Taktype
- Flatt tak
- Vinduer
- 16
- Dører
- 4
- Balkonger
- 4
- Synlige etasjer
- 2
Hendelser
21.04.2026
Førebels svar på søknad for Fasaderehabilitering på gbnr. 21/301
09.04.2026
Søknad om tillatelse i ett trinn gbnr. 21/301, Hornnesvegen
24.03.2026
Uttale - Nabovarsel - Fasaderehabilitering - gnr 21 bnr 301 - Hornnesvegen - Sunnfjord kommune