FacadeChange Soeknad Leilighetsbygg

Fasadeendring og ny altan på leilighetsbygg i Nesveien 11, Bergen

📍 Nesveien 11 , 5114 TERTNES

Nøkkelinfo

Sakstype
Fasadeendring
Bygningstype
Leilighetsbygg
Bruksareal
21 m²
Kommune
Bergen
Fylke
Vestland
Gnr / Bnr
186 / 339
Saksnummer
BYGG-2026/12397
Fase
Søknad

Om byggesaken

Fasadeendring på eksisterende leilighetsbygg i Nesveien 11 med tillegg av ny altan på ca. 21,8 m². Bygget er et to-etasjes trebygget leilighetsbygg med saltak og pipe. Endringene omfatter nye fasader mot nord, sør og vest, med oppgradering av fasadematerialer i tre. Den nye altanen er planlagt med trekonstruksjon og tilhørende rekkverk. Prosjektet inkluderer også oppdaterte vinduer og dører i fasaden, samt tilpasninger i planløsningen for å integrere altanen. Totalt arealendring er ca. 21 m², og tiltaket påvirker ikke grunnarealet vesentlig.

Produkter og materialer

Fasade Trepanel og trekonstruksjoner

🧱 Tre

Oppgradering av fasade med trekledning på nord, sør og vest fasader

Nye fasadeelementer i tre for oppgradering av eksisterende fasade

Vinduer Fasadevindu i tre

🧱 Tre med 3-lags energiglass

Antall: 9

Nye og oppgraderte vinduer i fasaden, inkludert nord, sør og vest fasader

Utskifting og oppgradering av fasadevinduer i tre med energiglass

Dører Ytterdører i tre

🧱 Tre

Antall: 2

Nye ytterdører i fasaden, tilpasset ny altan og fasadeendring

Ytterdører i tre til fasade og altan

Tømrer Montering av trekonstruksjoner

Utførelse av tømrerarbeid og montering av trekonstruksjoner for altan og fasade

Tømrerarbeid for fasadeendring og ny altan

Isolasjon Fasadeisolasjon

Isolasjon i forbindelse med oppgradering av fasade

Isolasjon for ny fasadebekledning

Grunnarbeid Fundamentering for altan

Fundamentering for ny altan i trekonstruksjon

Grunnarbeid og fundamentering for ny altan

Maling Utendørs maling

Maling av ny fasade og altan i tre

Utendørs maling av treflater på fasade og altan

Balkong Altan i trekonstruksjon

🧱 Tre

Antall: 1

Ny altan på ca. 21,8 m² med rekkverk i tre

Ny altan med trekonstruksjon og rekkverk

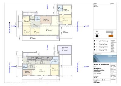
Plantegning

Enebolig 220.5 m²

Etasje 1 120.5 m²

Rom Areal Vinduer Dører
Stue 101 30.2 m² 2 1
Kjøkken 102 10.2 m² 1 1
Hall 103 7.2 m² 0 4
Sov 104 10.1 m² 1 1
Sov 105 6.9 m² 1 1
Sov 106 6.3 m² 1 1
Bad 107 2.8 m² 0 1
Vf 108 2.7 m² 0 1
Bad 109 3.0 m² 0 1
Kontor 110 10.0 m² 1 1
Sov 111 13.6 m² 1 1
Altan 112 21.8 m² 0 0
Altan 113 20.4 m² 0 0

Etasje 0 100.0 m²

Rom Areal Vinduer Dører
Stue 001 21.3 m² 1 1
Kjøkken 002 6.0 m² 1 1
Sov 003 10.5 m² 1 1
Bad 004 2.5 m² 0 1
Gang 005 4.4 m² 0 2
Gang 006 6.2 m² 0 2
Vaskerom 007 6.3 m² 0 1
Bod 008 2.0 m² 0 1
Bod 009 2.0 m² 0 1
Bod 010 2.8 m² 0 1
Bod 011 2.7 m² 0 1
Bod 012 2.2 m² 0 1

Fasader

Enebolig

Nord Vest
Materiale
Tre
Taktype
Saltak
Vinduer
5
Dører
1
Balkonger
1
Synlige etasjer
2
Nord Øst
Materiale
Tre
Taktype
Saltak
Vinduer
2
Dører
1
Synlige etasjer
2
Sør Øst
Materiale
Tre
Taktype
Saltak
Vinduer
4
Dører
0
Synlige etasjer
2
Sør Vest
Materiale
Tre
Taktype
Saltak
Vinduer
3
Dører
0
Synlige etasjer
2

Hendelser

09.04.2026 Nesveien 11 Søknad om tillatelse i ett trinn 186/339