Rendering
Fasadegrendering som viser front- og sideutsyn av en toetasjes bolig med garasje.
1 / 20
FacadeChange
UnderBehandling
Leilighetsbygg
Fasadeendring på leilighetsbygg i Bjørnkloa 1, Bodø
📍 Storbjørnen 10 , 8029 BODØ
Nøkkelinfo
- Sakstype
- Fasadeendring
- Bygningstype
- Leilighetsbygg
- Boenheter
- 12
- Kommune
- Bodø
- Fylke
- Nordland - Nordlánnda
- Gnr / Bnr
- 43 / 770
- Saksnummer
- 2026/15269
- Fase
- Under behandling
Om byggesaken
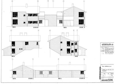
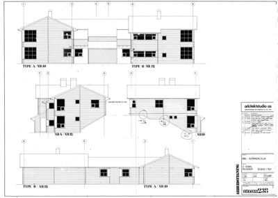
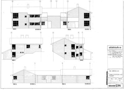
Fasadeendring på et 2-etasjes leilighetsbygg med 12 leiligheter i Bjørnkloa 1, Bodø. Endringen består hovedsakelig i utskifting av vinduer fra sprossevinduer til vinduer uten sprosser, med tilhørende oppdatering av fasadens utseende. Bygget har trekledning, saltak, og pipe, med varierende antall vinduer og dører på hver fasade. Prosjektet omfatter prosjektering og utførelse av vindusskiftet, og er planlagt gjennomført av ansvarlige foretak med sentral godkjenning. Det foreligger situasjonsplan og fasadetegninger som viser detaljene i endringen.
Produkter og materialer
Tak
Saltak
🧱 Eksisterende tak beholdes
Saltak med gesimshøyde 6,5 m og mønehøyde 8,2 m, ingen endring i taket
Eksisterende saltak opprettholdes
Vinduer
Utskifting av fasadevinduer
🧱 Trolig tre eller aluminium, uten sprosser
Antall: 18
Skifte fra sprossevinduer til vinduer uten sprosser, i henhold til fasadetegninger for 3- og 4-roms leiligheter
Nye fasadevinduer uten sprosser for alle fasader på leilighetsbygget
Tømrer
Montering av vinduer
Antall: 18
Montering av nye vinduer i fasaden
Utførelse av vindusskiftet i fasaden
Mur
Pipe
Antall: 1
Eksisterende pipe på bygget, ingen endring
Pipe på taket
Fasade
Tre kledning
🧱 Tre
Eksisterende trekledning opprettholdes, tilpasning rundt nye vinduer
Fasade i tre med tilpasning ved vindusskiftet
Fasader
4 ROMS LEILIGHET TYPE B
Nord
- Materiale
- Tre
- Taktype
- Saltak
- Høyde
- 6.5 m
- Mønehøyde
- 8.2 m
- Vinduer
- 6
- Dører
- 1
- Synlige etasjer
- 2
Sør
- Materiale
- Tre
- Taktype
- Saltak
- Høyde
- 6.5 m
- Mønehøyde
- 8.2 m
- Vinduer
- 3
- Dører
- 1
- Synlige etasjer
- 2
Øst
- Materiale
- Tre
- Taktype
- Saltak
- Høyde
- 6.5 m
- Mønehøyde
- 8.2 m
- Vinduer
- 6
- Dører
- 1
- Balkonger
- 1
- Synlige etasjer
- 2
Vest
- Materiale
- Tre
- Taktype
- Saltak
- Høyde
- 6.5 m
- Mønehøyde
- 8.2 m
- Vinduer
- 3
- Dører
- 1
- Synlige etasjer
- 2
Garasje
Nord
- Materiale
- Tre
- Taktype
- Flatt tak
- Vinduer
- 2
- Dører
- 0
- Synlige etasjer
- 1
Hendelser
22.04.2026
Spørsmål om saksbehandlingstid
30.03.2026
Ett-trinns søknad - Bjørnkloa 1
27.03.2026
Bekreftelse på mottatt søknad - Bjørnkloa 1