FloorPlan
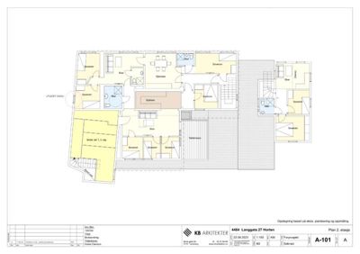
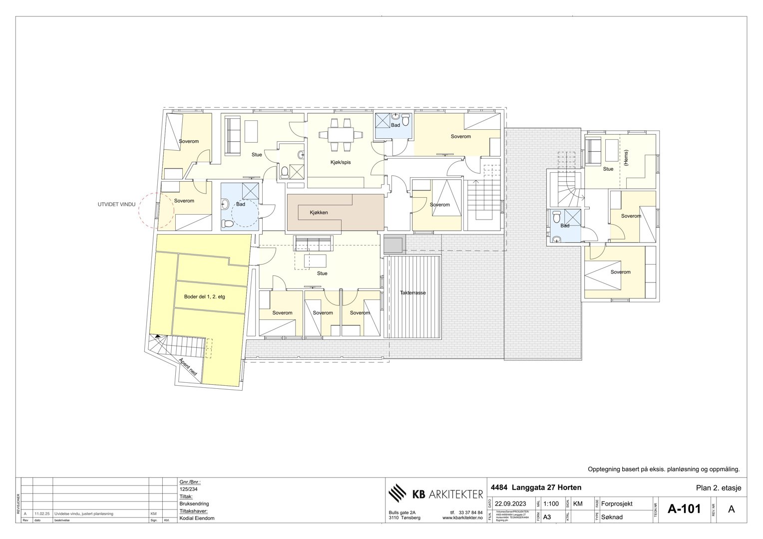
Etasjeplan (Plan 2. etasje) som viser romfordeling, vegger og innganger for et hus.
1 / 4
FacadeChange
UnderBehandling
Leilighetsbygg
Fasadeendring og etasjeskille i leilighetsbygg, Langgata 27
📍 Thranes gate 3A , 3187 HORTEN
Nøkkelinfo
- Sakstype
- Fasadeendring
- Bygningstype
- Leilighetsbygg
- Kommune
- Horten
- Fylke
- Vestfold
- Gnr / Bnr
- 125 / 234
- Saksnummer
- 2025/2331
- Fase
- Under behandling
Om byggesaken
Prosjektet omfatter fasadeendring på vestfasaden av et eksisterende leilighetsbygg i Langgata 27, hvor et eksisterende vindu i 2. etasje utvides for å tilpasse ny planløsning. I tillegg oppføres et nytt etasjeskille mellom 1. og 2. etasje, som innebærer montering av nytt dekke og vegger i deler av 2. etasje. Bygget inneholder flere boenheter med blant annet soverom, bad, kjøkken og stue. Arbeidet inkluderer også riving, miljøsanering og nye sanitærinstallasjoner i 2. etasje. Prosjektet er i ferd med å ferdigstilles, men det gjenstår fortsatt oppføring av etasjeskille i deler av 1. og 2. etasje.
Produkter og materialer
Tømrer
Etasjeskille og vegger
🧱 Trekonstruksjoner
Oppføring av nytt etasjeskille mellom 1. og 2. etasje, inkludert dekke og vegger i deler av 2. etasje
Montering av trekonstruksjoner for nytt etasjeskille og ombygging av vegger i 2. etasje
Sanitærinstallasjoner
Nye bad 2. etasje
Nye sanitærinstallasjoner i to nye bad i 2. etasje
Installasjon av sanitærutstyr i nye bad som er etablert i 2. etasje
Riving
Miljøsanering og riving
Riving og miljøsanering i forbindelse med ombygging i 2. etasje
Fjerning av eksisterende konstruksjoner og miljøsanering før oppføring av nytt etasjeskille
Vinduer
Fasadevindu
Antall: 1
Utvidelse av eksisterende vindu i 2. etasje på vestfasade
Større fasadevindu i 2. etasje for bedre lysinnslipp og tilpasning til ny planløsning
Plantegning
Enebolig 0.0 m²
Etasje 2 0.0 m²
| Rom | Areal | Vinduer | Dører |
|---|---|---|---|
| Stue 201 | 0.0 m² | 1 | 2 |
| Kjøkken 202 | 0.0 m² | 0 | 1 |
| Kjøk/spis 203 | 0.0 m² | 0 | 1 |
| Bad 204 | 0.0 m² | 0 | 1 |
| Bad 205 | 0.0 m² | 0 | 1 |
| Soverom 206 | 0.0 m² | 1 | 1 |
| Soverom 207 | 0.0 m² | 1 | 1 |
| Soverom 208 | 0.0 m² | 1 | 1 |
| Soverom 209 | 0.0 m² | 1 | 1 |
| Soverom 210 | 0.0 m² | 1 | 1 |
| Soverom 211 | 0.0 m² | 1 | 1 |
| Soverom 212 | 0.0 m² | 1 | 1 |
| Stue 213 | 0.0 m² | 1 | 1 |
| Soverom 214 | 0.0 m² | 1 | 1 |
| Soverom 215 | 0.0 m² | 1 | 1 |
| Bad 216 | 0.0 m² | 0 | 1 |
| Takterasse 217 | 0.0 m² | 0 | 0 |
| Boder del 1, 2. etg 218 | 0.0 m² | 0 | 0 |
Hendelser
21.04.2026
Langgata 27, 125/234 - fasadeendring og oppføring av etasjeskille i 2. etg - ber om utsatt frist for ferdigattest
08.04.2025
Langgata 26, 125/234 - fasadendring, og oppføring av etasjeskille - midlertidig brukstillatelse - vedtak
28.03.2025
125/234, Langgata 27 - søknad om midlertidig brukstillatelse
06.03.2025
Langgata 27, 125/234 - endring av gitt tillatelse - (større vindu i 2. etg.) - vedtak
17.02.2025
Søknad om endring av gitt tillatelse