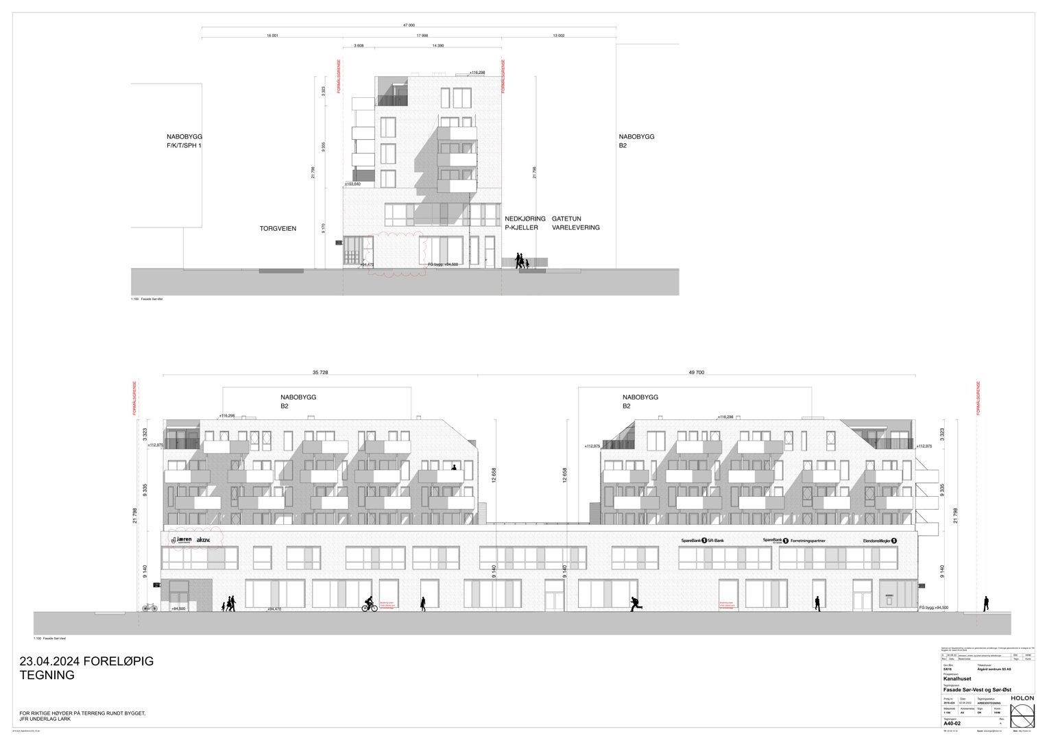
Facade
Fasadetegning som viser bygningens utseende fra fronten, inkludert vinduer, balkonger og høydeangivelser.
1 / 7
FacadeChange
Rammetillatelse
Leilighetsbygg
Fasadeendring med innglassing av balkonger i Torgveien 20, Ålgård
📍 Torgveien 20 , 4330 ÅLGÅRD
Nøkkelinfo
- Sakstype
- Fasadeendring
- Bygningstype
- Leilighetsbygg
- Kommune
- Gjesdal
- Fylke
- Rogaland
- Gnr / Bnr
- 5 / 618
- Saksnummer
- 26/00713
- Fase
- Rammetillatelse
Om byggesaken
Fasadeendring på leilighetsbygget Kanalhuset i Torgveien 20, Ålgård, omfatter utvidelse av glass i balkongrekkverk. Tette rekkverksfelt på frontbalkonger erstattes med glassfelt, og på endebalkonger erstattes hele feltet med glass for å bedre lys- og utsiktsforhold. Bygget har fire etasjer med fasader i betong og platemontasje, og flate og saltak. Arbeidet inkluderer montering av glassrekkverk på eksisterende balkonger, med ansvarlig utførende TM BYGGTEK AS. Tiltaket er i tråd med gjeldende reguleringsplan og er godkjent av kommunen.
Produkter og materialer
Tømrer
Montering av glassrekkverk
Montering av glass i rekkverk utføres av TM BYGGTEK AS som ansvarlig utførende
Utførelse av innglassing og montering av glassrekkverk på balkonger
Fasade
Glassrekkverk til balkonger
🧱 Glass
Erstatning av tette rekkverksfelt med glassfelt på frontbalkonger, og full innglassing av felt på endebalkonger, i henhold til tegninger datert 05.03.2026 fra TM Byggtek AS
Glassfelt til balkongrekkverk for bedre lys og utsikt
Fasader
Kanalhuset
Nord-Øst
- Høyde
- 21.8 m
- Vinduer
- 10
- Dører
- 2
- Balkonger
- 3
- Synlige etasjer
- 4
Nord-Vest
- Høyde
- 21.8 m
- Vinduer
- 12
- Dører
- 3
- Balkonger
- 4
- Synlige etasjer
- 4
Nordøst
- Materiale
- Platemontasje
- Taktype
- Saltak
- Høyde
- 12.7 m
- Mønehøyde
- 15.3 m
- Vinduer
- 12
- Dører
- 1
- Balkonger
- 1
- Synlige etasjer
- 4
Nordvest
- Materiale
- Platemontasje
- Taktype
- Saltak
- Høyde
- 12.7 m
- Mønehøyde
- 15.3 m
- Vinduer
- 12
- Dører
- 1
- Balkonger
- 1
- Synlige etasjer
- 4
Sør
- Materiale
- Betong
- Taktype
- Flatt tak
- Høyde
- 12.7 m
- Vinduer
- 14
- Dører
- 2
- Synlige etasjer
- 4
Øst
- Materiale
- Betong
- Taktype
- Flatt tak
- Høyde
- 11.6 m
- Vinduer
- 10
- Dører
- 1
- Balkonger
- 4
- Synlige etasjer
- 4
Sørøst
- Materiale
- Platemontasje
- Taktype
- Flatt tak
- Høyde
- 12.7 m
- Vinduer
- 12
- Dører
- 1
- Balkonger
- 1
- Synlige etasjer
- 4
Sørvest
- Materiale
- Platemontasje
- Taktype
- Flatt tak
- Høyde
- 12.7 m
- Vinduer
- 12
- Dører
- 1
- Balkonger
- 1
- Synlige etasjer
- 4
Hendelser
10.04.2026
26/00713-2 GODKJENT - søknad fra Sameiet Kanalhuset om endring av fasade på gnr. 5, gnr. 618, Torgveien 20, Ålgård
20.03.2026
26/00713-1 Søknad fra Sameiet Kanalhuset om endring av fasade på gnr. 5, gnr. 618, Torgveien 20, Ålgård