FacadeChange Igangsettingstillatelse Leilighetsbygg

Fasadeendring og ombygging av Solbekkgården, Torvgata 3, Kragerø

📍 Torvgata 3 , 3770 KRAGERØ

Nøkkelinfo

Sakstype
Fasadeendring
Bygningstype
Leilighetsbygg
Bruksareal
786 m²
Kommune
Kragerø
Fylke
Telemark
Gnr / Bnr
32 / 52
Saksnummer
2024/5175
Fase
Igangsettingstillatelse

Om byggesaken

Solbekkgården er et eksisterende treetasjes leilighetsbygg med et totalt bruksareal på ca. 786 m². Bygget gjennomgår omfattende fasadeendringer med nye mer oppsprossede vinduer og reetablering av et tidligere avkappet hjørne for å oppnå økt symmetri og forskjønnelse i tråd med byggets historiske uttrykk. Innvendig beholdes hovedromstrukturen med noen justeringer av åpninger og dører, samt etablering av nye toaletter i 1. etasje. Tekniske anlegg oppgraderes, inkludert brannalarm, nødlys og slukkeanlegg. Det installeres også en ny løfteplattform (Apollo M) for tilgjengelighet mellom etasjene. Bygget er registrert som kulturminne og tiltaket er tilpasset dette med bruk av varige materialer som høvlet kledning, trevinduer med kittfals og linoljemaling. Bygget får midlertidig brukstillatelse med gjenstående arbeid på fasade sydvest. Prosjektet inkluderer dispensasjoner fra veiloven og standard abonnementsvilkår for VA. Brannsikkerheten er dokumentert med brannkonsept og uavhengig kontroll, og det anbefales installasjon av sprinkleranlegg selv om det ikke er påkrevd.

Produkter og materialer

Trapper Innvendig trapp mellom etasjer

Antall: 1

Eksisterende trapp oppgraderes, inkludert trapp til hems i 3. etasje

Oppgradering og tilpasning av innvendige trapper

Maling Linoljemaling

🧱 Linoljemaling

Maling av fasade i tråd med tradisjonell fargesetting og kulturminneanbefalinger

Overflatebehandling av trefasader

VVS Sanitærinstallasjoner

Nye toaletter i 1. etasje, oppgradering av sanitærinstallasjoner

Oppgradering av sanitærinstallasjoner i forbindelse med ombygging

Vinduer Fasadevindu med gjennomgående sprosser og kittfals

🧱 Tre

Antall: 16

Nye mer oppsprossede vinduer i fasaden, i tråd med kulturminneanbefalinger

Bytte og oppgradering av fasadevinduer med tradisjonell utførelse

Tak Teglstein taktekking

🧱 Teglstein

Eksisterende taktekking beholdes, anbefalt rød enkeltkrum teglstein

Bevaring og oppgradering av taktekking

Grunnarbeid Fortauutvidelse

Utvidelse av fortau langs nordvestre hjørne med ca. 0,3 m, justering av kum ved fortauskant

Utendørs arbeid i forbindelse med fasadeendring og ombygging

Dører Ytterdører i tre med glassfelt

🧱 Tre

Antall: 4

Inkluderer ny hovedinngangsdør på vestfasade, samt dører i rømningsveier med brannmotstand EI2 30-Sa

Nye og flytting av inngangsdører, samt brannsikre dører i rømningsveier

Isolasjon Rockwool isolasjon i bindingsverk

🧱 Rockwool

200 mm isolasjon i yttervegg, 150 mm isolasjon innvendig med fibergipsplater

Isolasjon i yttervegger for brann- og varmeisolasjon

Elektro Brannalarm og nødlys

Brannalarmanlegg kategori II med optiske og akustiske signaler, nødlys i rømningsveier

Oppgradering av brannalarm og nødlys

Heis Løfteplattform Apollo M

Antall: 1

Selvbærende sjakt, 6 etasjer, kapasitet 500 kg / 6 personer, 0,15 m/s hastighet, 230V 1-fas 10A, hvit standardfarge, glassfelt i dører

Ny løfteplattform for tilgjengelighet mellom etasjer

Byggematerialer Stålsøyler og betongdragere

🧱 Stål, betong

Nye stålsøyler HUP 120x120x10 og 100x100x8 i 1. etasje med god sikkerhetsmargin, festet på armert betongdrager

Bærekonstruksjoner for ombygging og fasadeendring

Slokkeanlegg Brannslokkeutstyr og anbefalt sprinkleranlegg

Manuelle brannslanger, håndslokkere, anbefalt automatisk sprinkleranlegg (ikke påkrevd)

Brannsikkerhetstiltak i bygget

Fasade Høvlet kledning

🧱 Tre

Bruk av høvlet kledning med linoljemaling, i tråd med kulturminneanbefalinger

Fasadeoppgradering med tradisjonelle materialer og maling

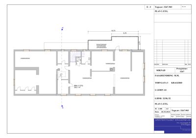
Plantegning

Enebolig 252.1 m²

Etasje 3 252.1 m²

Rom Areal Vinduer Dører
VISNINGSROM 301 0.0 m² 3 1
VISNINGSROM 302 0.0 m² 2 1
VISNINGSROM 303 0.0 m² 2 1
VISNINGSROM 304 0.0 m² 2 1
WC 305 0.0 m² 0 1
TRAPPE 306 0.0 m² 0 0

Fasader

Enebolig

Nord
Materiale
Tre
Taktype
Saltak
Vinduer
16
Dører
1
Synlige etasjer
2
Sør
Materiale
Tre
Taktype
Saltak
Vinduer
8
Dører
1
Balkonger
1
Synlige etasjer
2
Vest
Materiale
Tre
Taktype
Saltak
Takmat.
Tegl
Vinduer
3
Dører
1
Synlige etasjer
2
Øst
Materiale
Tre
Taktype
Saltak
Takmat.
Tegl
Vinduer
6
Dører
1
Balkonger
1
Synlige etasjer
2

Hendelser

15.04.2026 Søknad om endring av gitt tillatelse - Gbnr. 32/50 og 32/52 - Torvgata 3 - Solbekkgården - Søknad om fasadeendring, ombygging og nytt anlegg
05.06.2025 Midlertidig brukstillatelse - Gbnr. 32/50 og 32/52 - Torvgata 3 - Solbekkgården - Søknad om fasadeendring, ombygging og nytt anlegg
05.06.2025 Søknad om midlertidig brukstillatelse - Gbnr. 32/50 og 32/52 - Torvgata 3 - Solbekkgården - Søknad om fasadeendring, ombygging og nytt anlegg
19.03.2025 Supplering av søknad, endret ansvarsrett - Gbnr. 32/50 og 32/52 - Torvgata 3 - Solbekkgården - Søknad om fasadeendring, ombygging og nytt anlegg
26.02.2025 Bekrefter mottak av supplering og ber om avklaring av sentral godkjenning - Gbnr. 32/50 og 32/52 - Torvgata 3 - Solbekkgården - Søknad om fasadeendring, ombygging og nytt anlegg
25.02.2025 Supplering av søknad - Gbnr. 32/50 og 32/52 - Torvgata 3 - Solbekkgården - Søknad om fasadeendring, ombygging og nytt anlegg
19.02.2025 Purring - Gbnr. 32/50 og 32/52 - Torvgata 3 - Solbekkgården - Oppklaring vedr. prosjekterende
30.01.2025 Ber om oppklaring vedr. prosjekterende - Gbnr. 32/50 og 32/52 - Torvgata 3 - Solbekkgården - Søknad om fasadeendring, ombygging og nytt anlegg
23.01.2025 Gbnr. 32/50 og 32/52 - Torvgata 3 - Solbekkgården - Varsel om byggeplasstilsyn
11.12.2024 Fakturagrunnlag - Gbnr 32/50 og 32/52 - Søknad om fasadeendring, ombygging og nytt anlegg
10.12.2024 Tillatelse - Gbnr. 32/50, 52 - Torvgata 3 - Solbekkgården - Søknad om fasadeendring, ombygging og nytt anlegg
27.11.2024 Etterspør tilbakemelding - Gbnr. 32/50 og 32/52 - Torvgata 3 - Solbekkgården - Søknad om fasadeendring - Ombygging og nytt anlegg
21.11.2024 Uttale fra GBR - Bra brannkonsept - Anbefaler automatisk slokkeanlegg (sprinkler) - Gbnr. 32/50 og 32/52 - Torvgata 3 - Solbekkgården - Søknad om fasadeendring - Ombygging og nytt anlegg
18.11.2024 Supplering til saken - Gbnr. 32/50 og 32/52 - Torvgata 3 - Solbekkgården - Søknad om fasadeendring, ombygging og nytt anlegg
15.11.2024 Kulturmiljøfaglig uttale - Gbnr. 32/50, 52 - Torvgata 3, Solbekkgården - Søknad om fasadeendring, ombygging og nytt anlegg
14.11.2024 Behov for ytterligere dokumentasjon - Gbnr. 32/50, 52 - Torvgata 3, Solbekkgården - Søknaden om fasadeendring, ombygging og nytt anlegg
14.11.2024 Ber om uttale etter kulturminneloven - Gbnr. 32/50, 52 - Torvgata 3, Solbekkgården - Søknad om fasadeendring, ombygging og nytt anlegg
13.11.2024 Ytterligere opplysninger til søknaden - Gbnr. 32/50, 32/52 - Torvgata 3, Solbekkgården - Søknad om fasadeendring, ombygging og nytt anlegg
31.10.2024 Søknad om tillatelse i ett trinn - Gbnr 32/50, 32/52 Fasadeendring, ombygging Solbekkgården