NewConstruction Rammetillatelse Leilighetsbygg

Ny bolig- og næringsbygg med riving i Barliveien 21, Bergen

📍 Barliveien 101 , 5142 FYLLINGSDALEN

Nøkkelinfo

Sakstype
Nybygg
Bygningstype
Leilighetsbygg
Bruksareal
3,514 m²
Boenheter
28
Kommune
Bergen
Fylke
Vestland
Gnr / Bnr
22 / 874
Saksnummer
BYGG-2025/16008
Fase
Rammetillatelse

Om byggesaken

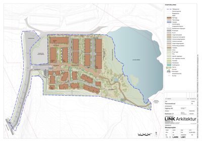
Prosjektet omfatter riving av eksisterende næringsbygg og oppføring av to nye boligblokker med til sammen 28 boenheter og ca. 327 m² næringsareal i Barliveien 21, Fyllingsdalen, Bergen. Byggene er organisert vinklet mot hverandre med felles garasjeanlegg under terreng. Uteområdene inkluderer gatetun, allmenning med overvannsbekk, lekeplasser og grøntdrag som kobler til eksisterende naturområder. Byggene planlegges med høy arkitektonisk kvalitet, universell utforming, og miljøambisjoner som inkluderer bruk av massivtre, solceller, energibrønner og omfattende miljøoppfølging. Prosjektet har godkjent rammetillatelse og omfattende dokumentasjon for brannsikring, miljø, overvann, og trafikk.

Produkter og materialer

Tak Taktekking

🧱 Broof(t2) klassifisert taktekking

Taktekking iht. brannklasse og klima

Taktekking på boligblokker og næringsareal

VVS Sprinkleranlegg

Automatisk sprinkleranlegg iht. NS-EN 12845:2015+A1:2019 i hele bygningsmassen

Brannsikring med sprinkler i boligblokker og garasje

Dører Ytterdører

Terskelfri adkomst, universell utforming

Ytterdører med god isolasjon og tilgjengelighet

Ventilasjon Brann- og røykventilasjon

Røykventilasjon i trapperom og heissjakter, mekanisk balansert ventilasjon

Ventilasjonssystem tilpasset brannsikkerhet

Trapper Innvendige trapper og heis

Trapperom med brannmotstand R30, heis i boligblokker

Vertikal kommunikasjon i boligene

Terrasse Balkonger og uteplasser

🧱 Granitt tørrmur, ombrukt belegningsstein, tredekke

Målsatte utkraginger, fri høyde over terreng, robuste materialer

Uteplasser og balkonger med naturmaterialer og god kvalitet

Gulv Innvendige gulv

Robuste materialer tilpasset klima og bruk

Gulv i bolig og fellesarealer

Rekkverk Balkongrekkverk og håndløpere

Sikre rekkverk iht. brann- og sikkerhetskrav

Sikkerhetsrekkverk på balkonger og trapper

VVS Vann- og avløpsledninger

🧱 Duktilt støpejern med PE-belegg, spillvannsledning STF 250mm

Nye hovedledninger og private stikkledninger, 4 vannkummer med slukkevannsuttak

Nytt vann- og avløpsnett tilknyttet offentlig nett

Dører Brann- og rømningsdører

Dører med brannmotstand EI2 30-Sa, EI2 60-CSa, EI2 90-Sa etter branncelleinndeling

Brann- og rømningsdører i boligblokker og fellesarealer

Elektro Belysning uteområder

🧱 Energieffektive lysarmaturer

Helhetlig belysningsplan for uteområder

Utendørs belysning for trygghet og estetikk

Bygningskomponenter Massivtre konstruksjoner

🧱 Krysslaminert tre (CLT), laminert finértre (LVL)

Utstrakt bruk i boligblokker for karbonbinding og redusert klimagassutslipp

Bærekonstruksjoner og bygningsmaterialer i massivtre for boligblokkene

Mur Tørrmurer og natursteinmurer

🧱 Granitt, liten maskinstein

Antall: 60

Tørrmurer i uteområder, målsatt med høyder og materialbruk

Murer for terrengtilpasning og estetikk i uteområder

Fasade Utvendig kledning og overflater

🧱 Robuste materialer med lang levetid, ubrennbare materialer i hulrom

Materialvalg for brannsikkerhet og klimaendringer

Fasadeelementer og overflater tilpasset klima og brannkrav

Garasjeport Port til felles garasjeanlegg

Portløsning for underjordisk parkeringskjeller

Adkomst til felles parkeringsanlegg

Elektro Solceller

Lokal energiproduksjon med solceller på tak

Solcelleanlegg for fornybar energi

VVS Overvannshåndtering

Åpne blågrønne strukturer, overvannsbasseng ca. 12 m³, sedimenteringsløsninger

System for håndtering av overvann på tomten og tilkobling til Lauvåstjørna

Grunnarbeid Riving og grunnarbeid

Riving av eksisterende bygg, miljøsanering, ombrukskartlegging, forurenset grunn håndteres

Forberedelse av tomt for nybygg med miljøhensyn

Vinduer Rømningsvinduer og fasadevinduer

🧱 3-lags energiglass, topp- eller sidehengslet

Rømningsvinduer med min. 0,6 m høyde og 0,5 m bredde, sum minst 1,5 m, åpnes uten verktøy

Vinduer i boligene for dagslys og rømningsvei

Hendelser

10.03.2026 Tilleggsopplysninger- 22/874/0/0 Barliveien 21, felt B/F/T, nybygg - næring og bolig (leilighetsbygg), samt riving
06.02.2026 Oversendelse av vedtak i byggesakene BYGG-2025/16008, BYGG-2025/16007, BYGG-2025/16011, BYGG-2025/16009 og BYGG-2025/16003,
05.02.2026 Fakturagrunnlag 2025
05.02.2026 Fakturagrunnlag 2025 felles for BYGG-2025/16003, BYGG-2025/16007, BYGG-2025/16008, BYGG-2025/16009, BYGG-2025/16011
05.02.2026 Vedtak i byggesakene - 22/874/0/0 Barliveien 21, felt B/F/T, nybygg - næring og bolig (leilighetsbygg), samt riving
05.02.2026 ubw ordre 20687738 (rammetillatelse i sak 2025/16008,16003,16007,16009 og 16011)
29.01.2026 Rammetillatelse, 22/874, Barliveien 21, felt B/F/T
23.01.2026 Viser til samtale tema murer og supplering
23.01.2026 Ber om kontakt- 22/874/0/0 Barliveien 21, felt B/F/T, nybygg - næring og bolig (leilighetsbygg), samt riving
05.01.2026 Supplering sak
17.12.2025 Bekreftelse utsatt frist
17.12.2025 Anmodning om ytterligere utsatt frist - 22/874/0/0 Barliveien 21, felt B/F/T, nybygg - næring og bolig (leilighetsbygg), samt riving
08.12.2025 Bekreftelse frist utsatt innsending tilleggsopplysninger
08.12.2025 Behov for fristutsettelse- 22/874/0/0 Barliveien 21, felt B/F/T, nybygg - næring og bolig (leilighetsbygg), samt riving
24.11.2025 Ny frist- 22/874/0/0 Barliveien 21, felt B/F/T, nybygg - næring og bolig (leilighetsbygg), samt riving
24.11.2025 Anmodning om ytterligere utsatt frist - 22/874/0/0 Barliveien 21, felt B/F/T, nybygg - næring og bolig (leilighetsbygg), samt riving
28.10.2025 Fristutsettelse- 22/874/0/0 Barliveien 21, felt B/F/T, nybygg - næring og bolig (leilighetsbygg), samt riving
28.10.2025 Ber om utsatt frist - 22/874/0/0 Barliveien 21, felt B/F/T, nybygg - næring og bolig (leilighetsbygg), samt riving
08.10.2025 Behov for tilleggsopplysninger
22.09.2025 Bekreftelse på mottatt søknad - 22/874/0/0 Barliveien 21, felt B/F/T, nybygg - næring og bolig (leilighetsbygg), samt riving
18.09.2025 Søknad - 22/874/0/0 Barliveien 21, felt B/F/T, nybygg - næring og bolig (leilighetsbygg), samt riving