NewConstruction Igangsettingstillatelse Leilighetsbygg

Ny omsorgsboliger og administrasjonsbygg i Brønnerødlia, Fredrikstad

📍 Brønnerødlia 1 , 1615 FREDRIKSTAD

Nøkkelinfo

Sakstype
Nybygg
Bygningstype
Leilighetsbygg
Bruksareal
719 m²
Boenheter
7
Kommune
Fredrikstad
Fylke
Østfold
Gnr / Bnr
211 / 56
Saksnummer
2024/17648
Fase
Igangsettingstillatelse

Om byggesaken

Prosjektet omfatter oppføring av fire nye bygninger på Brønnerødlia i Fredrikstad kommune, som inkluderer syv omsorgsleiligheter og et administrasjonsbygg. Byggene er utformet som småhus med saltak og flate tak, og har en gesimshøyde på ca. 6,5 meter og mønehøyde på ca. 8,2 meter. Totalt areal for bygg A er 435 m², og omsorgsboligene har et samlet areal på 284 m². Byggene inneholder funksjoner som stue, kjøkken, bad, soverom, bod, kontorer, tekniske rom og terrasser. Utomhusanlegg inkluderer permeable flater, regnbed for overvannshåndtering, parkeringsplasser med permeabelt dekke, og landskapsutforming med bevaring av eksisterende vegetasjon. Prosjektet har gjennomgått rammesøknad, igangsettingstillatelser og endringstillatelser, og er i byggefasen med flere entreprenører og prosjekterende involvert.

Produkter og materialer

VVS Vannforsynings- og avløpsanlegg

Tilknytning til kommunalt vann- og avløpsnett, inkludert spillvannskummer og overvannskummer

Vannforsynings- og avløpsanlegg med tilkobling til kommunalt nett

Elektro Brannalarmanlegg og ledesystem

Installasjon av brannalarmanlegg og ledesystem

Tak Saltak og flatt tak

🧱 Takpanner, platekledning, takrenner

Takmateriale endret fra skjermtegl til takpanner eller tilsvarende; mellombygninger med platekledning med lav glans; takutstikk med takrenner på hovedbygninger

Tak med saltak og flate tak med tilhørende takrenner og takutstikk

Dører Ytterdører og balkongdører

🧱 Tre

Antall: 30

Ytterdører og dører til terrasser i tre

Vinduer Fasadevindu

🧱 Tre

Antall: 14

Fasadevinduer i tre for omsorgsboliger og administrasjonsbygg

Gulv Innvendige gulvbelegg

Innvendige gulvbelegg i omsorgsleiligheter og administrasjonsbygg

Betong Plasstøpte betongkonstruksjoner

🧱 Betong

Fundamenter og konstruksjoner i plasstøpt betong

Plasstøpte betongkonstruksjoner for fundament og bærende elementer

Ventilasjon Ventilasjons- og klimainstallasjoner

Ventilasjons- og klimainstallasjoner for bygningene

VVS Sanitærinstallasjoner

Sanitærinstallasjoner for omsorgsboliger og administrasjonsbygg

Grunnarbeid Veg- og grunnarbeider

Felling av trær, utgravning, sprengning, grunnarbeider, utvendige vann- og avløpsledninger

Grunnarbeider inkludert felling av trær, utgravning og sprengning

Fasade Trekledning og platekledning

🧱 Tre og platekledning med lav glans

Fasademateriale endret fra skjermtegl til trekledning på hovedbygninger; metall med høy glans til platekledning med lav glans på mellombygninger

Fasader med trekledning og platekledning tilpasset brukernes behov og klima

Tømrer Montering av trekonstruksjoner

🧱 Tre

Tømrerarbeid og montering av trekonstruksjoner i bygningene

Maling Innvendig og utvendig maling

Maling av fasader og innvendige overflater

Landskap Landskapsutforming og utearealer

Beplantning, bevaring av trær, permeable flater, regnbed, parkeringsplasser med permeabelt dekke, støttemurer og trapper

Landskapsutforming med fokus på overvannshåndtering og universell utforming

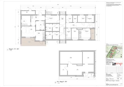
Plantegning

Bygg A 435.3 m²

Etasje 1 334.5 m²

Rom Areal Vinduer Dører
Stue 101 16.8 m² 1 1
Kjøkken 102 10.4 m² 1 1
Bad 103 9.5 m² 0 1
Sov 104 10.5 m² 1 1
Bod 105 5.6 m² 0 1
Entré / Gang 106 10.7 m² 0 1
Kontor/vasktrom 107 12.1 m² 0 1
Gang/gård / entré 108 15.7 m² 0 1
Pauserom 109 5.1 m² 0 1
Lager/point 110 3.5 m² 0 1
Lederkontor 111 6.2 m² 0 1
Rapper/medisin 112 6.2 m² 0 1
Korridor 113 15.9 m² 0 1
HCWC 114 5.6 m² 0 1
Garderobe 115 5.9 m² 0 1
HCWC 116 5.6 m² 0 1
Garderobe 117 5.9 m² 0 1
Renholdsrom 118 6.6 m² 0 1
Møterom 119 8.7 m² 0 1
Kjøkkenpause 120 13.1 m² 0 1
Terrasse 121 18.2 m² 0 1
Terrasse 122 4.9 m² 0 1

Etasje 0 100.8 m²

Rom Areal Vinduer Dører
Teknisk U01 31.4 m² 0 1
Bod U02 15.9 m² 0 1
IKT U03 9.1 m² 0 1
Bod U04 27.4 m² 0 1

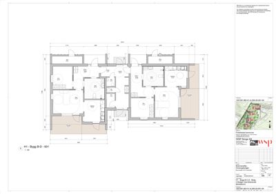
Omsorgsboliger 284.0 m²

Etasje 1 284.0 m²

Rom Areal Vinduer Dører
Leilighet Type A (BTA) BTA Leil type A 78.0 m² 3 2
Tjenesterom BTA BTA Tjeneste 28.0 m² 1 1
Leilighet Type A (BRA) BRA Leil type A 68.0 m² 2 2
Tjenesterom BRA BRA Tjeneste 25.0 m² 1 1
Bod Bod 6.0 m² 1 1
Soverom Sov 10.0 m² 1 1
Stue Stue 17.0 m² 2 1
Kjøkken Kjøkken 10.0 m² 1 1
Terrasse Terasse 18.0 m² 0 1
Bod Bod 4.0 m² 1 1
Soverom Sov 11.0 m² 1 1
Stue Stue 17.0 m² 2 1
Kjøkken Kjøkken 10.0 m² 1 1
Terrasse Terasse 18.0 m² 0 1
Bad Bad 10.0 m² 1 1
Entré/Gang Entre / Gang 9.0 m² 0 2
Sluse Sluse 4.0 m² 0 1
WC WC 2.0 m² 0 1
Kontor Kontor 13.0 m² 1 1
IKT rom IKT 3.0 m² 0 1
Entré/Gang Entre / Gang 11.0 m² 0 2
Bad Bad 9.0 m² 1 1
Soverom Bed 9.5 m² 1 1
Terrasse Terrasse 16.2 m² 0 0
Kontor Kontor/vakthold 12.1 m² 1 1
Gang Gang 15.7 m² 0 2
Pauserom Pauserom 5.1 m² 1 1
Lagerrom Lagerplass 3.5 m² 0 1
Kontor Lederkontor 6.2 m² 1 1
Rom Rapport/medisin 5.2 m² 0 1
Vaskerom HCWC 5.6 m² 0 1
Garderobe Garderobe 5.9 m² 0 1
Gang Korridor 15.9 m² 0 2
Rom Renholderom 6.6 m² 0 1
Møterom Møterom 8.7 m² 1 1
Rom Kjøkken/pause 13.1 m² 1 1

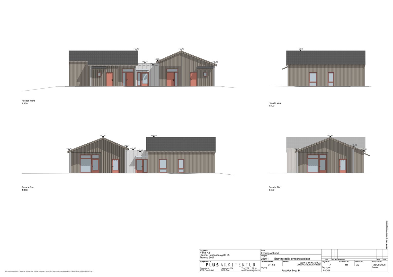
Fasader

Brønnerødla omsorgsboliger

Nord
Materiale
Tre
Taktype
Flatt tak
Høyde
6.5 m
Mønehøyde
8.2 m
Vinduer
3
Dører
4
Synlige etasjer
1
Vest
Materiale
Tre
Taktype
Flatt tak
Høyde
6.5 m
Mønehøyde
8.2 m
Vinduer
2
Dører
0
Synlige etasjer
1
Sør
Materiale
Tre
Taktype
Saltak
Høyde
6.5 m
Mønehøyde
8.2 m
Vinduer
4
Dører
3
Synlige etasjer
1
Øst
Materiale
Tre
Taktype
Saltak
Høyde
6.5 m
Mønehøyde
8.2 m
Vinduer
2
Dører
1
Synlige etasjer
1

Hendelser

13.04.2026 Søknad om endring av gitt tillatelse - Brønnerødlia - Eiendom 211/56 - Nybygg - annet over 70 m²
09.10.2025 Igangsettingstillatelse - Oppføre 4 bygninger som inneholder 7 omsorgsleiligheter - Brønnerødlia - Eiendom 211/56
08.10.2025 Gjennomføringsplan - eiendom 211/56 - Brønnerødlia 7
08.10.2025 Endringstillatelse - Oppføre 4 bygninger som inneholder 7 omsorgsleiligheter - Brønnerødlia - Eiendom 211/56
06.10.2025 Søknad om igangsettingstillatelse - Brønnerødlia - Eiendom 211/56
23.09.2025 Søknad om endring av gitt tillatelse - Brønnerødlia - Eiendom 211/56 - Nybygg - annet over 70 m²
20.08.2025 Igangsettingstillatelse - nr. 1 - Oppføre 4 bygninger som inneholder 7 omsorgsleiligheter - Brønnerødlia - Eiendom 211/56
18.08.2025 Søknad om igangsettingstillatelse - Brønnerødlia - Eiendom 211/56
13.02.2025 Vurdering av bestemmelser i planen - Dispensasjonssøknad - Brønnerødlia - 211/56
30.01.2025 Vedrørende søknad om dispensasjon - detaljregulering for Brønnerødlia
14.01.2025 Vedrørende søknad om dispensasjon - detaljregulering for Brønnerødlia
06.01.2025 Orientering vedrørende søknad om dispensasjon - detaljregulering for Brønnerødlia
03.01.2025 Vedrørende søknad om dispensasjon - Detaljregulering for Brønnerødlia
29.10.2024 Vi innvilger søknaden om samtykke etter automatisk saksbehandling - Eiendom 211/56 - Brønnerødlia
17.10.2024 Dispensasjonssøknad - Brønnerødlia - Eiendom 211/56 - Oppføre 4 bygninger som inneholder 7 omsorgsleiligheter
10.10.2024 Rammetillatelse - Oppføring av syv nye omsorgsboliger og et administrasjonsbygg - Brønnerødlia - Eiendom 211/56
25.09.2024 Brønnerødlia - Eiendom 211/56 - uttalelse VA
23.08.2024 Anmodning om uttalelse - Brønnerødlia - 211/56
23.08.2024 Anmodning om uttalelse - Brønnerødlia 211/56
23.08.2024 Anmodning om uttalelse- Brønnerødlia 211/56 - Landskapsplan
03.07.2024 Rammesøknad - Brønnerødlia - Eiendom 211/56 - Nybygg - annet over 70 m² - Oppføre 4 bygninger som inneholder 7 leiligheter
03.07.2024 Bekreftelse på mottatt søknad - Nybygg - boligformål - Nybygg - annet over 70 m² - Brønnerødlia - Eiendom 211/56