NewConstruction UnderBehandling Leilighetsbygg

Gjenoppføring av leilighetsbygg i Bruveien 1, Bodø

📍 Bruveien 1 , 8009 BODØ

Nøkkelinfo

Sakstype
Nybygg
Bygningstype
Leilighetsbygg
Bruksareal
1,200 m²
Boenheter
14
Kommune
Bodø
Fylke
Nordland - Nordlánnda
Gnr / Bnr
2024 / 7060
Saksnummer
2026/2001
Fase
Under behandling

Om byggesaken

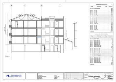
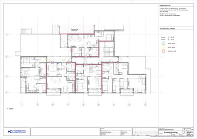
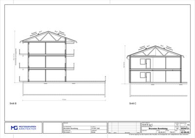
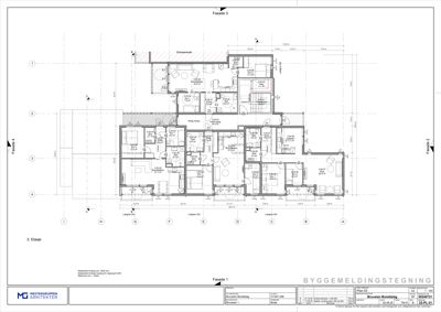
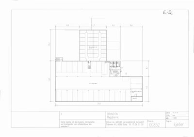
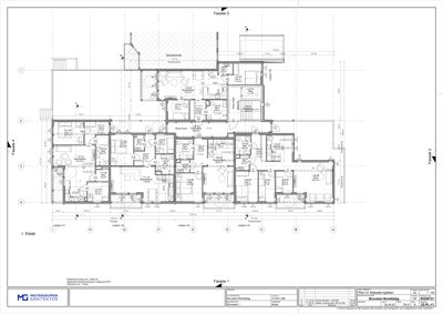
Prosjektet omfatter gjenoppføring og rehabilitering av leilighetsbygget Bruveien 1 i Bodø etter brannskader. Totalt 14 leiligheter berøres, hvorav 5 leiligheter rives og bygges opp på nytt som hovedombygging, mens 9 leiligheter repareres og tilbakestilles. Bygget har 3 etasjer med parkeringskjeller under, og oppføres med plassbygde bindingsverkskonstruksjoner i tre og saltak, med unntak av et mellombygg med flatt kompakt tak. Bygget skal tilfredsstille TEK17 med unntak av enkelte dispensasjoner, og inkluderer installasjon av heis, fullsprinkling, brannalarmanlegg, lyd- og brannskiller, samt nye våtrom. Arealet er ca. 1200 m² oppvarmet BRA. Det planlegges også utomhusarbeider som gjenoppbygging av utearealer, trapp, carport og asfaltering. Prosjektet inkluderer omfattende miljøkartlegging og håndtering av helse- og miljøfarlige stoffer i rivematerialer.

Produkter og materialer

Varmepumpe Oppvarmingssystem

Elektrisk oppvarming uten fossilt brensel, energifleksibelt system ikke installert (dispensasjon søkt)

Oppvarmingssystem basert på elektrisitet

Dører Brann- og lydklassifiserte dører

Antall: 6

Dører med brannmotstand EI2 30-CSa for boenhet-korridor, EI2 60-CSa for garasje-sluse, lydisolasjon Rw 38-43 dB

Brann- og lydklassifiserte dører i rømningsveier, boenheter og tekniske rom

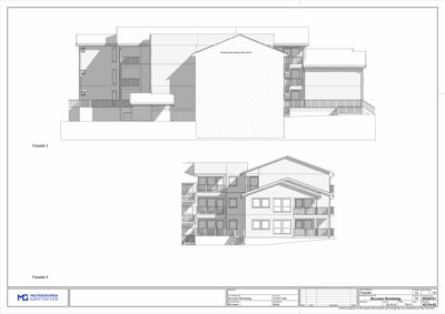
Fasade Trepanelkledning

🧱 Tre

Kledning i tre med brannklasse K210 A2-s1,d0 på rømningsvei og svalgang, øvrige deler K210 B-s1,d0 eller D-s2,d0

Trepanelkledning med brannmotstand tilpasset brannkonsept

Elektro Brannalarmanlegg

Heldekkende brannalarmanlegg kategori 2 med optiske og akustiske alarmorganer, alarmoverføring til nødmeldesentral

Automatisk brannalarmanlegg for varsling og sikkerhet

Tømrer Bindingsverk og bjelkelag

🧱 Tre

Plassbygde bindingsverkskonstruksjoner i tre med isolasjon, lyd- og brannskiller

Tømrerarbeid for bærende konstruksjoner og skillevegger

Isolasjon Mineralull og ubrennbar isolasjon

🧱 Mineralull

Isolasjon med klasse A2-s1,d0, brennbar isolasjon kun i loftsrom med branncellebegrensende konstruksjon under

Isolasjon med brannmotstand iht. TEK17

VVS Sprinkleranlegg

Fullsprinkling i Bruveien 1 inkl. loft og boder, iht. NS-EN 16925 og NS-EN 12845 for garasje

Automatisk sprinkleranlegg for brannsikring

Vinduer Isolerglassvinduer

🧱 3-lags energispareglass

Antall: 14

Vinduer med U-verdi ≤ 0,8 W/m²K, lydisolasjon R'w ≥ 37 dB for soverom mot svalgang, brannmotstand EI30 i brannvegger

Nye vinduer med energispareglass, lyd- og brannmotstand tilpasset TEK17 og brannkonsept

Rekkverk Rekkverk i trapper og balkonger

Rekkverk min. 1 meter høyde, i ubrennbart eller begrenset brennbart materiale

Sikkerhetsrekkverk i trapper og balkonger

Balkong Balkong med tungt flytende gulv

Antall: 6

Balkonger festet til yttervegg, understøttet med drager og søyler, med tungt flytende gulv for lydisolasjon

Balkonger med lydisolasjonstiltak

Annet Heis

Antall: 1

Heis installert i Bruveien 1 med brannsprinkling og brannalarmanlegg

Heis for tilgjengelighet og universell utforming

Grunnarbeid Parkeringskjeller og fundament

🧱 Betong

Eksisterende hulldekke og betongfundament for parkeringskjeller, ikke berørt av brann

Grunnarbeid og fundament for parkeringskjeller

Ventilasjon Ventilasjonsanlegg med røykkontroll

Ventilasjonsanlegg med brannisolerte kanaler, brannspjeld, røykdetektorer og røykventilasjon i trapperom

Ventilasjonsanlegg prosjektert for brannsikkerhet

Maling Innvendige og utvendige overflater

Overflater med brannklasse D-s2,d0 eller bedre, maling uten PCB og miljøfarlige stoffer

Maling og overflatebehandling

Trapper Innvendig betongtrapp med elastisk opplagring

🧱 Betong

Antall: 2

Trapper i betong med elastisk opplagring for trinnlyddemping, rekkverk min. 1 meter

Innvendige trapper i betong med lydisolasjonstiltak

Garasjeport Garasjeport i carport

Antall: 1

Garasjeport i carport, brannmotstand EI 60 CSa

Garasjeport med brannmotstand

Betong Betongvegger og dekker

🧱 Betong

Betongvegger i trapperom og parkeringskjeller med brannmotstand EI 60-90

Betongkonstruksjoner med brannmotstand

Gulv Trinnlyddempende overgulv og våtromsmembran

Trinnlyddempende overgulv i boenheter, elastisk dempesjikt under gulv i våtrom, keramiske fliser eller vanntett belegg

Gulvkonstruksjoner med lydisolasjon og våtromsstandard

Tak Saltak og flatt kompakt tak

🧱 Tre, W-takstoler, isolasjon 300 mm

Saltak med trekonstruksjon, flatt kompakt tak i mellombygg, isolasjon med U-verdi ≤ 0,12 W/m²K

Tak med isolasjon og brannmotstand iht. TEK17

Fasader

Enebolig

Ukjent
Taktype
Saltak
Vinduer
12
Dører
1
Synlige etasjer
3

Borettslag

Ukjent
Materiale
Tre
Taktype
Saltak
Vinduer
10
Dører
2
Balkonger
4
Synlige etasjer
3

Bruveien Borettslag

Ukjent
Materiale
Tre
Taktype
Flatt tak
Vinduer
14
Dører
6
Balkonger
6
Synlige etasjer
3

Hovedbygg

Ukjent
Taktype
Saltak
Vinduer
18
Dører
6
Balkonger
6
Synlige etasjer
3

Leilighetshus

Vest
Materiale
Tre
Taktype
Saltak
Vinduer
16
Dører
2
Balkonger
4
Synlige etasjer
3
Nord
Materiale
Tre
Taktype
Saltak
Vinduer
18
Dører
2
Balkonger
6
Synlige etasjer
3

Carport

Ukjent
Taktype
Saltak
Høyde
2.2 m
Vinduer
0
Dører
1
Synlige etasjer
1

Apartment Building

Ukjent
Materiale
Tre
Taktype
Saltak
Vinduer
18
Dører
1
Balkonger
3
Synlige etasjer
3

FASADE 4

Ukjent
Taktype
Saltak
Vinduer
26
Dører
0
Balkonger
13
Synlige etasjer
3

FASADE 1

Ukjent
Taktype
Saltak
Vinduer
20
Dører
0
Balkonger
10
Synlige etasjer
3

Hendelser

14.04.2026 Supplering av søknad - Bruveien 1
11.03.2026 Redegjørelse dagslys
06.03.2026 Foreløpig svar - behov for tilleggsdokumentasjon
28.01.2026 Supplering av søknad
13.01.2026 Supplering av søknad
12.01.2026 Supplering av søknad
12.01.2026 Rammesøknad - Bruveien 1 og 3
12.01.2026 Foreløpig svar
08.01.2026 Supplering av søknad