Rendering
Bildet viser en serie 3D-visualiseringer (renderinger) av en bygning sett fra vest, med fokus på solstudier ved ulike tidspunkter.
1 / 184
NewConstruction
Unknown
Leilighetsbygg
Oppføring av boligblokker med garasje
📍 Folabruveien 179 , 1384 ASKER
Nøkkelinfo
- Sakstype
- Nybygg
- Bygningstype
- Leilighetsbygg
- Kommune
- Asker
- Fylke
- Akershus
- Gnr / Bnr
- 2 / 34
- Saksnummer
- 25/2815
- Fase
- Unknown
Om byggesaken
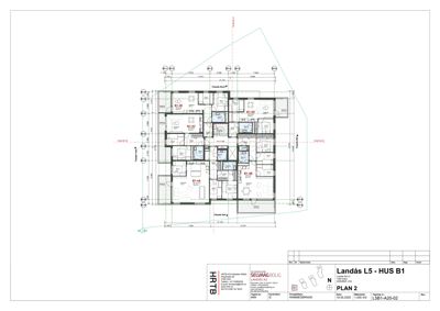
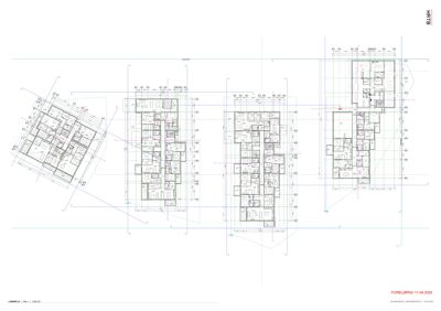
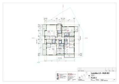
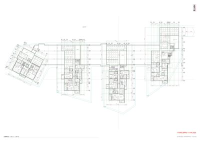
Saken gjelder søknad om rammetillatelse og igangsettingstillatelse for oppføring av flere boligblokker (B1-B4) med garasje på tomt 2/34 i Landås felt L5.
Hendelser
10.04.2026
2/34 Folabruveien - Landås felt L5 - Boligblokk B2 - Søknad om igangsettingstillatelse
20.02.2026
2/34 Folabruveien - Søknad om igangsettingstillatelse
07.01.2026
2/34 Folabruveien - Landås Felt L5 - Endring av ansvarlig søker - Boligblokk B2
01.09.2025
2/34 Folabruveien - Landås felt L5 - Rammetillatelse for oppføring av boligblokk B2
26.08.2025
2/34 - Landås L5 - Søknad om rammetillatelse for oppføring av boligblokker med garasje