NewConstruction Rammetillatelse Leilighetsbygg

Ny enebolig med leiligheter på Førresfjorden brygge 26

📍 Førresfjorden brygge 26 , 5563 FØRRESFJORDEN

Nøkkelinfo

Sakstype
Nybygg
Bygningstype
Leilighetsbygg
Bruksareal
717 m²
Boenheter
2
Kommune
Tysvær
Fylke
Rogaland
Gnr / Bnr
79 / 766
Saksnummer
2025/3479
Fase
Rammetillatelse

Om byggesaken

Ny enebolig med totalt 716,7 m² BRA fordelt på fire etasjer inkludert underetasje, med to leiligheter integrert. Bygget har en integrert garasje på ca. 48 m², verksted/lager, tekniske rom og flere boder i underetasjen. Hovedetasjen inneholder stue, kjøkken, bad og flere soverom, mens øvre etasjer har flere soverom, bad og verandaer. Bygget har tre trapper, fasader i tre med saltak og flatt tak, og vinduer med 3-lags glass og aluminiumsbekledning utvendig. Grunnmur er 30 cm tykk, med betongtrapp på nordsiden. Taket er tekket med zink, og takrenner/nedløp er av aluminium. Innvendig er det gipsplater på vegger og himlinger, med hulldekker og betonggulv mellom etasjene. Det er installert vannbåren gulvvarme og luftbasert varmepumpe. Garasjen har vegger i reisverk, og det er etablert levegger på verandaer. Bad i 3. etasje er ikke ferdigstilt, men benyttes som toalettrom. Bygget er oppført i henhold til tidligere tillatelser og TEK97, med midlertidig brukstillatelse og nå ferdigattest.

Produkter og materialer

Fasade Trepanel og steniplater

🧱 Trepanel, Royalimpregnert bord, steniplater pusset på langvegg

Fasader i tre med pusset steniplater på nordvegg, fliser i inngangsparti

Yttervegger og fasadeelementer

Dører Ytterdører og innerdører

🧱 Tre og glass

Antall: 30

Inkluderer 2-fløyet dør i garasje, dører til boder, leiligheter og tekniske rom

Dører til alle rom og innganger, inkludert garasje og tekniske rom

Fasade Levegg på veranda

🧱 Tre

Antall: 1

Levegg på veranda for å skille uteområder til leiligheter

Skillevegg på veranda for privatliv

Tak Saltak og flatt tak

🧱 Zink taktekking, takrenner og nedløp i aluminium

Saltak på fasader i tre, flatt tak på nordfasade

Taktekking og takrenner for hele bygget

Betong Hulldekker og betonggulv

🧱 Betong

Hulldekker mellom etasjer med 3 cm betong over gulv

Bærekonstruksjon og gulv i etasjeskiller

Bad Baderomsinnredning og sanitærutstyr

Antall: 3

Bad i 1., 2. og 3. etasje, bad i 3. etasje ikke ferdigstilt, men toalettrom i bruk

Sanitærrom med dusj, badekar og innredning

Elektro El-skap og elektriske installasjoner

El-skap i 2. etasje, elektriske varmekabler og panelovner nevnt

Elektriske installasjoner og varmeutstyr

Garasjeport Garasjeport til integrert garasje

Antall: 1

Garasje på 48 m² med 2 bilplasser, 2-fløyet dør i midten

Port og dør til garasjeintegrasjon

Vinduer Fasadevindu med aluminiumsramme

🧱 Tre med aluminiumsbekledning utvendig

Antall: 24

Nordan vinduer med 3-lags energiglass

Vinduer i hele bygget, inkludert soverom, stue, bad og boder

Terrasse Betongplatting med overtak

🧱 Betong

Antall: 1

Betongplatting med overtak på baksiden ved vaskerom

Utendørs platting med takoverbygg

Isolasjon Veggisolasjon

🧱 Glava isolasjon 25 cm og 35 cm i skråvegg

25 cm isolasjon i yttervegger, 35 cm i lang skråvegg med gips på begge sider

Isolasjon i yttervegger og innervegger

Gulv Fliser og parkett

Fliser i inngangsparti, øvrige gulv ikke spesifisert

Gulvbelegg i inngangsparti og øvrige rom

VVS Vannbåren gulvvarme og varmepumpe

Vannbåren gulvvarme, luftbasert varmepumpe installert

Varme- og energisystemer i bygget

Trapper Innvendig trapp i betong

🧱 Betong

Antall: 1

Betongtrapp på nordsiden, trapp mellom etasjer

Innvendig trapp for etasjeadkomst

Grunnarbeid Grunnmur og fundament

🧱 Betong, 30 cm tykk grunnmur

Grunnmur 30 cm tykk, betongtrapp på nordsiden

Fundamentering og grunnmur for bygget

Plantegning

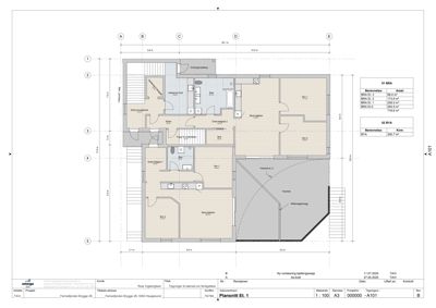
Enebolig 716.7 m²

Etasje 1 209.5 m²

Rom Areal Vinduer Dører
Entré hovedenhet 101 11.6 m² 0 1
Garderobe/heisgjakt 102 4.1 m² 0 1
Vaskerom/bod 103 15.8 m² 0 1
Bad 104 12.1 m² 0 1
Stue/kjøkken 105 31.8 m² 0 1
Sov 1 106 17.1 m² 0 1
Sov 2 107 15.6 m² 0 1
Entré leilighet 2 108 5.3 m² 0 1
Bod 109 3.8 m² 0 1

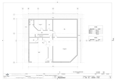
Etasje 0 264.9 m²

Rom Areal Vinduer Dører
Gang 01 22.1 m² 0 2
Teknisk rom 02 15.4 m² 0 1
Bod 03 8.7 m² 0 1
Disp. 04 86.8 m² 0 1
Bod under trapp 05 4.1 m² 0 1
Bod 06 5.8 m² 0 1
Gang 07 19.2 m² 0 2
Verksted/lager 08 74.0 m² 0 1
Garasje 09 48.2 m² 0 1

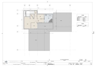
Etasje 3 68.4 m²

Rom Areal Vinduer Dører
Sov 4 301 17.1 m² 1 1
Sov 5 302 6.7 m² 1 1
Gang 303 9.0 m² 0 2
Bod 304 5.9 m² 1 1
Gang 305 11.0 m² 0 1
Bad 306 12.7 m² 1 1
Veranda 307 0.0 m² 0 0

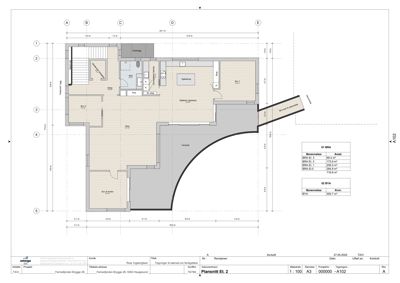
Etasje 2 173.9 m²

Rom Areal Vinduer Dører
Gang 201 11.6 m² 0 1
Sov 1 202 16.3 m² 1 1
Sov 2 203 10.2 m² 0 1
Sov 3/ kontor 204 15.4 m² 1 1
Kjøkken/ spisestue 205 37.9 m² 1 1
Bad 206 6.7 m² 0 1
Veranda 207 0.0 m² 0 0

Fasader

Enebolig

Vest
Materiale
Tre
Taktype
Saltak
Vinduer
10
Dører
1
Balkonger
1
Synlige etasjer
3
Øst
Materiale
Tre
Taktype
Saltak
Vinduer
6
Dører
1
Synlige etasjer
2
Nord
Materiale
Tre
Taktype
Flatt tak
Vinduer
5
Dører
1
Synlige etasjer
2

Hus_Førrestfjorden

Vest
Materiale
Mur
Taktype
Saltak
Høyde
6.5 m
Mønehøyde
8.2 m
Vinduer
10
Dører
1
Balkonger
1
Synlige etasjer
2

Hendelser

15.04.2026 Gbnr 79/766 - Svar på forespørsel om tilsyn - Enebolig med leiligheter - Førresfjorden brygge 26
08.04.2026 Gbnr 79/766 - Etterspør svar - begjæring om formelt tilsyn - enebolig med leiligheter - Førresfjorden brygge 26
25.02.2026 Gbnr 79/766 - Ber om status vedrørende begjæring om tilsyn - enebolig med leiligheter - Førresfjorden brygge 26
26.01.2026 Gbnr 79/766 - Begjæring om formelt tilsyn - enebolig med leiligheter - Førresfjorden brygge 26
19.11.2025 Gbnr 79/766 - Svar til innsendt dokumentasjon etter varsel om tilsyn - Enebolig med leiligheter - Førresfjorden brygge 26
04.11.2025 Gbnr 79/766 - Tilleggsopplysninger - enebolig med leiligheter - Førresfjorden brygge 26
29.10.2025 Gbnr 79/766 - Svar på varsel om tilsyn - Enebolig med leiligheter - Førresfjorden brygge 26
27.10.2025 Gbnr 79/766 - Varsel om tilsyn - Enebolig med leiligheter - Førresfjorden brygge 26
08.10.2025 Gbnr 79/766 - Vedtak - Ferdigattest - Enebolig med leiligheter - Førresfjorden brygge 26
29.09.2025 Gbnr 79/766 - Tilleggsopplysninger til søknad om ferdigattest - enebolig med leiligheter - Førresfjorden brygge 26
18.08.2025 Gbnr 79/766 - Tilbakemelding på tilleggsopplysninger til søknad om ferdigattest - enebolig med leiligheter - Førresfjorden brygge 26
06.08.2025 Gbnr 79/766 - Tilleggsopplysninger til søknad om ferdigattest - enebolig med leiligheter - Førresfjorden brygge 26
04.08.2025 Gbnr 79/766 - Mangler ved søknad - Enebolig med leiligheter - Førresfjorden brygge 26
15.07.2025 Gbnr 79/766 - Tilleggsopplysninger til søknad om ferdigattest - enebolig med leiligheter - Førresfjorden brygge 26
11.06.2025 Gbnr 79/766 - Mangler ved søknad - Enebolig med leiligheter - Førresfjorden brygge 26
28.05.2025 Gbnr 79/766 - Søknad om ferdigattest - enebolig med leiligheter - Førresfjorden brygge 26