NewConstruction Soeknad Leilighetsbygg

Oppføring av 24 boenheter i Grua Nord, Hadelandsvegen

📍 fv.2300 Hadelandsvegen

Nøkkelinfo

Sakstype
Nybygg
Bygningstype
Leilighetsbygg
Bruksareal
1,560 m²
Boenheter
24
Kommune
Lunner
Fylke
Akershus
Gnr / Bnr
67 / 719
Saksnummer
2026/255
Fase
Søknad

Om byggesaken

Prosjektet omfatter oppføring av 24 boenheter i form av konsentrert småhusbebyggelse fordelt på tre byggefelt med rekkehus/kjedehus, plassert i skrånende terreng i Grua Nord, Lunner kommune. Byggene har tradisjonelle saltak med båndtekkede felt og fasader i treverk, med aluminiumsvinduer fra Nordan. Det etableres carporter/garasjer, parkeringsplasser, felles lekeplasser og uteoppholdsarealer, samt teknisk infrastruktur for vei, vann, avløp og overvann. Støyskjerming mot vei og jernbane inngår, med støyskjerm og gjerde mot jernbanen. Byggene har gesimshøyde på ca. 6,7 m og mønehøyde på 8 m, og hver boenhet har ca. 65 m² BRA med 1 trapp, 2-3 soverom, bad, kjøkken/stue og bod. Prosjektet inkluderer også terrengbearbeiding, støttemurer og bevaring av vegetasjon.

Produkter og materialer

Garasjeport Carporter og garasjer

Carporter integrert i støyskjerm, samlet parkeringsareal 529 m²

Parkering for beboere og gjester, inkludert handicap-parkering

Elektro Ventilasjon og klimainstallasjoner

Antall: 24

Ventilasjon og klimainstallasjoner med underleverandør med sentral godkjenning

Ventilasjonssystem for alle boenheter

Vinduer Aluminiumsvinduer

🧱 Aluminium

Nordan vinduer med forventet levetid over 70 år

Moderne, holdbare vinduer med god isolasjonsevne

Grunnarbeid Veg og kjøreveier

Opparbeidelse av interne kjøreveger og adkomstveier

Tilkomst for beboere og renovasjonskjøretøy

Terrasse Uteoppholdsarealer og lekeplasser

Felles uteoppholdsareal ca. 1020 m², nærlekeplass og lekearealer i henhold til reguleringsplan

Uteområder for rekreasjon og lek for beboere

Grunnarbeid Terrengbearbeiding og støttemurer

Planering, terrassering, støttemurer ved boligrekker

Tilpasning av terreng for bygging og utearealer

Rekkverk Gjerde mot jernbane

🧱 Flettverksgjerde

1,8 meter høyt flettverksgjerde langs tomt mot jernbanespor, plassert 1 meter innenfor støyskjerm

Sikkerhetsgjerde mot jernbanen i henhold til Bane NORs krav

VVS Innvendig sanitærinstallasjoner

Antall: 24

Sanitærinstallasjoner for 24 boenheter, utført av Entreprenør Nygaard AS og underleverandør med sentral godkjenning

Fullt sanitæranlegg for alle boenheter

Tak Saltak med båndtekkede felt

🧱 Båndtekket tak

Tradisjonelt saltak med båndtekket felt for redusert gjenskinn

Tak med lang levetid og stedstilpasset utforming

Fasade Trepanel kledning

🧱 Kjerneved furu med mørkpigmentert linoljeblanding

Vertikale paneler, bæredyktig materialpalett

Fasadebekledning i tre som harmonerer med naturomgivelser og gir varig uttrykk

Fasade Støyskjerm

Støyskjerm mot vei og jernbane i henhold til T-1442 og TEK17

Støyskjerming for å redusere støybelastning på boenheter

Tømrer Montering av trekonstruksjoner og tømrerarbeider

🧱 Tre

Montering av trekonstruksjoner for boligene

Tømrerarbeid for bygging av boliger

Ventilasjon Ventilasjonssystem

Installasjon av ventilasjon og klimaanlegg

Sikrer godt inneklima i boenhetene

Grunnarbeid Vann- og avløpsanlegg

Vannforsyning, avløp og overvannshåndtering med fordrøyning og infiltrasjon

Teknisk infrastruktur for vann og avløp

Betong Fundamentering og murarbeid

Betongarbeid for fundamenter, støttemurer og garasjeanlegg

Betongkonstruksjoner for bygg og infrastruktur

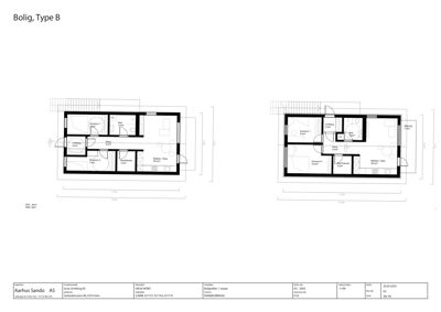
Plantegning

Bolig 65.0 m²

Etasje 1 65.0 m²

Rom Areal Vinduer Dører
Soverom 1 101 7.5 m² 0 1
Vindfang 102 3.2 m² 1 1
Soverom 2 103 7.9 m² 0 1
Gang 104 5.2 m² 0 0
Bad 105 5.0 m² 0 1
Kjøkken / Stue 106 20.5 m² 2 1
Bod/teknisk 107 3.3 m² 0 1

Fasader

Grua

Nord
Materiale
Tre
Taktype
Flatt tak
Høyde
6.7 m
Mønehøyde
8.0 m
Vinduer
2
Dører
1
Balkonger
1
Synlige etasjer
2
Sør
Materiale
Tre
Taktype
Saltak
Høyde
6.7 m
Mønehøyde
8.0 m
Vinduer
2
Dører
1
Balkonger
1
Synlige etasjer
2
Vest
Materiale
Tre
Taktype
Flatt tak
Høyde
6.7 m
Mønehøyde
8.0 m
Vinduer
0
Dører
0
Balkonger
1
Synlige etasjer
2
Øst
Materiale
Tre
Taktype
Saltak
Høyde
6.7 m
Mønehøyde
8.0 m
Vinduer
2
Dører
1
Synlige etasjer
2

Hendelser

15.04.2026 67/719 m.fl. - Grua Nord - Mangler ved teknisk plan for veg, vann- og avløpsnett
09.03.2026 67/727, 67/742 og 67/719 - Svar på nabovarsel - Oppføring av vei, parkeringsplass, innhegning og endring av boligenhet/oppdeling
27.02.2026 67/727 , 67/742 og 67/719 - Søknad om rammetillatelse - Oppføring av 24 boenheter - Grua Nord
26.01.2026 67/727 - Godkjenning av byggeplan - fv.2300 Hadelandsvegen - Grua Nord