NewConstruction Rammetillatelse Leilighetsbygg

Nytt leilighetsbygg og infrastruktur i Hadelandsvegen 1552, Grua Hageby

📍 Hadelandsvegen 1552 , 2742 GRUA

Nøkkelinfo

Sakstype
Nybygg
Bygningstype
Leilighetsbygg
Bruksareal
4,679 m²
Boenheter
82
Kommune
Lunner
Fylke
Akershus
Gnr / Bnr
67 / 762
Saksnummer
2025/51
Fase
Rammetillatelse

Om byggesaken

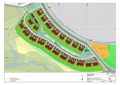
Prosjektet omfatter oppføring av totalt 82 boenheter fordelt på 5 lavblokker og 16 rekkehus i Grua Hageby, Lunner kommune. Bygningene er planlagt med 2 etasjer, saltak uten takutstikk, og varierer i størrelse fra under 55 m² til over 100 m² BRA. Hver boenhet får egen carport med bod, og det etableres felles parkeringsplasser, lekeplasser og uteoppholdsarealer. Utbyggingen skjer trinnvis, med oppstart i nord hvor det allerede finnes gang- og sykkelvei til lokalsentrum og skole. Prosjektet inkluderer også opparbeidelse av teknisk infrastruktur som VA-anlegg, veier, støttemurer og støyskjerm. Midlertidige løsninger for renovasjon og avkjørsel er planlagt inntil permanent infrastruktur er ferdigstilt. Det er gitt dispensasjoner fra flere rekkefølgekrav i reguleringsplanen for å muliggjøre trinnvis utbygging, med vilkår om trafikkvurdering, teknisk plan for gang- og sykkelvei, og serviceavtale for midlertidig pumpestasjon.

Produkter og materialer

Solceller Solcelleanlegg

Ingen eksplisitt opplysning, men vanlig i nye boligprosjekter

Isolasjon Bygningsisolasjon

Radontiltak og isolasjon iht. TEK

Isolasjon og radonsikring i boligene

Terrasse Privat uteoppholdsareal

Antall: 82

Privat uteoppholdsareal > 15 m2 for rekkehus på sydvestsiden

Private uteplasser til boenhetene

Kjøkken Kjøkkeninnredning

Antall: 82

Kjøkkeninnredning i hver boenhet

Grunnarbeid Drenering og overvannshåndtering

Overvann føres til terreng og fordrøyes på egen eiendom, overvannsledninger Ø200 PVC

Overvannshåndtering i tråd med reguleringsplan og VA-norm

VVS VA-anlegg med pumpekummer og pumpestasjon

Midlertidige pumpekummer og pumpestasjon, tilknytning til offentlig vann- og avløpsnett

Vann- og avløpsinfrastruktur for boligområdet

Ventilasjon Mekanisk ventilasjon

Ventilasjonssystem i boligene (antatt iht. TEK)

Maling Utvendig overflatebehandling

Utvendig maling og overflatebehandling (antatt iht. standard for boligbygg)

VVS Serviceavtale for pumpestasjon

Antall: 1

Serviceavtale for drift av midlertidig pumpestasjon

Drift og vedlikehold av pumpestasjon

Bad Sanitærinstallasjoner

Antall: 82

Bad og sanitærinstallasjoner i hver boenhet

Betong Plate på mark

Antall: 21

Boligene prosjektert for plate på mark

Fundamentering av boligene

Gulv Innvendige gulv

Innvendige gulv i boligene (ikke detaljert spesifisert)

Terrasse Felles uteoppholdsareal

Antall: 5

Felles uteoppholdsareal for lavblokker med gode sol- og lysforhold

Felles utearealer for beboerne i lavblokker

Fasade Støyskjerm

Antall: 1

Regulert støyskjerm som skal bygges innen 50% av boligene er tatt i bruk

Støyskjerming mot trafikkstøy

Fasade Ytterdører

Antall: 0

Ytterdører i boligene (ikke detaljert spesifisert)

Fasade Vinduer

Antall: 0

Vinduer i boligene (ikke detaljert spesifisert)

Garasjeport Carport med bod

Antall: 82

Frittliggende carport med bod på ca. 25,3 m2 per boenhet

Parkering og bod til hver boenhet

Grunnarbeid Riving av eksisterende bygninger

Antall: 2

Riving av bygning > 100 m2 på 67/762 og bygning på 67/148

Riving av eksisterende bebyggelse før nybygg

Bygningskomponenter Boligblokker og rekkehus

🧱 Tre/stål/betong (ikke spesifisert)

Antall: 21

5 lavblokker og 16 rekkehus, 2 etasjer, saltak uten takutstikk, mønehøyde 7,9-8,4 m

Oppføring av 82 boenheter i lavblokker og rekkehus med carporter og boder

Elektro Veibelysning

Eksisterende veilys med fotocelle og kontaktor, oppgradering planlagt

Belysning langs vei og gang-/sykkelvei

Rekkverk Støttemurer

Mindre støttemurer i terreng

Terrengstøtte og sikring

Grunnarbeid Sammenføyning av eiendommer

Antall: 2

Sammenføyning av eiendommer 67/762 og 67/148 (egen sakstype)

Sammenføyning av eiendommer for utbygging

Grunnarbeid Opparbeidelse av vei og parkeringsplasser

Opparbeidelse av vei Fa2, GS1, f_SKV2, f_SPP1-9 parkeringsplasser

Veier og parkeringsarealer i boligområdet

Grunnarbeid Terrengjustering og fyllinger

Terrengjusteringer og fyllinger, spesielt langs sydlige del av B6

Terrengarbeider for utearealer og bygg

Fasade Saltak uten takutstikk

Saltak med 22 graders takvinkel, uten takutstikk

Takform på boligene

Varmepumpe Varmepumpeanlegg

Ingen eksplisitt opplysning, men vanlig i nye boligprosjekter

Grunnarbeid Forurenset grunn - overdekking

Forurenset grunn i sydøst overdekkes med fylling, ikke røres

Tiltak for å sikre byggegrunn

Grunnarbeid Midlertidig avkjørsel og veirett

Midlertidig utvidet bruk av avkjørsel fra Fv16 over kommunal veg T3, med dispensasjon

Midlertidig trafikkadkomst under utbygging

Terrasse Felles lekeplasser

Antall: 4

4 felles lekeplasser regulert i planen

Felles lekeplasser for barn i boligområdet

Hendelser

15.04.2026 67/762 - Svar på spørsmål fra Akershus fylkeskommune
10.04.2026 67/762 - Svar på vedtak om midlertidig dispensasjon
08.04.2026 67/762 - Grua Hageby - Oversendelse av vedtak
08.04.2026 67/762 - Grua Hageby - Rammetillatelse til infrastruktur og boliger m.m
09.02.2026 67/762 - kopi av søknad om avkjørsel - vedr sak 25/51, gbnr 67/762, Grua Hageby
28.01.2026 67/762 - Avklaringer rundt tilleggsopplysninger trafikk og trafikksikkerhet – midlertidige dispensasjoner – Grua Hageby
09.01.2026 67/762 - Grua Hageby - Tilbakemelding fra søker til fylket ang. mail før jul (kopi)
05.01.2026 67/762 og 67/148 - Tiltak i henhold til reguleringsplan - Uttalelse til søknad om dispensasjon fra rekkefølgekrav m.v.
19.12.2025 67/762 - Kopi av svar fra tiltakshaver på fylkets foreløpige vurdering
18.12.2025 67/762 - Tilbakemelding på purring i sak - Grua Hageby - utvidet avkjøringstillatelse
01.12.2025 67/762 - Hadelandsvegen 1552 - Søknad om rammetillatelse og dispensasjon fra planen om midlertidig atkomst
20.11.2025 67/762 - Grua Hageby - positiv uttalelse fra VVA ifm VA-plan med mer
28.10.2025 67/762 - Grua Hageby - Behandle søknad om dispensasjon og midlertidig utvidet bruk av avkjørsel
16.10.2025 67/762 - Utbygging Grua Hageby - svar på søknad om midlertidig avkjørsel
10.02.2025 67/762 - Grua hageby - Vi kan ikke behandle søknad om rammetillatelse
13.01.2025 67/762 - Søknad om rammetillatelse - Nytt bygg