NewConstruction MidlertidigBrukstillatelse Leilighetsbygg

Nytt boligbygg med pergola og utomhusarealer i Rotneshagen, Nittedal

📍 Hans Withs vei 14 , 1482 NITTEDAL

Nøkkelinfo

Sakstype
Nybygg
Bygningstype
Leilighetsbygg
Boenheter
81
Kommune
Nittedal
Fylke
Akershus
Gnr / Bnr
15 / 230
Saksnummer
24/00467
Fase
Midlertidig brukstillatelse

Om byggesaken

Prosjektet omfatter oppføring av boligbygg i Rotneshagen, Nittedal, bestående av leilighetsbygg og småhus fordelt på flere byggetrinn. Byggene har flere etasjer med tilhørende balkonger og inntrukne takterrasser hvor det etableres pergolaer med motoriserte lameller og mulighet for glassvegger. Utomhusarealene inkluderer gangveier, parkeringsplasser, sykkelparkering, renovasjonsløsninger med nedgravde avfallsbrønner, vegetasjonskonsept med stedegne planter, belysning og tilrettelegging for brannvesen. Prosjektet har fått igangsettingstillatelser for flere deler, og midlertidig brukstillatelse er under behandling. Det foreligger også dispensasjonssøknader for utkragede balkonger og pergolaer som overskrider regulerte byggegrenser. Prosjektet inkluderer omfattende tekniske installasjoner som VVS, elektro, ventilasjon, brannalarmanlegg og ledesystemer, samt landskapsutforming og overvannshåndtering.

Produkter og materialer

Dører Ytterdører

🧱 Tre

Antall: 9

Ytterdører i boligbygg

Ytterdører i tre til leiligheter og småhus

Ventilasjon Ventilasjon og klimainstallasjoner

Ventilasjon og klimainstallasjoner prosjektert og utført

Ventilasjonssystemer i boligbygg

Landskap Landskapsutforming og overvann

Landskapsutforming med vegetasjonskonsept, overvannshåndtering og utomhusplan

Landskapsutforming og overvannshåndtering i uteområder

Betong Parkeringskjeller

🧱 Betong

Parkeringskjeller for boligene med 81 sykkelparkeringsplasser

Underjordisk parkeringskjeller i betong

Grunnarbeid Vei og terrengarbeid

Opparbeidelse av adkomstveier, parkeringsplasser, snuhammer, gangstier og overvannshåndtering

Grunnarbeider for uteområder og infrastruktur

Garasjeport Parkeringskjeller porter

Porter til parkeringskjeller

Garasjeporter til parkeringskjeller

Elektro Brannalarmanlegg

Brannalarmanlegg prosjektert og utført

Brannalarmanlegg i boligbygg

Gangforbindelse Gangsti til skole

Gangforbindelse til Rotnes skole, godkjent av FAU og kommunen

Gangsti for trygg skolevei

VVS Sanitærinstallasjoner

Sanitærinstallasjoner for boligene

Sanitærinstallasjoner i boligbygg

Sykkelparkering Sykkel- og smøreboder

Antall: 39

Sykkelparkering i kjeller og egne boder, totalt 120 plasser iht. reguleringsplan

Sykkelparkering for beboere i boligområdet

Vinduer Fasadevindu

🧱 Tre, med RAL-farger tilpasset fasade

Antall: 55

Vinduer i leilighetsbygg, inkludert erstatning av hjørnevindu ved balkongetablering

Fasadevindu i tre med energiglass

Tak Taktekkingsarbeid

Taktekkingsarbeid utført av Nortekk AS

Taktekkingsarbeid på boligbygg

Fasade Pergola

🧱 Aluminium rammeverk med motoriserte lameller, rammeløse skyvedører i glass, screens Nerli Screen 5% - 010011 charcoal/bronze

Pergolaer på inntrukne takterrasser, transparent struktur, fargekodet som fasade, motoriserte lameller og glassvegger

Pergolaer for takterrasser som forlenger utesesongen og gir værbeskyttelse

Mur Murarbeid

Murarbeid utført av Consto AS

Murarbeid i prosjektet

Fasade Balkonger

🧱 Tre, stålrekkverk, RAL 6003 Olivgrün, RAL 8011 Nussbraun, RAL 7021 Schwarzgrau

Utkragede balkonger med stålrekkverk, balkonger i flere etasjer, inkludert dispensasjonssøkte utvidelser

Balkonger til leilighetsbygg og småhus, med tilpasning til reguleringsplan og tilgjengelighet

Trapper Utvendige trapper

🧱 Tre og granitt

Trapper i uteområder, inkludert eseltrapp

Utvendige trapper i tre og granitt for adkomst og uteområder

Renovasjon Nedgravde avfallsbrønner

Nedgravde avfallsbrønner for restavfall, matavfall, papp/papir, glass/metall med kapasitet til 81 boenheter

Avfallshåndtering med nedgravde containere i uteområder

Tømrer Tømrerarbeid og montering av trekonstruksjoner

🧱 Tre

Tømrerarbeid for leilighetsbygg og småhus

Tømrerarbeid og montering av trekonstruksjoner

VVS Vannforsynings- og avløpsanlegg

Nytt spillvannsledning med krav til overtakelse og dokumentasjon, samt privat ledningsnett med tinglyst erklæring

Vann- og avløpsanlegg for boligområdet, inkludert spillvannsledning og overvannshåndtering

Varme Varmeinstallasjoner

Varmeinstallasjoner prosjektert og utført

Varme- og kuldeinstallasjoner i boligbygg

Belysning Utendørs belysning

Pullertbelysning langs stier og trapper, vegg- og taklamper ved innganger, astro-ur styring

Utendørs belysning for fellesarealer og gangveier

Elektro Ledesystem

Ledesystem prosjektert og utført

Ledesystem for rømningsveier og sikkerhet

Plantegning

P-kjeller 0.0 m²

Etasje 0 0.0 m²

Rom Areal Vinduer Dører
Heis HC 0.0 m² 0 0
Oppgave 1A Oppg. 1A 0.0 m² 0 0
Oppgave 2A Oppg. 2A 0.0 m² 0 0
Oppgave 2B Oppg. 2B 0.0 m² 0 0

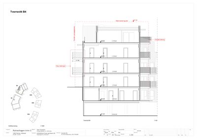
Fasader

Bygg 4

Nord
Materiale
Tre
Vinduer
14
Dører
1
Balkonger
6
Synlige etasjer
4
Øst
Materiale
Tre
Taktype
Flatt tak
Vinduer
14
Dører
1
Balkonger
1
Synlige etasjer
4
Vest
Materiale
Tre
Taktype
Saltak
Vinduer
14
Dører
2
Balkonger
4
Synlige etasjer
4
Sør
Materiale
Tre
Taktype
Flatt tak
Vinduer
13
Dører
4
Balkonger
6
Synlige etasjer
5

Hendelser

23.04.2026 24/00467-96 Endringstillatelse med dispensasjon - 15/230 - Rotneshagen BT2 trinn 3 – Balkonger og fasadeendring
23.04.2026 24/00467-95 Endringstillatelse med dispensasjon - Godkjenning av enhetlig plan for pergola FELT 2 - 15/230 - Rotneshagen BT2
22.04.2026 24/00467-97 Kopi - Vedtak om tillatelse til etablering av pergola og balkong jf. jernbaneloven §10 - 15/230 - Gjøvikbanen
09.04.2026 24/00467-93 Bekreftelse på møte - Rotneshagen BT2
09.04.2026 24/00467-92 Orientering - Spillvannsledning
08.04.2026 24/00467-88 Igangsettingstillatelse del nr. 6 - 15/230 - Rotneshagen byggetrinn 2 igangsettingstillatelse
01.04.2026 24/00467-90 Søknad om endring av gitt tillatelse - 15/230 - Rotneshagen byggetrinn 2 søknad
31.03.2026 24/00467-89 Søknad om endring av gitt tillatelse - 15/230 - Rotneshagen byggetrinn 2 søknad
19.03.2026 24/00467-87 Forløpig tilbakemelding vedrørende møte
16.03.2026 24/00467-86 Søknad om igangsettingstillatelse - 15/230 - Rotneshagen byggetrinn 2 - Nytt boligbygg med tilhørende utomhusarealer igangsettingstillatelse
09.03.2026 24/00467-82 Igangsettingstillatelse del nr. 5 – 15/230 – Rotneshagen byggetrinn 2 igangsettingstillatelse
05.03.2026 24/00467-84 Midlertidig tilbakemelding vedrørerende møte
05.03.2026 24/00467-83 Ønsker møte - midlertidig brukstillatelse midlertidig_brukstillatelse