NewConstruction Igangsettingstillatelse Leilighetsbygg

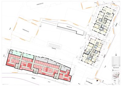
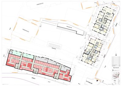
Tre leilighetsbygg med parkeringskjeller i Havnegata 83, Drammen

📍 Havnegata 55 , 3040 DRAMMEN

Nøkkelinfo

Sakstype
Nybygg
Bygningstype
Leilighetsbygg
Bruksareal
8,201 m²
Boenheter
81
Kommune
Drammen
Fylke
Buskerud
Gnr / Bnr
112 / 233
Saksnummer
25/26339
Fase
Igangsettingstillatelse

Om byggesaken

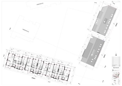
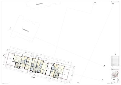
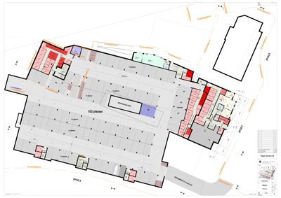
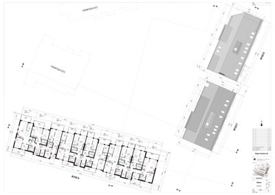
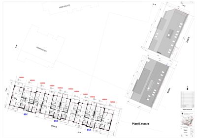
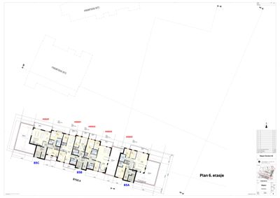
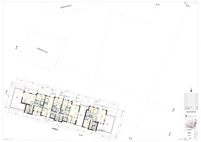
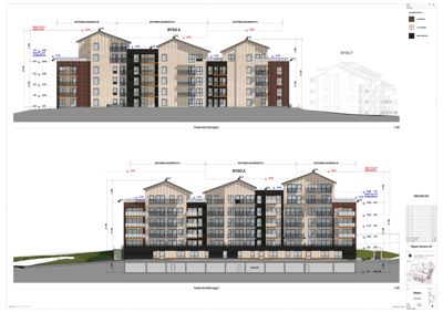
Prosjektet omfatter oppføring av tre boligblokker i Havnegata 83, Drammen, med totalt 81 leiligheter fordelt på bygg A (50 leiligheter, 7 etasjer), bygg E (15 leiligheter, 4 etasjer) og bygg F (16 leiligheter, 5 etasjer). Det etableres en underjordisk parkeringskjeller med 103 bilplasser og 328 sykkelplasser. Utearealene inkluderer felles uteoppholdsarealer på totalt ca. 4923 m², lekeplasser og grøntområder. Byggene har varierte takformer med saltak og flate tak, og fasadene er hovedsakelig i trepanel med innslag av skjermtegl. Prosjektet inkluderer også etablering av infrastruktur som vann- og avløpsanlegg, vei, fortau og sykkelprioritert gate. Grunnforholdene er dokumentert med miljøtekniske undersøkelser og tiltaksplan for forurenset grunn er godkjent. Det er gjennomført risikovurderinger for forurensning og støy, og det er satt krav til miljøoppfølging, støyisolasjon og universell utforming. Prosjektet har fått dispensasjoner fra enkelte reguleringsbestemmelser knyttet til plassering av trafo og tiltaksplan for forurenset sjøbunn, med vilkår om godkjenning før igangsettingstillatelse for senere byggetrinn.

Arbeidsomfang

- Oppføring av tre leilighetsbygg (Bygg A i felt BB1 med 50 leiligheter på 7 etasjer, samt to boligblokker i felt BB3) - Etablering av parkeringskjeller under bakken - Utarbeidelse og opparbeidelse av uteoppholdsarealer - Etablering av nødvendig infrastruktur inkludert VA-anlegg (mellom byggene, herunder o_KV2 og o_FO3) - Oppføring av ny støttemur mot Havnegata FV.319 innenfor feltet BB1 for å ta opp høydeforskjellen

Produkter og materialer

VVS Vann- og avløpsanlegg

🧱 Kommunal vannledning Ø180 mm PE, pumpestasjon

Nye vann- og avløpsledninger tilknyttet kommunalt nett, pumpestasjon med kapasitet 18,88 l/s

Vannforsyning og spillvannshåndtering for boligprosjektet

Elektro Heis og løfteinnretninger

🧱 Heis med lydkrav og vibrasjonsisolering

Antall: 6

Heis i boligblokker med krav til lavt støynivå

Heisanlegg i boligbygg

Bad Tung, flytende påstøp på trinnlydmatte

🧱 Minst 40 mm påstøp med plastfolie under

Badekonstruksjoner med lydisolasjon og tetting

Lydisolerte bad i leiligheter

Tømrer Tredekker og terrasse

🧱 Trepanel, tredekker på brygge og utearealer

Nytt tredekke på eksisterende brygge, terrassearealer på tak og uteområder

Utearealer med tredekke og beplantning

Elektro Trafo og elektriske anlegg

🧱 Frittstående trafo plassert på torg, med godkjennelse fra Glitre Nett

Antall: 1

Trafo med utendørs plassering, tilpasset inspeksjon og vedlikehold

Ny trafo for strømforsyning til boligprosjektet

Ventilasjon Boligventilasjon

🧱 Distribuert boligventilasjon med lydfeller og vibrasjonsisolering

Ventilasjonsanlegg plassert i sekundærrom, med krav til lavt støynivå

Ventilasjonssystem for boligene

Betong Pelefundamentering

🧱 Stålkjernepeler med mørteloverdekning 20-50 mm

Peler dimensjonert for vertikale og horisontale laster, korrosjonsbeskyttelse med økt godstykkelse

Fundamentering av bygg og parkeringskjeller

Gulv Trinnlydmatte og avrettingsmasse

🧱 Trinnlydmatte med avrettingsmasse, DLw ≥ 28 dB

Gulv i leiligheter og fellesarealer for lydisolasjon

Lydisolerte gulvkonstruksjoner

Isolasjon Radonsikring

Radonsperre i henhold til TEK17

Radonsikring i bygg E

Annet Fremmede arter håndtering

Fjerning av øverste 40 cm jordlag med fremmede arter, levering til godkjent mottak

Tiltak mot spredning av fremmede arter

VVS Overvannshåndtering

🧱 Regnbed med vanntett duk, drensledning, sandfangskum

Åpne overvannsløsninger med infiltrasjon og fordrøyning, flomveier til sjø

Lokal overvannsdisponering i trinn 1-3

Maling Innvendige overflater

🧱 Gipsplater og fibergips med lydisolerende egenskaper

Vegger og himlinger med lydisolasjon

Innvendige lydisolerende overflater

Fasade Trepanel og skjermtegl

🧱 Lys og mørk trepanel, brun skjermtegl

Antall: 3

Fasader med kombinasjon av trepanel og skjermtegl, bronsefargede beslag

Fasadematerialer med god aldring og estetikk

Vinduer Fasadevindu

🧱 Trepanel fasade med 3-lags energiglass

Antall: 164

Vinduer i bygg A, E og F med lydkrav Rw+Ctr 27-38 dB, inkludert spesialvinduer for dempet fasade

Vinduer til leiligheter med krav til lydisolasjon og energiglass

Rekkverk Balkongrekkverk

🧱 Tett rekkverk med absorbent i himling

Rekkverk maks 1,2-1,3 m høyde, lydabsorberende himling

Lydreduserende balkongrekkverk

Garasjeport Garasjeport og dørlukker

🧱 Vibrasjonsisolert garasjeport og dørlukker

Antall: 1

For å forhindre strukturlyd i omkringliggende leiligheter

Garasjeport i parkeringskjeller

Trapper Innvendige trapper

🧱 Prefabrikerte betongelementer med trinnlydmatte

Antall: 2

Trapper med trinnlydforbedring DLw ≥ 28 dB

Innvendige trapper i boligblokker

Grunnarbeid Grunnarbeider og sprengning

Grunnarbeider med frie graveskråninger, sprengning til fjell, massehåndtering iht. tiltaksplan

Grunnarbeider for bygg og infrastruktur

Terrasse Takterrasse lydisolasjon

🧱 Tiltak med trinnlydforbedring DLw = 23-28 dB

Takterrasser med lydisolasjon mot underliggende leiligheter

Lydisolerte takterrasser

VVS Anleggsvann rensing

🧱 Containerbasert sedimenteringsanlegg med oljeutskiller

Rensing av anleggsvann med krav til suspendert stoff, olje, metaller, PAH, PCB, BTEX

Renseanlegg for anleggsvann under byggefasen

Betong Terrengmurer

🧱 Betongmurer med rekkverk min 1 m høyde

Støttemur ved Beaumontbygget for høydeforskjell mot sykkelprioritert gate

Terrengmurer for terrengtilpasning og sikring

Dører Ytterdør

🧱 Bronsefarget beslag og lydisolerende dører

Antall: 81

Inngangsdører med lydreduksjon Rw ≥ 43 dB

Ytterdører til leiligheter og fellesarealer med lydisolasjon

Tak Saltak og flate tak

🧱 Trepanel, stål takmateriale

Antall: 3

Saltak på bygg E og F, flate tak på bygg A og felles takterrasser

Tak med varierte former og materialer

Mur Terrengmur

🧱 Betongmur med rekkverk

Terrengmurer over 1 m høyde, tilpasset eksisterende bygg og terreng

Sikringsmurer i uteområder

Betong Betongdekker og bjelker

🧱 Hulldekker 265-320 mm, betongbjelker

Betongkonstruksjoner dimensjonert for nyttelaster og bruksforhold

Dekker og bærende konstruksjoner i boligblokker og parkeringskjeller

Fasader

Bygg E

Nordøst
Materiale
Trepanel
Taktype
Saltak
Høyde
14.4 m
Vinduer
10
Dører
2
Balkonger
4
Synlige etasjer
4
Sørvest
Materiale
Trepanel
Taktype
Saltak
Høyde
14.4 m
Vinduer
10
Dører
2
Balkonger
4
Synlige etasjer
4
Syd-Øst
Materiale
Tre
Taktype
Flatt tak
Takmat.
Stål
Høyde
14.4 m
Mønehøyde
16.5 m
Vinduer
14
Dører
0
Balkonger
4
Synlige etasjer
5
Nord-Vest
Materiale
Tre
Taktype
Flatt tak
Takmat.
Stål
Høyde
14.4 m
Mønehøyde
17.4 m
Vinduer
14
Dører
0
Balkonger
4
Synlige etasjer
5
Nord-Øst
Materiale
Trepanel
Taktype
Saltak
Høyde
14.5 m
Mønehøyde
17.4 m
Vinduer
10
Dører
2
Balkonger
4
Synlige etasjer
4
Syd-Vest
Materiale
Trepanel
Taktype
Saltak
Høyde
14.5 m
Mønehøyde
17.4 m
Vinduer
10
Dører
2
Balkonger
4
Synlige etasjer
4
Sydøst
Materiale
Trepanel
Taktype
Flatt tak
Høyde
14.4 m
Mønehøyde
13.5 m
Vinduer
10
Dører
0
Balkonger
4
Synlige etasjer
4
Nordvest
Materiale
Trepanel
Taktype
Flatt tak
Høyde
14.4 m
Mønehøyde
17.4 m
Vinduer
10
Dører
2
Balkonger
8
Synlige etasjer
4
Ukjent
Taktype
Saltak
Høyde
13.5 m
Mønehøyde
28.5 m
Vinduer
12
Dører
0
Synlige etasjer
4
Sør-øst
Taktype
Flatt tak
Vinduer
14
Dører
0
Balkonger
3
Synlige etasjer
4

Fellesrom

Nord-Øst
Materiale
Trepanel
Taktype
Flatt tak
Høyde
6.3 m
Vinduer
6
Dører
2
Synlige etasjer
1

Hendelser

15.04.2026 Havnegata 85-95, Ytterligere dokumentasjon
14.04.2026 Havnegata 83-95, Slippen - tilbakemelding på søknad om dispensasjon fra rekkefølgekrav
13.04.2026 112/233, nybygg blokker på Slippen-nye adresser
10.04.2026 Havnegata 83-93, Slippen, informasjon om politisk behandling
01.04.2026 Havnegata 83-95, Slippen, igangsettingstillatelse nr. 1 for oppføring av tre leilighetsbygg, parkeringskjeller, uteoppholdsarealer og infrastruktur igangsettingstillatelse
01.04.2026 Havnegata 83-95, Slippen, rammetillatelse til oppføring av tre leilighetsbygg, parkeringskjeller, uteoppholdsarealer og infrastruktur, med dispensasjon fra detaljregulering rammetillatelse
31.03.2026 Havnegata 83-93, søknad om dispensasjon og endring av søknad om IG rammetillatelse
27.03.2026 Havnegata 83-95, oppdatert utomhusplan
12.03.2026 Havnegata 83-95, Slippen, felt BB1 og BB3, supplering av søknad 112/233 rammetillatelse
11.03.2026 Havnegata 83-93, signert gjennomføringsavtale med fylkeskommunen
27.02.2026 Havnegata 83-95, Slippen - Søknad om ren dispensasjon fra rekkefølgekrav dispensasjon
16.02.2026 Havnegata 83-95, Slippen, felt BB1 og BB3, kopi: Godkjenning av byggeplan vedtak
16.02.2026 Havnegata 83-95, Slippen, felt BB1 og BB3, oversendelse av fylkeskommunens godkjenning av byggeplan vedtak
16.02.2026 Havnegata 83-95, Slippen, felt BB1 og BB3, supplering av søknad 112/233 søknad
21.01.2026 Havnegata 83-95, Slippen, felt BB1 og BB3 - Søknad om igangsettingstillatelse 112/233 igangsettingstillatelse
12.01.2026 Havnegata 83-95 Slippen, redegjørelse vedrørende støy
22.12.2025 Havnegata 83-95, supplering av søknad 112/233 søknad
19.12.2025 Havnegata 83-96, orientering om utfall av politisk behandling
18.12.2025 Saksprotokoll Hovtt, 18122025, Sak 134/25, Havnegata 83-95, dispensasjon fra bestemmelse 4.1.10 bokstav a og 3.3.4 bokstav a i detaljregulering for Drammen Slip & Verksted dispensasjon
12.12.2025 Havnegata 83-95, informasjon om politisk behandling
08.12.2025 Havnegata 83, oppdatert søknad om dispensasjon dispensasjon
08.12.2025 Havnegata 83-95, Slippen, felt BB1 og BB3, -Supplering av søknad 112/233 søknad
24.11.2025 Havnegata 83-93, orientering om utfall av politisk behandling
21.11.2025 Saksprotokoll Hovtt, 20112025, Sak 111/25, Havnegata 83-95, dispensasjon bestemmelse 4.1.10 bokstav a i detaljregulering for Drammen Slip & Verksted, om tiltaksplan for forurensede masser i sjøbunn dispensasjon
20.11.2025 Havnegata 83-95 Supplering av søknad 112/233 søknad
13.11.2025 Havnegata 83-95, Slippen, felt BB1 og BB3, vedr. dispensasjonssøknaden som skal opp til behandling på neste politiske møte dispensasjon
12.11.2025 Havnegata 83-95, informasjon om politisk behandling
10.11.2025 Havnegata 83-95, Slippen, felt BB1 og BB3, vi trenger flere opplysninger for å behandle søknaden din søknad
03.11.2025 Havnegata 83-95, Slippen, felt BB1 og BB3, teknisk plan
27.10.2025 Havnegata 83-95, Slippen, felt BB1 og BB3, Tilleggsopplysninger til saken
14.10.2025 Havnegata 83-95, Tilleggsopplysninger
14.08.2025 Supplering av søknad 112/233 søknad
14.08.2025 Havnegata 83-95, Slippen, Supplering av søknad 112/233 søknad
08.07.2025 Havnegata 83-95, Slippen - tekniske planer til godkjenning vedtak
07.07.2025 Havnegata 83-95, Slippen, felt BB1 og BB3, ny innsendelse av to vedlegg til søknad om dispensasjon dispensasjon
07.07.2025 Havnegata 83-95, Slippen, felt BB1 og BB3, plassering av trafo, dispensasjon dispensasjon
07.07.2025 Havnegata 83-95, Slippen, felt BB1 og BB3 Søknad om rammetillatelse 112/233 rammetillatelse