NewConstruction Avslatt Leilighetsbygg

Ny firemannsbolig med riving i Kirkevegen 5, Bergen

📍 Kirkevegen 5 , 5072 BERGEN

Nøkkelinfo

Sakstype
Nybygg
Bygningstype
Leilighetsbygg
Bruksareal
916 m²
Boenheter
4
Kommune
Bergen
Fylke
Vestland
Gnr / Bnr
15 / 81
Saksnummer
BYGG-2026/00410
Fase
Avslått

Om byggesaken

Ny firemannsbolig i tre etasjer med totalt 4 leiligheter og felles garasje på ca. 146 m² i 1. etasje oppføres på eiendommen Kirkevegen 5 i Bergen. Bygget har et samlet bruksareal på ca. 916 m² fordelt på tre etasjer, med store terrasser og felles uteoppholdsarealer i to nivåer. Bygget har flatt tak og fasader i betong og tre med varierte materialer som gråsteinsmur, trepanel, spilekledning, murpussplater og glass. Det planlegges heis og balansert ventilasjon i hver boenhet, samt vannbåren varme i gulv. Tomten på ca. 1130 m² ligger i en byfortettingssone med god tilgang til kollektivtransport og rekreasjonsområder. Eksisterende bolig fra 1909 rives for å gi plass til ny bebyggelse. Prosjektet inkluderer støyskjerming, parkering i kjeller, og tilknytning til offentlig vann- og avløpsnett med lokal overvannshåndtering.

Produkter og materialer

Tak Flatt tak med brannmotstand

🧱 Ubrennbar isolasjon (A2-s1,d0), taktekking Broof(t2)

Antall: 1

Flatt tak med brannmotstand R30, isolasjon ubrennbar, taktekking Broof(t2)

Tak med brannmotstand og isolasjon

Vinduer Store vinduer i oppholdsrom

🧱 3-lags energiglass

Antall: 34

Store vinduer med god dagslysinnslipp, inkludert 6 vinduer på fasade vest, 4 på sør, 6 på øst og 3 på nord i boligene

Vinduer til leilighetene for dagslys og utsyn

Trapper Innvendig trapp og trapperom

🧱 Betong og stål

Antall: 1

Trapperom med heis, trapp i L-form, brannmotstand R30

Trapperom og heis for adkomst mellom etasjer

Garasjeport Port til felles garasje

Antall: 1

Garasjeport til felles garasje på ca. 146 m² i 1. etasje

Port for biladkomst til garasje

Elektro Seriekoblede røykvarslere og nødlys

Optiske røykvarslere i alle boenheter og fellesarealer, nødlys og ledesystem i trapperom og garasje

Brannvarsling og nødlys

Rekkverk Glassrekkverk på terrasser

🧱 Glass og metall

Glassrekkverk på terrasser og balkonger med høyde 110 cm

Sikring av terrasser og balkonger

Isolasjon Ubrennbar isolasjon

🧱 A2-s1,d0 ubrennbar isolasjon

Isolasjon i tak og vegger med ubrennbar isolasjon A2-s1,d0

Isolasjon for brannsikkerhet og varmeisolasjon

Elektro Elektrisk anlegg og belysning

Elektrisk anlegg med strømforsyning til alle leiligheter, fellesarealer og garasje

Elektriske installasjoner

Betong Betongdekker og bæresystem

🧱 Betong med brannmotstand R60

Betongdekker mellom etasjer, bæresystem med R60 brannmotstand

Bæresystem og etasjeskiller i betong

Brannvern Sprinkleranlegg og brannslokkeutstyr

Automatisk sprinkleranlegg iht. NS-EN 12845, manuelt slokkeutstyr i boenheter, tekniske rom og garasje

Brannsikkerhetstiltak

Maling Innvendig maling og overflater

Innvendige overflater med maling og parkett på gulv i oppholdsrom, fliser på bad

Innvendige overflater og gulvbelegg

VVS Vannbåren varme og balansert ventilasjon

Elektrisk/vannbåren varme i gulv, balansert ventilasjonsanlegg separat for hver boenhet

Oppvarming og ventilasjon i leilighetene

Dører Ytterdører og balkongdører

🧱 Isolerte dører med glassfelt

Antall: 12

Dører til hovedinnganger, balkonger og terrasser, inkludert 2 dører på fasade vest, 2 på sør, 2 på øst og 1 på nord

Ytterdører og balkongdører til leilighetene

Fasade Betong og trepanel fasader

🧱 Betong, tre, spilekledning, murpussplater, glass

Fasader i betong og tre med varierte materialer, inkludert glassrekkverk på balkonger

Fasadeelementer for boligblokk

Grunnarbeid Tomtearbeid og fundamentering

Riving av eksisterende bolig, grunnarbeid for nytt bygg, fundamentering for 3-etasjers boligbygg

Grunnarbeid for ny boligblokk

VVS VA-anlegg og overvannshåndtering

Tilknytning til offentlig vann- og avløpsnett, lokal overvannshåndtering iht. kommunal VA-norm

Vann- og avløpsinstallasjoner

Terrasse Private og felles terrasser

Store private terrasser til hver leilighet, felles uteoppholdsarealer med sandkasse, amfi og bordtennis

Utearealer for opphold og lek

Kjøkken Kjøkkeninnredning

Antall: 4

Kjøkkeninnredning i hver leilighet med tilhørende ventilasjon

Kjøkken i hver boenhet

Bad Bad med fliser og sanitærutstyr

Antall: 6

Bad med fliser på gulv og vegger, sanitærutstyr iht. TEK17

Bad i hver leilighet og fellesarealer

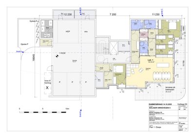
Plantegning

Enebolig 301.9 m²

Etasje 1 301.9 m²

Rom Areal Vinduer Dører
Opphold 101 56.6 m² 2 1
Sov/kontor 102 12.3 m² 1 1
Tekn. rom 1 103 5.2 m² 0 1
Bod 104 5.3 m² 0 1
Sluse 105 5.8 m² 0 1
Hall 106 24.7 m² 0 2
Gang/gard. 107 12.2 m² 0 1
Gang 108 5.5 m² 0 1
Sov 109 7.2 m² 1 1
Sov 110 7.2 m² 1 1
Sov 111 15.8 m² 1 1
Bad 112 5.1 m² 0 1
Bad 113 5.6 m² 0 1
Vask 114 5.4 m² 0 1
WI/bod 115 4.3 m² 0 1
Bod 116 5.1 m² 0 1
Garasje 117 146.6 m² 0 1
Tekn.rom2 118 3.6 m² 0 1
Boss 119 9.6 m² 0 1
Bod 120 7.6 m² 0 1
Bod 121 7.6 m² 0 1
HCP 122 0.0 m² 0 0
snu 123 0.0 m² 0 0

Boliger 1,060.0 m²

Etasje 2 1,060.0 m²

Rom Areal Vinduer Dører
Hovedinngang 201 0.0 m² 0 1
Trapp 202 0.0 m² 0 0
Leilighet 2 203 147.7 m² 4 2
Leilighet 3 204 147.7 m² 4 2
Sykkel-P 205 0.0 m² 0 0

Fasader

Boliger

Vest
Materiale
Betong
Taktype
Flatt tak
Høyde
10.6 m
Vinduer
6
Dører
2
Balkonger
2
Synlige etasjer
3
Sør
Materiale
Betong
Taktype
Flatt tak
Høyde
10.5 m
Vinduer
4
Dører
2
Balkonger
2
Synlige etasjer
3

Enebolig

Øst
Materiale
Tre
Taktype
Flatt tak
Høyde
6.5 m
Mønehøyde
30.5 m
Vinduer
6
Dører
2
Balkonger
1
Synlige etasjer
2
Nord
Materiale
Tre
Taktype
Flatt tak
Høyde
6.5 m
Mønehøyde
30.5 m
Vinduer
3
Dører
1
Balkonger
1
Synlige etasjer
2

Hovedbygg

Vest
Materiale
Tre
Taktype
Saltak
Høyde
6.5 m
Mønehøyde
8.2 m
Vinduer
10
Dører
1
Balkonger
2
Synlige etasjer
2

Hendelser

31.03.2026 Bekreftelse utsatt frist innsending tilleggsopplysninger
25.03.2026 Fakturagrunnlag
25.03.2026 ubw ordre 20692848/avvist
17.03.2026 Søknaden avvises - 15/81 - Kirkevegen 5, riving og nybygg bolig
21.01.2026 Bekreftelse på mottatt søknad - 15/81/0/0 Kirkevegen 5, nybygg firemannsbolig, riving
20.01.2026 Supplering - 15/81/0/0 Kirkevegen 5, nybygg firemannsbolig, riving
20.01.2026 Kirkevegen 5 Søknad om rammetillatelse 15/81