NewConstruction Igangsettingstillatelse Leilighetsbygg

Ny boligbygning med 4 boenheter i Klaus Hanssens vei 17, Bergen

📍 Klaus Hanssens vei 17A , 5053 BERGEN

Nøkkelinfo

Sakstype
Nybygg
Bygningstype
Leilighetsbygg
Bruksareal
318 m²
Boenheter
4
Kommune
Bergen
Fylke
Vestland
Gnr / Bnr
162 / 76
Saksnummer
BYGG-2025/12395
Fase
Igangsettingstillatelse

Om byggesaken

Ny boligbygning i Klaus Hanssens vei 17 i Bergen består av et frittstående boligbygg med 4 boenheter, totalt ca. 318 m² BRA. Bygget er prosjektert over 3 etasjer med loft, med saltak og arkitektonisk utforming som harmonerer med eksisterende bebyggelse. Boligene varierer i størrelse fra 35,5 m² til 132,1 m², med private uteoppholdsarealer som terrasser, balkonger og takterrasse. Uteområdene er terrassert og skjermet for veistøy, med gode solforhold i sommersesongen. Bygget har tilkomst direkte fra terreng, og det er lagt vekt på stedstilpasset fortetting i et urbant område med kort vei til kollektivtransport. Det er søkt dispensasjon fra flere reguleringsbestemmelser, blant annet byggegrense mot vei, parkeringskrav og solforhold. Bygget er prosjektert med hensyn til brannsikkerhet, skredfare og støy, og det foreligger godkjente tiltaksplaner for forurenset grunn og VA-anlegg. Prosjektet er i fase med igangsettingstillatelser for grunnarbeider og øvrige deler av tiltaket.

Produkter og materialer

Annet Brannstige

Antall: 2

Utfellbar brannstige med ryggbøyle på fasade sør og øst

Brannstige for rømningsvei

Maling Utvendig og innvendig maling

Maling av fasader og innvendige flater

Tak Saltak med teglstein

🧱 Teglstein

Antall: 1

Saltak med teglstein i rød og grønn farge

Taktekking for boligbygget

Ventilasjon Boligventilasjon

Antall: 4

Separate boligventilasjonsanlegg for hver boenhet uten gjennomføringer i lyd- og brannskillere

Ventilasjonsanlegg for boligene

Mur Natursteinsmurer og støttemurer

🧱 Naturstein

Tørrmurte gravitasjonsmurer av naturstein med høyde ≤ 2 m, støttemurer i betong

Murer i terreng og uteområder

Grunnarbeid Overvannshåndtering

Regnbed og fordrøyningsmagasin med samlet kapasitet på minimum 1,5 m3

Overvannshåndtering på tomten

Varmepumpe Luft til vann eller luft til luft varmepumpe

Oppvarming med varmepumpe, valg av løsning avklares før igangsetting

Oppvarmingsløsning for boligbygget

Dører Ytterdører og balkongdører

🧱 Tre

Antall: 10

Ytterdører og balkongdører i tre til boligbygget

Tømrer Tømrerarbeid og trekonstruksjoner

🧱 Tre

Tømrerarbeid inkl. montering av trekonstruksjoner og taktekking

Tømrerarbeid for boligbygget

Balkong Balkong og takterrasse

🧱 Tre

Antall: 3

Balkonger på ca. 5,1 m2 og 5,4 m2, takterrasse på ca. 31,3 m2

Private uteoppholdsarealer i form av balkonger og takterrasse

VVS Sanitærinstallasjoner

Innvendige og utvendige sanitærinstallasjoner, inkl. vann- og avløpsledninger

Sanitærinstallasjoner for boligbygget

Betong Slakkarmerte betongkonstruksjoner

🧱 Betong

Fundamenter, grunnmur, etasjeskillere, bakmur og forstøtningsmurer i betong

Betongkonstruksjoner i boligbygget

Rekkverk Rekkverk på balkonger og takterrasse

🧱 Tre

Rekkverk på balkonger og takterrasse, endret i søknadsprosess

Sikkerhetsrekkverk for utearealer

Trapper Innvendige trapper

🧱 Betong og tre

Antall: 2

Trapper i boligbygget, inkludert trapp mellom eksisterende og nytt bygg

Innvendige trapper i boligbygget

Gulv Innvendige gulv

Innvendige gulv i boligene

Grunnarbeid Grunn- og terrengarbeider

Utgraving, utsprenging av byggegrop, utfylling og planering

Grunnarbeider for boligbygget

Elektro Elektrisk installasjon

Elektriske installasjoner i boligbygget

VVS Vannforsynings- og avløpsanlegg

Privat VA-anlegg med stikkledninger, overvannshåndtering og fordrøyningsmagasin

Vann- og avløpsanlegg for boligbygget

Vinduer Fasadevindu

🧱 Tre

Antall: 21

Fasadevinduer i tre til boligbygget, fordelt på flere etasjer

Fasade Tre kledning

🧱 Tre

Tre kledning på alle fasader

Fasadebekledning i tre

Solceller Solcelleanlegg

Ingen eksplisitt opplysning, men vanlig for nye boligprosjekter

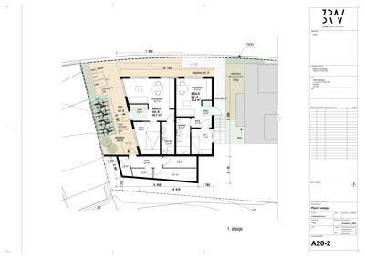
Plantegning

Enebolig 526.0 m²

Etasje 3 81.6 m²

Rom Areal Vinduer Dører
Stue/kjøkken BRA-S 38.8 m² 1 1
Sov 1 sov 1 14.1 m² 1 1
Sov 2 sov 2 7.0 m² 1 1
Kontor kontor 5.3 m² 1 1
Bad/vask bad/vask 10.2 m² 0 1
Balkong balkong 5.4 m² 0 1

Etasje 4 50.8 m²

Rom Areal Vinduer Dører
Stue/kjøkken BRA-S 36.0 m² 1 1
TV-stue/Sov 3 tv-stue/sov 3 36.0 m² 1 1
Bod bod v/knevegg 7.4 m² 1 1
Bad Bad 4.9 m² 0 1
Sov 3 sov 3 9.0 m² 1 1
Terrasse terrasse 31.3 m² 0 1

Etasje 2 208.6 m²

Rom Areal Vinduer Dører
Stue/kjøkken BRA-S leil. C 77.1 m² 2 1
Sov rom 1 sov 1 11.7 m² 1 1
Sov rom 2 sov 2 8.6 m² 1 1
Entré/garderobe ent/gard. 8.7 m² 0 2
Bad/vask bad/vask 6.7 m² 0 1
Balkong balkong 5.1 m² 0 1
Entré/garderobe BRA-S entre/gard. leil D 5.5 m² 0 1
Uteplass uteplass leil. C 0.0 m² 0 0

Etasje 1 185.0 m²

Rom Areal Vinduer Dører
Stue/kjøkken 101 22.7 m² 1 1
Sov 1 102 9.8 m² 0 1
Bad/vask 103 6.2 m² 0 1
Gang 104 2.7 m² 0 1
Sov 1 105 7.1 m² 0 1
Bad/vask 106 6.7 m² 0 1
Entre 107 3.6 m² 0 1
Stue/kjøkken 108 15.2 m² 1 1
Entre 109 2.0 m² 0 1
Boder 110 5.0 m² 0 1
Boder 111 5.0 m² 0 1
Uteplass 112 11.5 m² 0 0
Uteplass 113 11.5 m² 0 0

Fasader

Enebolig

Sør
Materiale
Tre
Taktype
Saltak
Høyde
6.5 m
Mønehøyde
8.2 m
Vinduer
5
Dører
2
Balkonger
1
Synlige etasjer
2
Øst
Materiale
Tre
Taktype
Saltak
Høyde
6.5 m
Mønehøyde
8.2 m
Vinduer
4
Dører
1
Synlige etasjer
2
Nord
Materiale
Tre
Taktype
Saltak
Takmat.
Tegl
Høyde
6.5 m
Mønehøyde
8.2 m
Vinduer
5
Dører
1
Synlige etasjer
2
Vest
Materiale
Tre
Taktype
Saltak
Takmat.
Tegl
Høyde
6.5 m
Mønehøyde
8.2 m
Vinduer
6
Dører
1
Balkonger
2
Synlige etasjer
2

Hendelser

08.04.2026 Fakturagrunnlag 2026, 162/76, Klaus Hanssens vei 17, IG 2
08.04.2026 Ubw ordre 20693797/IG2
24.03.2026 Igangsettingstillatelse (2) for deler av tiltaket, 162/76, Klaus Hanssens vei 17
24.03.2026 Redegjørelse- 162/76/0/0 Klaus Hanssens vei 17, nytt bygg - Boligformål
19.03.2026 Klaus Hanssens vei 17A Søknad om igangsettingstillatelse 162/76
29.12.2025 Igangsettingstillatelse for deler av tiltaket (1), 162/76, Klaus Hanssens vei 17
16.12.2025 Godkjenning av plassering i tiltaksklasse og vurdering av ansvarsrett, 162/76, Klaus Hanssens vei 17
15.12.2025 Klaus Hanssens vei 17A Søknad om igangsettingstillatelse 162/76
04.12.2025 Klaus Hanssens vei 17A Supplering av søknad 162/76
07.11.2025 Klage - kommentar til solstudie
06.11.2025 Klage - kommentar til solstudie - 162/76/0/0 Klaus Hanssens vei 17, nytt bygg - Boligformål
15.09.2025 Klage trekkes- 162/76/0/0 Klaus Hanssens vei 17, nytt bygg - Boligformål
05.09.2025 Orientering om dokumentasjon- 162/76/0/0 Klaus Hanssens vei 17, nytt bygg - Boligformål
05.09.2025 Korrespondanse- 162/76/0/0 Klaus Hanssens vei 17, nytt bygg - Boligformål
05.09.2025 Foreløpig svar på spørsmål knyttet til videre saksgang- 162/76/0/0 Klaus Hanssens vei 17, nytt bygg - Boligformål
15.08.2025 Fakturagrunnlag 2025, 162/76, Klaus Hanssens vei 17, nybygg bolig
15.08.2025 ubw ordre 20675183
25.07.2025 Redegjørelse for MUA - 162/76/0/0 Klaus Hanssens vei 17, nytt bygg - Boligformål
25.07.2025 Orientering - 162/76/0/0 Klaus Hanssens vei 17, nytt bygg - Boligformål
03.07.2025 Rammetillatelse på vilkår, 162/76, Klaus Hanssens vei 17
03.07.2025 Tilbakemelding
03.07.2025 Utfyllende kommentarer fra KHV15C
27.06.2025 Tilleggsopplysninger - 162/76/0/0 Klaus Hanssens vei 17, nytt bygg - Boligformål
18.06.2025 E-postkorrespondanse vedrørende møte - 162/76/0/0 Klaus Hanssens vei 17, nytt bygg - Boligformål
17.06.2025 Spørsmål til sak - 162/76/0/0 Klaus Hanssens vei 17, nytt bygg - Boligformål
17.06.2025 Behov for tilleggsopplysning og informasjon om saken deres
13.06.2025 Årstad. Gnr 162 Bnr 76, Klaus Hanssens vei 17. Dispensasjon fra byggegrense, nybygg bolig. Vedtak fra Bymiljøetaten
12.06.2025 Vedr. 25-138980-2 - Svar - Høring - Klaus Hanssens vei 17 - Gnr 162 bnr 76 - Bergen kommune
12.06.2025 Uttale om dispensasjoner vedrørende plankrav og støy - 162/76/0/0 Klaus Hanssens vei 17, nytt bygg - Boligformål
10.06.2025 2025/153603-3 - Intern høring, BYGG-2025/12395, Klaus Hanssens vei 17, nybygg bolig- Svar fra Bymiljøetaten v/Natur- og miljøforvaltning
02.06.2025 Byantikvarens tilbakemelding BYGG-2025/12395, Klaus Hanssens vei 17, nybygg bolig
23.05.2025 Intern høring BME, 162/76, Klaus Hanssens vei 17, nybygg bolig, behov for dispensasjon fra vegloven
21.05.2025 Søknad om dispensasjon fra Vegloven - 162/76/0/0 Klaus Hanssens vei 17, nytt bygg - Boligformål
21.05.2025 Tilleggsopplysninger- 162/76/0/0 Klaus Hanssens vei 17, nytt bygg - Boligformål
16.05.2025 Behov for tilleggsopplysninger, 162/76, Klaus Hanssens vei 17, nybygg bolig
15.05.2025 Uttalelse høring- 162/76/0/0 Klaus Hanssens vei 17, nytt bygg - Boligformål
15.05.2025 Høring vedrørende nybygg bolig med 4 boenheter- 162/76/0/0 Klaus Hanssens vei 17, nytt bygg - Boligformål
15.05.2025 Intern høring, BYGG-2025/12395, Klaus Hanssens vei 17, nybygg bolig
15.05.2025 Klaus Hanssens vei 17, anmodning om uttalelse, SF, VFK, SV, LT
14.04.2025 Bekreftelse på mottatt søknad - 162/76/0/0 Klaus Hanssens vei 17, nytt bygg - Boligformål
11.04.2025 Klaus Hanssens vei 17 Søknad om rammetillatelse 162/76