NewConstruction Rammetillatelse Leilighetsbygg

Nytt leilighetsbygg med 4 boenheter i Kulehagen, Bryne

📍 Kulehagen 34 , 4341 BRYNE

Nøkkelinfo

Sakstype
Nybygg
Bygningstype
Leilighetsbygg
Bruksareal
254 m²
Boenheter
4
Kommune
Klepp
Fylke
Rogaland
Gnr / Bnr
18 / 638
Saksnummer
26/00900
Fase
Rammetillatelse

Om byggesaken

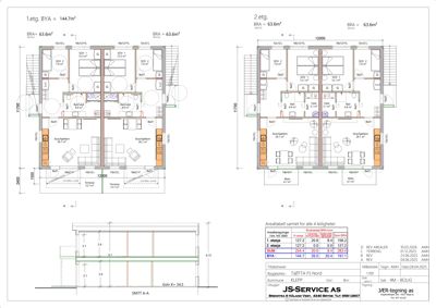
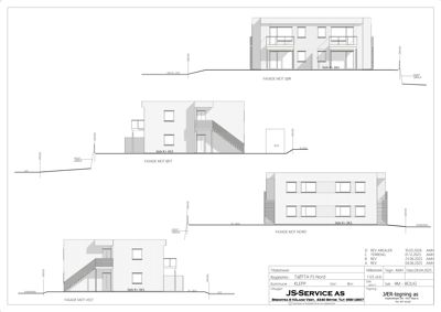
Nytt leilighetsbygg i to etasjer med flatt tak, totalt 254,4 m² BRA, fordelt på 4 boenheter. Bygget har et bebygd areal på 191 m² og inkluderer tilhørende boder. Hver boenhet har private uteplasser på minimum 30 m², og bygget er plassert i henhold til reguleringsplan med gesimshøyde på maks 6,5 meter. Bygget er prosjektert med hensyn til støy fra nærliggende vei, med anbefalte støyskjermingstiltak for utearealer og fasader. Bygget har tekniske installasjoner som varmeanlegg, ventilasjon og sanitæranlegg, og det er planlagt bruk av materialer som tre til boder og flatt tak. Prosjektet inkluderer også krav til ferdigattest og oppfølging av rekkefølgekrav i reguleringsplanen.

Produkter og materialer

Fasade Tre kledning

🧱 Tre

Boder med tre fasade og flatt tak

Tre kledning på boder til leilighetene

Trapper Innvendige trapper

Antall: 2

Innvendige trapper mellom etasjer i leilighetsbygg

Membraner Membraner i våtrom

Membraner i våtrom utført av J S SERVICE JAN SVELA AS

Vanntetting i våtrom i leilighetene

Tømrer Tømrerarbeid og trekonstruksjoner

🧱 Tre

Tømrerarbeid utført av J S SERVICE JAN SVELA AS

Trekonstruksjoner for bærende og ikke-bærende konstruksjoner

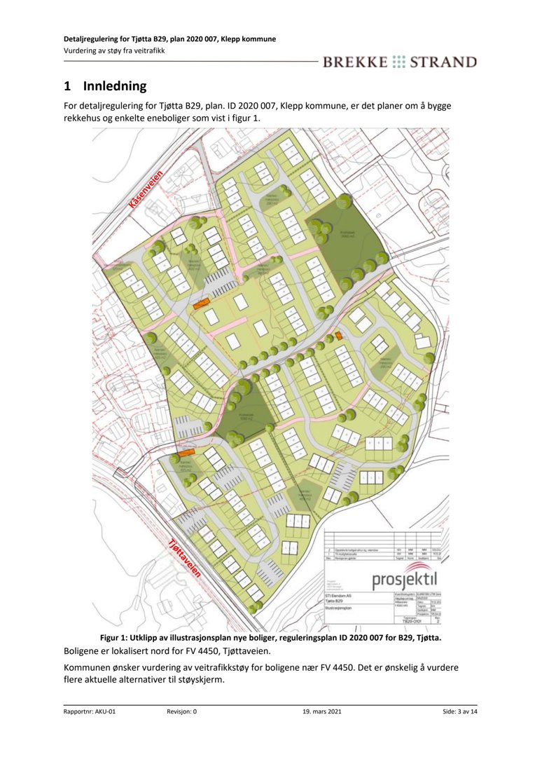
Annet Støyskjerming

🧱 Tre eller glass

Støyskjerming mot vei med 1,8 m høy skjerm, ca. 96 m lang

Støyskjerming for å oppnå tilfredsstillende lydnivå på utearealer

Dører Ytterdører og balkongdører

Antall: 8

Ytterdører og dører til balkonger/terrasser for leilighetene

Gulv

Gulv i oppholdsrom og bad iht. standard boligkrav

Gulvbelegg og fliser i leilighetene

VVS Innvendig sanitæranlegg

Innvendig sanitæranlegg prosjektert og utført av PS HÅLAND RØR AS

Sanitæranlegg for leilighetsbygg

VVS Utvendig sanitæranlegg

Utvendig sanitæranlegg utført av JS MASKIN JAN SVELA AS

Utvendig sanitæranlegg for tilknytning til offentlig vann og avløp

Isolasjon

Isolasjon iht. TEK17 krav for boligbygg

Isolasjon for vegger, tak og gulv i leilighetsbygg

Terrasse Privat uteplass og terrasse

Antall: 4

Minimum 30 m² uteplass per boenhet

Privat uteplass for hver leilighet på terreng og altan

Tak Flatt tak

Antall: 1

Flatt tak på leilighetsbygg og boder

Rekkverk Altanrekkverk

Antall: 4

Rekkverk på altaner og terrasser for leilighetene

Elektro Ventilasjonsanlegg

Ventilasjonsanlegg prosjektert og utført av J S SERVICE JAN SVELA AS

Ventilasjonsanlegg for leilighetsbygg

Grunnarbeid

Grunnarbeid og planering utført av JS MASKIN JAN SVELA AS

Grunnarbeid for fundamentering og uteområder

Vinduer Fasadevindu

🧱 3-lags energiglass

Antall: 14

Fasadevinduer for leilighetsbygg, inkludert soverom og oppholdsrom

VVS Varmeanlegg

Varmeanlegg prosjektert og utført av PS HÅLAND RØR AS

Varmeanlegg for leilighetsbygg

Maling

Innvendig maling og overflatebehandling

Maling av vegger og tak i leilighetene

Betong Forskaling, armering og utstøping

Betongarbeider utført av J S SERVICE JAN SVELA AS

Betongkonstruksjoner for fundament og bærende elementer

Fasader

Boder

Sør
Materiale
Tre
Taktype
Flatt tak
Høyde
2.9 m
Vinduer
0
Dører
0
Synlige etasjer
1
Øst
Materiale
Tre
Taktype
Flatt tak
Høyde
2.9 m
Vinduer
0
Dører
0
Synlige etasjer
1
Nord
Materiale
Tre
Taktype
Flatt tak
Høyde
2.9 m
Vinduer
2
Dører
2
Synlige etasjer
1
Vest
Materiale
Tre
Taktype
Flatt tak
Høyde
2.9 m
Vinduer
0
Dører
0
Synlige etasjer
1

Hendelser

16.04.2026 26/00900-4 Oppheving av tillatelse - Leilighetsbygg - gnr/bnr 18/638
14.04.2026 26/00900-2 Tillatelse med ansvarsrett - Leilighetsbygg - gnr/bnr 18/638
26.03.2026 26/00900-1 Ett-trinns søknad - Nytt bygg - boligformål - gnr/bnr 18/638