NewConstruction Soeknad Leilighetsbygg

Ny 4-mannsbolig med garasjekjeller i Markusveien 4C, Drammen

📍 Markusveien 4C , 3041 DRAMMEN

Nøkkelinfo

Sakstype
Nybygg
Bygningstype
Leilighetsbygg
Bruksareal
297 m²
Boenheter
4
Kommune
Drammen
Fylke
Buskerud
Gnr / Bnr
20 / 227
Saksnummer
26/08114
Fase
Søknad

Om byggesaken

Ny 4-mannsbolig på ca. 297 m² BRA med underliggende garasjekjeller i Markusveien 4C, Drammen. Bygget består av fire selvstendige boenheter, hver på ca. 91,6 m², med 3 soverom, bad, WC, åpen stue/kjøkken og private terrasser på ca. 28 m². Garasjekjelleren inneholder 8 biloppstillingsplasser, hvorav 4 er i lukket garasje, samt sportsboder og tekniske rom. Bygget har pulttak og fasader i tre med variert kledning og store vindusflater for godt lysinnslipp og utsikt. Tomten er skrånende med terrengtilpasning via inntrukket parkeringskjeller, støttemurer og ny adkomstvei. Overvannshåndtering er prosjektert med fordrøyningsløsninger, drensgrøfter og infiltrasjonsgrøft. Det foreligger dispensasjon for fire boenheter i et område regulert for tomannsbolig. Adkomstvei og avkjørsel er godkjent med vilkår. Nabomerknader gjelder blant annet trafikk, støy og avstand til nabogrense.

Produkter og materialer

Ventilasjon Ventilasjonssystem

Planlagt ventilasjon iht. TEK17 krav

Ventilasjonssystem for boligene i henhold til gjeldende forskrifter

Terrasse Privat terrasse og balkong

Antall: 8

Terrasser på ca. 28 m² og balkonger på ca. 5 m²

Private uteplasser tilknyttet hver boenhet, inkludert takoverbygg på terrasser

Elektro Løfteplattform/heis

Antall: 1

Løfteplattform/heis i trapperom

Elektrisk løfteplattform/heis for tilgjengelighet mellom etasjer

Dører Terrassedør og balkongdør

🧱 Tre

Antall: 8

Dører til terrasser og balkonger, inkludert inngangsdører

Terrassedører i tre til private uteplasser og balkonger

Betong Garasjekjeller og støttemurer

Betongkonstruksjoner for garasjekjeller og støttemurer

Betongarbeider for parkeringskjeller og støttemurer mot vei og terreng

Vinduer Fasadevindu

🧱 Tre med store glassflater

Antall: 14

Store vindusflater for godt lysinnslipp og utsikt

Fasadevinduer i tre med god lysinnslipp til stue, kjøkken og soverom

Grunnarbeid Terrengbearbeiding og sprengning

Sprengning for garasjekjeller og terrengtilpasning

Sprengning og terrengbearbeiding i skrånende tomt for garasjekjeller og vei

Tak Pulttak

Pulttak med god funksjon for avrenning

Pulttak som ligger ca. 3 meter over terreng på øvre del av tomten

VVS Overvannshåndtering

Fordrøyningsmagasin, drensgrøfter, infiltrasjonsgrøft og sluk

Tiltak for håndtering av overvann på egen tomt i henhold til kommunale krav

Maling Innvendig og utvendig maling

Maling av fasader og innvendige flater

Maling av trepanel utvendig og vegger innvendig

Garasjeport Lukket garasjeport

Antall: 4

Garasjeplasser i lukket garasjekjeller

Garasjeporter til fire lukkede biloppstillingsplasser i kjeller

Gulv Innvendige gulvflater

Standard gulvflater i boligene

Innvendige gulv i boenhetene, antatt parkett eller fliser

Isolasjon Bygningsisolasjon

Isolasjon i vegger, tak og gulv iht. TEK17

Isolasjon for energieffektivitet og komfort i boligene

Rekkverk Terrasserekkverk

Rekkverk på terrasser og balkonger iht. forskrift

Sikring av terrasser og balkonger med rekkverk

Trapper Innvendig trapp og trapperom

Antall: 2

Trapperom med heis/løfteplattform

Innvendige trapper og heis for adkomst mellom etasjer

Fasade Kledning

🧱 Tre, stående og liggende kledning i to farger

Variert bruk av stående og liggende trepanel i to farger

Fasader med trepanel som gir moderne og variert uttrykk

Grunnarbeid Adkomstvei og snuplass

Ny adkomstvei med snuplass godkjent av kommunen

Opparbeidelse av ny adkomstvei med krav til bredde, helning og snuplass

VVS Sanitærinstallasjoner og vannmåler

Antall: 4

Vannmåler i hver boenhet, tilkobling til offentlig vann og avløp

Sanitærinstallasjoner med vannmåler for hver boenhet og tilkobling til kommunalt nett

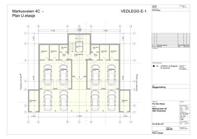
Plantegning

Boenhet 3 91.6 m²

Etasje 2 91.6 m²

Rom Areal Vinduer Dører
Stue/Kjøk 201 39.4 m² 1 2
Sov 2 202 7.7 m² 1 1
Sov 3 203 7.6 m² 1 1
Bad 204 7.2 m² 0 1
WC 205 1.5 m² 0 1
Terrasse 206 28.4 m² 0 1
Trapperom/heis 207 23.3 m² 0 0

Garasje 273.0 m²

Etasje 0 273.0 m²

Rom Areal Vinduer Dører
Sportsbod U01 6.1 m² 0 1
Sportsbod U02 6.1 m² 0 1
Tekn Rom U03 2.5 m² 0 1
Sluse U04 2.7 m² 0 1
Trapperom/heis U05 23.3 m² 0 0
Tekn Rom U06 2.5 m² 0 1
Sportsbod U07 6.1 m² 0 1
Sportsbod U08 6.1 m² 0 1
Parkering U09 20.0 m² 0 0
Parkering U10 20.0 m² 0 0
Parkering U11 20.0 m² 0 0
Parkering U12 20.0 m² 0 0
Renovasjon U13 8.9 m² 0 1
Bod felles U14 8.9 m² 0 1

Enebolig 287.3 m²

Etasje 1 287.3 m²

Rom Areal Vinduer Dører
Stue/Kjøk 101 39.4 m² 1 2
Terrasse 102 28.4 m² 1 0
Sov 1 103 12.4 m² 1 1
Sov 2 104 7.7 m² 1 1
Sov 3 105 7.6 m² 1 1
Bad 106 7.2 m² 0 1
WC 107 1.5 m² 0 1
Trapperom/heis 108 23.3 m² 0 2
Markterrasse 109 13.6 m² 1 0
Stue/Kjøk 110 39.4 m² 1 2
Terrasse 111 28.4 m² 1 0
Sov 1 112 12.4 m² 1 1
Sov 2 113 7.7 m² 1 1
Sov 3 114 7.6 m² 1 1
Bad 115 7.2 m² 0 1
WC 116 1.5 m² 0 1

Fasader

Enebolig

Nord
Materiale
Tre
Høyde
2.2 m
Vinduer
0
Dører
2
Synlige etasjer
1
Sør
Materiale
Tre
Høyde
2.2 m
Vinduer
0
Dører
2
Synlige etasjer
1
Vest
Materiale
Tre
Taktype
Flatt tak
Høyde
8.0 m
Vinduer
4
Dører
2
Balkonger
2
Synlige etasjer
2
Øst
Materiale
Tre
Taktype
Flatt tak
Høyde
8.0 m
Vinduer
4
Dører
2
Balkonger
2
Synlige etasjer
2

Hendelser

15.04.2026 Markusveien 4C - Kopi: Etablering av adkomstvei ved oppføring av firemannsbolig - Spørsmål om mulig kulturminne - Svar
09.04.2026 Markusveien 4C, notat vedrørende områdestabilitet og overvannshåndtering
27.03.2026 Markusveien 4C, spørsmål om utreding av mulig kulturminne
26.03.2026 Markusveien 4C, Ber om at vedlagte punkter blir hensyntatt og lagret ifm behandling av rammesøknad for oppføring av bygg
25.03.2026 Markusveien 4C, ny henvendelse vedrørende innsendt nabomerknad
17.03.2026 Markusveien 4C, melding om mottatt søknad
17.03.2026 Markusveien 4C Søknad om rammetillatelse 20/227
25.02.2026 Markusveien 4C, henvendelse vedrørende innsendt nabomerknad
25.02.2026 Markusveien 4C, tilbakemelding på henvendelse vedrørende innsendt nabomerknad
20.02.2026 Markusveien 4, Merknad til nabovarsel
12.02.2026 Markusveien 4C, svar på nabovarsel
09.02.2026 Markusveien 4C, svar på nabovarsel