NewConstruction Igangsettingstillatelse Leilighetsbygg

Ombygging og oppdeling til fire leiligheter i Miltzowsgata 6, Voss

📍 Miltzows gata 6 , 5700 VOSS

Nøkkelinfo

Sakstype
Nybygg
Bygningstype
Leilighetsbygg
Bruksareal
360 m²
Boenheter
4
Kommune
Voss
Fylke
Vestland
Gnr / Bnr
255 / 185
Saksnummer
2025/8422
Fase
Igangsettingstillatelse

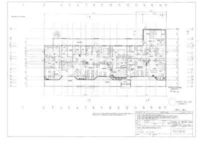
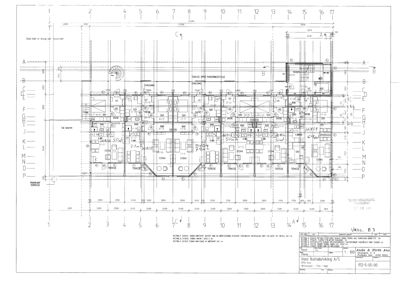
Om byggesaken

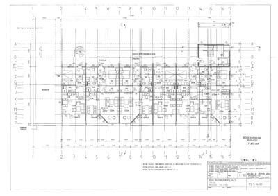
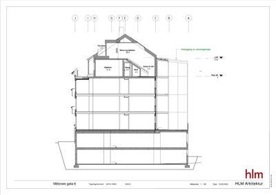
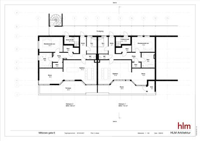
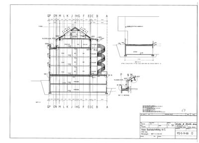
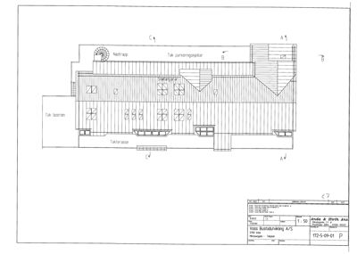
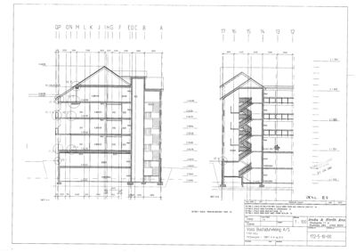
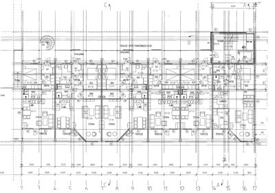
Eksisterende stor leilighet i 4. etasje og loft i boligbygg i Miltzowsgata 6, Voss, på over 360 m², bygges om til fire separate boenheter. Prosjektet inkluderer to nye takopplett med integrert terrasse, justering av takvinduer, vinduer og dører langs svalgang, samt innbygging og skjerming av eksisterende rømningstrapp for brannsikkerhet. Innvendig etableres nye planløsninger, brannceller, lydskiller, våtrom og sprinkleranlegg. Fasaden får kledning som matcher eksisterende, og taket tekkes med takplater i harmonerende farge. Tiltaket innebærer fortetting i eksisterende boligstruktur uten endring i byggets høyde eller utnyttelse. Det er søkt dispensasjon for felles uteoppholdsareal og enkelte branntekniske krav. Prosjektet har godkjent rammetillatelse og igangsettingsløyve.

Produkter og materialer

Ventilasjon Ventilasjonsanlegg og kanaler

🧱 Ubrennbar isolasjon og brannisolerte kanaler

Ventilasjonsanlegg med brann- og røyksikring iht. byggdetaljblad 520.352

Ventilasjon med brannsikring i nye boenheter

Dører Dører langs svalgang og innvendige dører

Antall: 15

Justert plassering av dører langs svalgang, nye dører i boenheter og branncelleinndeling

Dører for adkomst og brannskille i nye boenheter

Isolasjon Ubrennbar isolasjon

🧱 A2-s1,d0 isolasjon

Ubrennbar isolasjon i takkonstruksjoner og hulrom

Isolasjon med brannmotstand i nye konstruksjoner

Brannvern Sprinkleranlegg

Antall: 4

Sprinkleranlegg installeres i alle nye boenheter i plan 4 og loft

Brannsikkerhet med sprinkling i nye boenheter

Vinduer Takvindu og fasadevindu

Antall: 12

Justert plassering av takvinduer og fasadevindu langs svalgang tilpasset ny planløsning

Vinduer tilpasset ny planløsning i loft og 4. etasje

Betong Eksisterende bæresystem i betong

Eksisterende bæresystem i plasstøpt betong opp til 3. etasje

Ingen endring i eksisterende betongkonstruksjoner

Fasade Takopplett med integrert terrasse

🧱 Kledning lik eksisterende, takplater i harmonerende farge

Antall: 2

Takopplett plassert på fasade sør, kotehøyde +69,5, tilpasset eksisterende fasadeinndeling

Nye takopplett med terrasse på tak for fire nye boenheter

Rekkverk Rekkverk på takterrasse og svalgang

🧱 Ubrennbar/begrenset brennbar materiale

Rekkverk med brannklasse B-s3,d0

Sikkerhetsrekkverk på takterrasse og svalgang

Elektro Brannalarmanlegg kategori 2

Heldekkende brannalarmanlegg med optiske og akustiske alarmorganer, varsling til nødalarmsentral

Brannalarm i hele bygget inkludert garasje

Tømrer Montering av trekonstruksjoner

Utførelse av trekonstruksjoner i loft og takopplett

Tømrerarbeid for nye trekonstruksjoner

Stål Brannisolert stål i plan 4 og loft

Bæresystem i brannisolert stål og trekonstruksjoner i plan 4 og loft

Bæresystem i stål og tre i øvre etasjer

Tak Taktekking

🧱 Takplater i farge som harmonerer med eksisterende tak

Nytt taktekke på takopplett

Taktekking på nye takopplett

Gulv Overflater i nye boenheter

🧱 Dfl-s1 [G] gulvmaterialer

Gulv med brann- og lydkrav i nye boenheter

Gulvbelegg i nye boenheter

Grunnarbeid Ingen endring i grunnarbeid

Ingen nye grunnarbeider da bygg er eksisterende

Ingen nye grunnarbeider

Brannvern Branncellevegger og skjermvegger

🧱 EI 60 A2-s1,d0 vegger, EI 30 glassfelt mot rømningsvei

Branncellebegrensende konstruksjoner mellom boenheter og mot utvendig trapp

Branncelleinndeling med skjermvegger mot rømningstrapp

Tømrer Innvendige planløsninger og lydskiller

Nye planløsninger, lydskiller og våtrom i fire boenheter

Innvendige konstruksjoner for oppdeling og lydisolering

Fasader

Eksisterende bygg (Leilighet)

Sør
Materiale
Betong
Taktype
Saltak
Vinduer
12
Dører
1
Synlige etasjer
4

Enebolig

Vest
Materiale
Platemontasje
Taktype
Saltak
Høyde
6.5 m
Mønehøyde
8.2 m
Vinduer
10
Dører
1
Balkonger
3
Synlige etasjer
3
Sør
Vinduer
12
Dører
0
Synlige etasjer
4
Nord
Taktype
Saltak
Vinduer
12
Dører
2
Balkonger
1
Synlige etasjer
2
Øst
Materiale
Tre
Taktype
Saltak
Vinduer
10
Dører
1
Balkonger
3
Synlige etasjer
3

Borettslag

Sør
Taktype
Flatt tak
Vinduer
24
Dører
0
Balkonger
12
Synlige etasjer
4

Rekkehus

Nord
Materiale
Betong
Taktype
Flatt tak
Vinduer
16
Dører
0
Balkonger
12
Synlige etasjer
4

Hendelser

16.04.2026 Igangsetjingsløyve og endring av tiltakshavar - endring av bygg innvendig/utvendig/bueiningar - gbnr. 255/185 - Miltzows gata 6
14.04.2026 Søknad om igangsettingsløyve - gbnr. 255/185 - Miltzows gata 6
13.04.2026 Supplering av søknad - endring av bygg innvendig/utvendig/bueiningar - gbnr. 255/185 - Miltzowsgata 6
02.02.2026 Rammeløyve – endring av bygg innvendig/utvendig/bueiningar - gbnr. 255/185 - Miltzows gata 6
29.10.2025 Søknad på uttale - Endring av bygg innvendig/utvendig/bueiningar - gbnr. 255/185 - Miltzows gata 6
22.09.2025 Søknad - endring av bygg innvendig/utvendig/bueiningar - gbnr. 255/185 - Miltzowsgata 6
22.09.2025 Stadfesting av motteken søknad - endring av bygg innvendig/utvendig/bueiningar - gbnr. 255/185 - Miltzowsgata 6