NewConstruction Igangsettingstillatelse Leilighetsbygg

Riving og nybygg av 40 boenheter i Møllendalsveien 63, Bergen

📍 Møllendalsveien 63 , 5009 BERGEN

Nøkkelinfo

Sakstype
Nybygg
Bygningstype
Leilighetsbygg
Bruksareal
4,200 m²
Boenheter
40
Kommune
Bergen
Fylke
Vestland
Gnr / Bnr
163 / 577
Saksnummer
BYGG-2025/13194
Fase
Igangsettingstillatelse

Om byggesaken

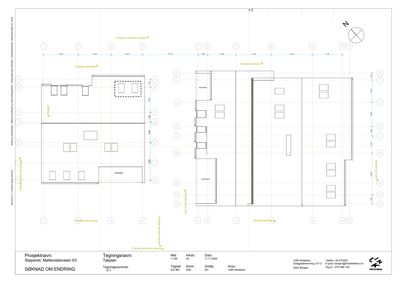
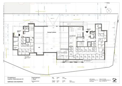
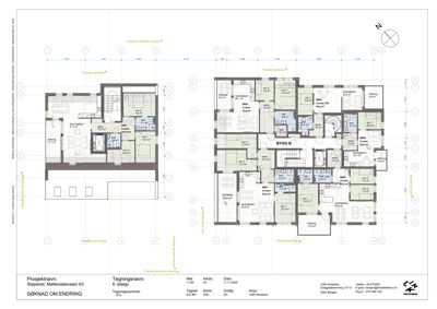
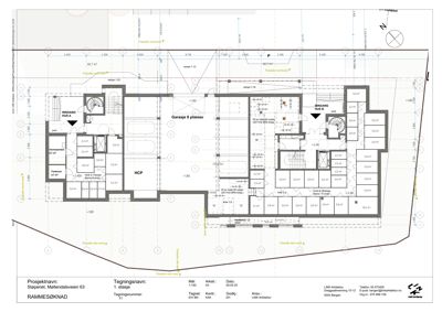
Prosjektet omfatter riving av eksisterende nærings- og lagerbygg på ca. 1860 m² BRA og oppføring av to nye boligbygg med totalt 40 boenheter fordelt på 6-7 etasjer. Byggene har felles sokkeletasje med garasje, boder og tekniske rom, og felles uteareal mellom byggene. Bygg A og B har skråtak og fasader i skjermtegl, med balkonger og takterrasser. Fundamenteringen skjer med peler til fjell, og det er gjennomført omfattende geotekniske undersøkelser. Området er flomutsatt, og flomsikring ivaretas med flommur, hevet gulv og tekniske tiltak. Det er etablert moderne renovasjonsløsning med mobilt bossug og nedgravde containere. Miljøkartlegging viser forekomst av helse- og miljøfarlige stoffer i eksisterende bygg som håndteres ved riving. Prosjektet inkluderer også detaljert plan for vann, avløp, overvann, energiforsyning og uteområder med fokus på solforhold, tilgjengelighet og biologisk mangfold.

Produkter og materialer

VVS Dusjarmatur

🧱 Dusjarmatur i garderobe 2. etasje

Antall: 2

Dusjarmaturer i garderober

Sanitærutstyr for boligbygg

Utendørs Beplantning og pollinatorvennlige planter

🧱 Stedegne pollinatorvennlige planter, frukttrær og bærbusker

Beplantning i felles uteoppholdsareal og langs elvekant

Uteområder med beplantning

Utendørs Kajakkbod

🧱 Kajakkbod for beboere

Antall: 1

Kajakkbod plassert ved elveutløpet

Uteanlegg for rekreasjon

Elektro Panelovner

🧱 Panelovner i loft og kontorer

Antall: 22

Panelovner 300-1200 W i loft og 2. etasje

Elektriske varmeovner for boligbygg

Grunnarbeid Geotekniske grunnundersøkelser

14 totalsonderinger, 1 trykksondering, supplerende undersøkelser for forurenset grunn

Geotekniske grunnundersøkelser for vurdering av grunnforhold og fundamentering

Trapper Rømningstrapp i galvanisert stål

🧱 Galvanisert stål, 18 trinn, håndløper og rekkverk

Antall: 1

Rømningstrapp mellom 1. og 2. etasje

Rømningstrapp for boligbygg

Elektro Kabelstige og lysarmatur

🧱 Kabelstige i loft, vegghengte armaturer i trappesjakt

Kabelstige ca. 5 lm, 7 vegghengte armaturer, ca. 30 nødlys

Elektroinstallasjoner for boligbygg

Garasjeport Isolerte rulleporter

🧱 Isolerte metallgarasjeporter med PUR-skum

Antall: 6

Garasjeporter i tilbygg/garasjedel

Garasjeporter for garasjeanlegg

Brannvern Brannalarmsentral

🧱 Honeywell brannalarmsystem

Antall: 1

Brannalarmsentral med brannmeldere i hele bygget

Brannalarmsystem for boligbygg

VVS Fjernvarmeanlegg

Tilknytning til fjernvarme med vannbåren varme i gulv

Energiforsyning for boligbygg

Tak Tegltakpanner

🧱 Tegltakpanner i rødbrun farge fra Actua eller Datura

Tegltakpanner med overlapp, takvinkler minimum 25-35 grader

Taktekking for boligbygg

Betong Betongkonstruksjoner

🧱 250 mm betong etasjeskiller, bærende vegger, bunnplate

Massive etasjeskillere og vegger av betong, bunnplate støpt sammenhengende med vegger

Bærende konstruksjoner i boligbygg

Fasade Skjermtegl fasadekledning

🧱 Wienerberger URBAN skjermtegl i brunrød farge Christianshavn

Skjermtegl fasadekledning med variasjon i nyanser

Fasadebekledning for boligbygg

Betong Pelefundamentering

🧱 P270 mm betongpeler med minimum 50 mm overdekning

Pelefundamentering anbefalt til fjell, betongpeler kan ta horisontallaster, anbefalt over stålkjernepeler

Pelefundamentering for nye boligbygg

Terrasse Belegningsstein gatetun

🧱 Saget storgatestein og rulleskift med betongkanter

Belegningsstein i gatetun og gangveier

Uteområder med belegningsstein

VVS Varmtvannsberedere

🧱 Oso varmtvannsberedere ca. 200 L

Antall: 3

Varmtvannsberedere i 1. etasje, kan ombrukes med utskifting av el-patron

Varmtvannsberedere for boligbygg

Dører Innerdører i tre

🧱 Diverse innerdører, noen med lyd- og brannkrav B30

Antall: 19

Innerdører i kontor- og boligområder, noen lydisolerte

Innerdører for boligbygg

Vinduer 3-lags energiglass vinduer

🧱 Nordan vinduer fra 2003, hvite, 2-lags glass, mulighet for ombruk

Antall: 26

Vinduer med karmmål ca. 1200x1100 mm, vurdert for ombruk eller sanering

Vinduer for boligbygg

Fasade Glassrekkverk balkonger

🧱 Herdet glassrekkverk Q RAIL eller tilsvarende

Antall: 24

Glassrekkverk på balkonger og takterrasser

Rekkverk for balkonger og takterrasser

Dører Foldedører i tre

🧱 Foldedører i tre i møterom og spiserom

Antall: 2

Foldedører med mål opptil 700x242 cm

Foldedører for boligbygg

Dører Ytterdør i stål med trådglass

🧱 Gjesdal ytterdør med trådglass, isolert

Antall: 1

Ytterdør ved inngangsparti

Ytterdør for boligbygg

Terrasse Tredekke uteområder

🧱 Tredekke på uteområder mot elva

Antall: 362

Tredekke på uteoppholdsareal mot elva

Uteområder med tredekke

Fasade Aluminiumskasett og beslag

🧱 Aluminiumskasett og hjørnebeslag i RAL 8017 sjokoladebrun

Aluminiumskasett, beslag, renner og nedløp i RAL 8017

Fasadebeslag og detaljer

Ventilasjon Ventilasjonsaggregat

🧱 Ventilasjonsaggregat på loft og i 2. etasje

Antall: 1

Ventilasjonsaggregat med ukjent kapasitet, dokumentasjon må følge

Ventilasjonsanlegg for boligbygg

VVS Utslagsvask og håndvask

🧱 Utslagsvasker i metall og porselen, håndvask med armatur

Antall: 10

Diverse vasker i 1. og 2. etasje

Sanitærutstyr for boligbygg

Fasade Kledning ved balkonger og detaljer

🧱 Kledning i RAL 8022 og eik/superwood

Kledning ved balkonger, postkasser og kajakkbod

Fasade- og detaljkledning

Brannvern Brannskap og håndslukkere

🧱 Brannskap med slange og pulverapparater

Antall: 7

Brannskap i 1. og 2. etasje, pulverapparater i 1. etasje

Brannvernutstyr for boligbygg

Fasader

Bygg B

Nordøst
Materiale
Betong
Taktype
Saltak
Høyde
21.8 m
Mønehøyde
24.9 m
Vinduer
14
Dører
1
Synlige etasjer
5
SørVest
Materiale
Betong
Taktype
Saltak
Høyde
21.8 m
Mønehøyde
24.9 m
Vinduer
14
Dører
1
Synlige etasjer
5
Nordvest
Materiale
Betong
Taktype
Flatt tak
Høyde
24.9 m
Mønehøyde
21.9 m
Vinduer
12
Dører
1
Balkonger
12
Synlige etasjer
6
Ukjent
Materiale
Glass
Taktype
Flatt tak
Høyde
24.9 m
Vinduer
12
Dører
0
Synlige etasjer
5
Sørøst
Materiale
Betong
Taktype
Flatt tak
Høyde
24.9 m
Mønehøyde
24.9 m
Vinduer
24
Dører
0
Balkonger
12
Synlige etasjer
6

Hendelser

10.04.2026 Mangelbrev i tilknytning IG-3
10.04.2026 Redegjørelse - 163/577/0/0 Møllendalsveien 63 - Støperiet, riving og nybygg av 40 boenheter fordelt på to bygg
08.04.2026 Vedrørende IG-3 - behov for tilleggsopplysninger
25.03.2026 Møllendalsveien 63 Supplering av søknad 163/577
24.03.2026 Møllendalsveien 63 - Støperiet, foreløpig tilbakemelding på søknad om IG-3
05.03.2026 Ubw ordre 20690018 Endring oppdeling av boenhet, 1 ny boenhet, fasadeendringer og dispensasjon.
04.03.2026 Ubw ordre 20689918 Kreditnota mot faktura 526132378 ordre 20689918.
26.02.2026 Spørsmål til faktura- 163/577/0/0 Møllendalsveien 63 - Støperiet, riving og nybygg av 40 boenheter fordelt på to bygg
13.02.2026 Fakturagrunnlag - Endring (1) 163/577, Møllendalsveien 63
13.02.2026 Ubw ordre 20688998 Fasadeendringer utvendig inkludert tak, 2 bygninger fasade og tak.
06.02.2026 Delvis tillatelse til endring (1) av rammetillatelse: 163/577, Møllendalsveien 63
06.02.2026 Sjekkliste - 163/577 Møllendalsveien 63, Endring 1
28.01.2026 Kommentar til sak - 163/577/0/0 Møllendalsveien 63 - Støperiet, riving og nybygg av 40 boenheter fordelt på to bygg
28.01.2026 Til orientering om status i sak
13.01.2026 Bergenhus. Gnr 163 bnr 577. Møllendalsveien 63. Støperiet. Endring 2 - flytting av nedkast. Purring
12.01.2026 Innspill fra byarkitekten- 163/577/0/0 Møllendalsveien 63 - Støperiet, riving og nybygg av 40 boenheter fordelt på to bygg
09.01.2026 Gebyr - 163/577, Endring 6
09.01.2026 ubw ordre 20685398/endring
06.01.2026 Justert RTP og positiv uttale fra BIR
18.12.2025 Ber om RPT fra BIR - 163/577/0/0 Møllendalsveien 63 - Støperiet, riving og nybygg av 40 boenheter fordelt på to bygg
18.12.2025 Tillatelse til endring (2) - 163/577, Møllendalsveien 63
01.12.2025 Møllendalsveien 63 Supplering av søknad 163/577
25.11.2025 Møllendalsveien 63 Søknad om endring av gitt tillatelse eller godkjenning 163/577
24.11.2025 Møllendalsveien 63 - Støperiet, anmodning om uttalelse vedr. antall og utforming av takterrasser (ny plan)
24.11.2025 Møllendalsveien 63 - Støperiet, foreløpig tilbakemelding på søknad
18.11.2025 Fakturagrunnlag
18.11.2025 Ubw ordre 20681922
11.11.2025 Møllendalsveien 63 Søknad om endring av gitt tillatelse eller godkjenning 163/577
16.10.2025 Ber om redegjørelse for uavhengig kontroll- 163/577/0/0 Møllendalsveien 63 - Støperiet, riving og nybygg av 40 boenheter fordelt på to bygg
16.10.2025 Igangsettingstillatelse 163/577 Møllendalsveien 63
14.10.2025 Ønsker vedtak på epost til søker- 163/577/0/0 Møllendalsveien 63 - Støperiet, riving og nybygg av 40 boenheter fordelt på to bygg
23.09.2025 Møllendalsveien 63 Søknad om igangsettingstillatelse 163/577
03.09.2025 Referat fra Byggesaksforum
25.08.2025 Igangsettingstillatelse (01) 163/577 Møllendalsveien 63
21.08.2025 Spørsmål om status- 163/577/0/0 Møllendalsveien 63 - Støperiet, riving og nybygg av 40 boenheter fordelt på to bygg
11.08.2025 Tilbalemelding- 163/577/0/0 Møllendalsveien 63 - Støperiet, riving og nybygg av 40 boenheter fordelt på to bygg
09.08.2025 Møllendalsveien 63 Søknad om igangsettingstillatelse 163/577
06.08.2025 ubw ordre 20674799
10.07.2025 Vedtak på e-post til søker - 163/577/0/0 Møllendalsveien 63 - Støperiet, riving og nybygg av 40 boenheter fordelt på to bygg
09.07.2025 Rammetillatelse 163/577 Møllendalsveien 63
07.07.2025 Situasjonsplan
30.06.2025 Ber om situasjonsplan
26.06.2025 Møllendalsveien 63 Supplering av søknad 163/577
24.06.2025 Ber om status i sak- 163/577/0/0 Møllendalsveien 63 - Støperiet, riving og nybygg av 40 boenheter fordelt på to bygg
20.05.2025 Bekreftelse på mottatt søknad - 163/577/0/0 Møllendalsveien 63 - Støperiet, riving og nybygg av 40 boenheter fordelt på to bygg
16.05.2025 Søknad - 163/577/0/0 Møllendalsveien 63 - Støperiet, riving og nybygg av 40 boenheter fordelt på to bygg