NewConstruction UnderBehandling Leilighetsbygg

Nybygg med 3 leilighetsbygg og felles parkeringskjeller i Odalsveien 44A, Slemmestad

📍 Odalsveien 42A , 3470 SLEMMESTAD

Nøkkelinfo

Sakstype
Nybygg
Bygningstype
Leilighetsbygg
Bruksareal
3,536 m²
Boenheter
22
Kommune
Asker
Fylke
Akershus
Gnr / Bnr
240 / 115
Saksnummer
22/1153
Fase
Under behandling

Om byggesaken

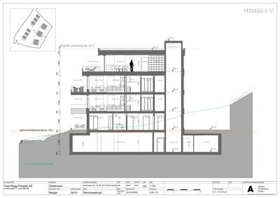
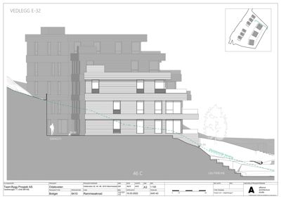
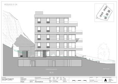
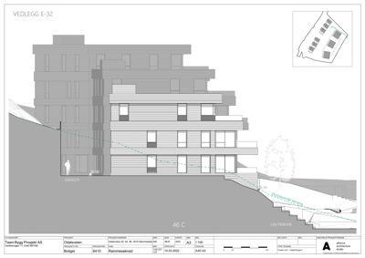
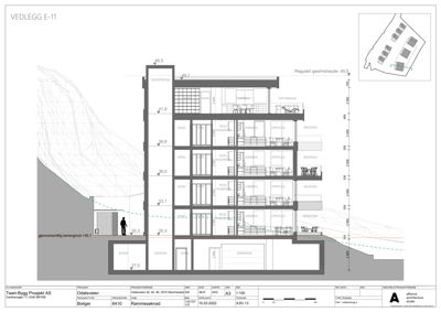
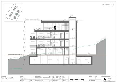
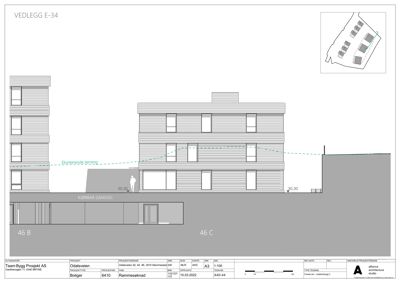
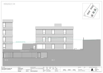
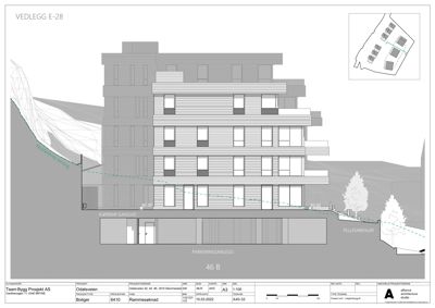
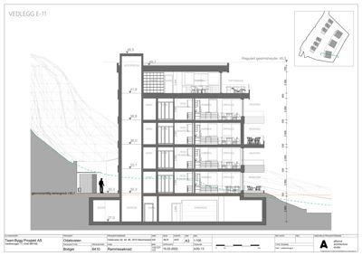
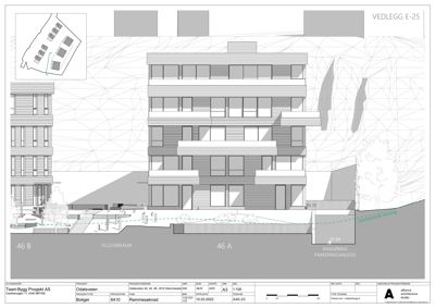
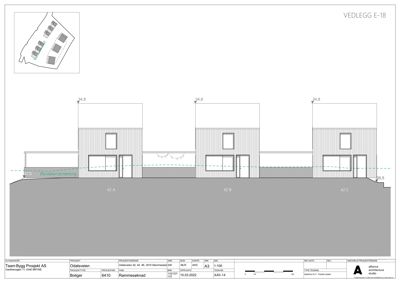
Prosjektet omfatter oppføring av tre leilighetsbygg med henholdsvis 3, 4 og 5 etasjer, totalt 22 boenheter, plassert i et boligområde i Odalsveien 42, 44 og 46 i Slemmestad. Byggene har felles underliggende parkeringskjeller med ca. 1200 m² areal, inkludert boder, tekniske rom og sykkelbod. Leilighetsbyggene er utført i tre med flate tak, og har balkonger og markterrasser. Byggene er tilpasset terrenget med støttemurer og utomhusanlegg som inkluderer lekeplasser, gangstier og beplantning. Prosjektet inkluderer omfattende branntekniske tiltak som heldekkende brannalarmanlegg, boligsprinkling, branncelleinndeling, brannsluser og røykventilasjon. Det er også planlagt universell utforming, tekniske installasjoner for vann, avløp, ventilasjon og elektriske anlegg, samt tilrettelegging for brannvesenets rednings- og slokkemannskap. Utomhusarealer og vei opparbeides i henhold til reguleringsplan. Parkeringsdekning er ivaretatt med 33 bilplasser og 62 sykkelplasser. Prosjektet har gjennomgått nødvendig kontroll og godkjenning i henhold til plan- og bygningsloven og TEK17.

Produkter og materialer

Teknisk VVS

Vannforsyning med kapasitet 3000 l/min, sprinkleranlegg i boligdel og kjeller, sanitærinstallasjoner, vann- og avløpsanlegg, overvannshåndtering med fordrøyningsmagasin

VVS-installasjoner og brannslokkesystemer

Bygningsarbeid Tak

Taktekkingsarbeid med brannklassifiserte materialer

Taktekkingsarbeid

Utendørs Rekkverk

🧱 Glassrekkverk

Glassrekkverk på balkonger og terrasser

Rekkverk for balkonger og terrasser

Utendørs Terrasse

🧱 Tre

Treterrasser og takterrasser på leiligheter

Private og felles terrasser

Utendørs Gjerde

Fysisk sikring med gjerde rundt eiendom og fjellskrent

Sikringsgjerder

Grunnarbeid Grunnarbeider

Grunnarbeider, sprengning, oppfylling, planering, sikring av fjellskrent

Grunnarbeider og sikring av byggeplass

Teknisk Ventilasjon

Desentraliserte ventilasjonsaggregater i boenheter, røykventilasjon i trapperom og heissjakter, normal ventilasjon i parkeringskjeller

Ventilasjonsanlegg med brannsikring

Teknisk Solceller

Ingen eksplisitt informasjon om solceller i dokumentene

Ingen oppgitt behov for solceller

Bygningskomponenter Vinduer

🧱 Tre, brannklasse EI 60 for leilighetsbygg, EI 30 for kjedehus

Antall: 14

Rømningsvinduer med minimum 0,6 m høyde og 0,5 m bredde, lett å åpne, med brannmotstand tilsvarende vegg

Fasadevinduer i tre med brannkrav, inkludert rømningsvinduer i leilighetsbygg og kjedehus

Utendørs Utomhus

Utomhusplan med beplantning, lekeplasser, gangstier, belysning, gjerder, snøsmelteanlegg, asfaltering og granittheller

Utomhusanlegg og landskapsforming

Bygningsarbeid Tømrer

🧱 Trekonstruksjoner

Montering av trekonstruksjoner for kjedehus og leilighetsbygg

Tømrerarbeid og trekonstruksjoner

Bygningskomponenter Garasjeport

🧱 EI 90 A2-s1, d0 brannmotstand

Antall: 1

Garasjeport i felles parkeringskjeller over 400 m², med brannsluse mellom garasje og øvrig bygg

Brannbeskyttet garasjeport i parkeringskjeller

Teknisk Varmepumpe

Antall: 4

Varmepumper installert på uteareal

Varmepumper for oppvarming

Teknisk Elektro

Brannalarmanlegg kategori 2, nødlys, strømforsyning med batteribackup 30-60 min, elektriske installasjoner i henhold til NEK400

Elektriske installasjoner for brannsikkerhet og drift

Bygningskomponenter Dører

🧱 Brannklassifiserte dører EI 60 Sa for leilighetsbygg, EI 30 Sa for kjedehus

Antall: 22

Branndører i branncellebegrensende skiller, inkludert trapperomsdører, brannslusedører og tekniske rom

Brann- og røykbestandige dører i henhold til brannkonsept

Bygningskomponenter Trapper

🧱 Brannmotstand R 30 A2-s1, d0

Antall: 9

Trapperom Tr 1 med brannsluser mot kjeller, motorisert røykluke på minimum 1 m2

Trapperom i leilighetsbygg og kjedehus med røykventilasjon

Bygningskomponenter Balkonger

🧱 Tre

Antall: 12

Balkonger med minimum 11 m² areal, åpne minst 50% av veggflate for sprinklerunntak

Private balkonger til leiligheter

Bygningsarbeid Betong

Plasstøpte betongkonstruksjoner i bærende system og fundamentering

Betongarbeider for bygg og parkeringskjeller

Bygningsarbeid Mur

Murarbeid, membran og flisarbeider i bad

Murarbeid og flislegging i våtrom

Bygningsmaterialer Tak

🧱 Flatt tak med taktekking BROOF(t2), saltak på kjedehus

Taktekking med brannmotstand BROOF(t2), takkonstruksjon med brannmotstand R15-R90 avhengig av bygg

Takmaterialer og konstruksjoner

Bygningsmaterialer Fasade

🧱 Liggende og stående trepanel, tegl på leilighetsbygg

Trepanel i ulike farger for kjedehus og leilighetsbygg, tegl på leilighetsbygg for brannmotstand

Fasadematerialer for boligbygg

Bygningsmaterialer Isolasjon

🧱 Ubrennbart materiale klasse A2-s1, d0

Isolasjon i konstruksjoner og rør/kanaler med brannmotstand i henhold til TEK17

Isolasjonsmaterialer for bygg og tekniske installasjoner

Teknisk Heis

Antall: 3

Personheiser fra Otis AS, sertifikat for sluttkontroll i alle tre bygg, heissjakt del av branncelle med trapperom

Heisanlegg i leilighetsbygg

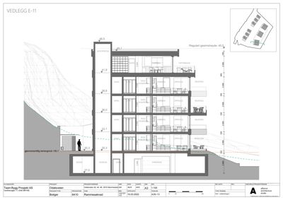
Plantegning

Underetasje 941.8 m²

Etasje 0 941.8 m²

Rom Areal Vinduer Dører
Teknisk rom Teknisk 23.7 m² 0 1
Bod Bod 248.2 m² 0 1
Sluse Sluse 6.2 m² 0 1
Trappeoppgang Trapp 14.7 m² 0 2
Korridor Korridor 14.7 m² 0 3
Sykkelbod Sykkelbod 22.7 m² 0 1
Bod 1 Bod 1 7.5 m² 0 1
Bod 2 Bod 2 8.4 m² 0 1
Bod 3 Bod 3 5.4 m² 0 1
Bod 4 Bod 4 5.4 m² 0 1
Bod 5 Bod 5 5.4 m² 0 1
Bod 6 Bod 6 5.4 m² 0 1
Bod 7 Bod 7 5.4 m² 0 1
Bod 8 Bod 8 5.4 m² 0 1
Bod 9 Bod 9 5.4 m² 0 1
Bod 10 Bod 10 5.4 m² 0 1
Bod 11 Bod 11 5.4 m² 0 1
Bod 12 Bod 12 5.4 m² 0 1
Bod 13 Bod 13 5.4 m² 0 1
Bod 14 Bod 14 5.4 m² 0 1
Bod 15 Bod 15 5.4 m² 0 1
Bod 16 Bod 16 5.4 m² 0 1
Bod 17 Bod 17 5.4 m² 0 1
Bod 18 Bod 18 5.4 m² 0 1
Bod 19 Bod 19 5.4 m² 0 1
Bod 20 Bod 20 5.4 m² 0 1
Bod 21 Bod 21 6.2 m² 0 1
Bod 22 Bod 22 8.2 m² 0 1
Korridor Korridor 42.4 m² 0 3
Teknisk rom Teknisk 10.7 m² 0 1
Trappeoppgang Trapp 14.7 m² 0 2
Sluse Sluse 4.8 m² 0 1

Underetasje Leilighetsbygg 1,050.0 m²

Etasje 0 1,050.0 m²

Rom Areal Vinduer Dører
Bod 1 01 7.5 m² 0 1
Bod 2 02 8.4 m² 0 1
Bod 3 03 5.4 m² 0 1
Bod 4 04 5.4 m² 0 1
Bod 5 05 5.4 m² 0 1
Bod 6 06 5.4 m² 0 1
Bod 7 07 5.4 m² 0 1
Bod 8 08 5.4 m² 0 1
Bod 9 09 5.4 m² 0 1
Bod 10 10 5.4 m² 0 1
Bod 11 11 5.4 m² 0 1
Bod 12 12 5.4 m² 0 1
Bod 13 13 5.4 m² 0 1
Bod 14 14 5.4 m² 0 1
Bod 15 15 5.4 m² 0 1
Bod 16 16 5.4 m² 0 1
Bod 17 17 5.4 m² 0 1
Bod 18 18 5.4 m² 0 1
Bod 19 19 5.4 m² 0 1
Bod 20 20 5.4 m² 0 1
Bod 21 21 5.2 m² 0 1
Bod 22 22 8.2 m² 0 1
Teknisk 001 23.7 m² 0 1
Teknisk 002 10.7 m² 0 1
Sykkelbod 003 22.7 m² 0 1
Korridor 004 14.2 m² 0 2
Korridor 005 12.4 m² 0 2
Trapperom 006 28.1 m² 0 1
Trapperom 007 14.7 m² 0 1
Trapperom 008 14.7 m² 0 1
Sluse 009 6.2 m² 0 1
Sluse 010 6.7 m² 0 1
Sluse 011 4.8 m² 0 1
Sluse 012 4.8 m² 0 1
Kjeller 013 941.8 m² 0 0
Parkering 014 807.7 m² 0 0

Leilighet 596.0 m²

Etasje 1 208.3 m²

Rom Areal Vinduer Dører
Opphold H0101 26.4 m² 1 1
Soverom 1 Soverom 1 9.8 m² 0 1
Soverom 2 Soverom 2 6.8 m² 0 1
Gang Gang 10.2 m² 0 3
Bad Bad 5.3 m² 0 1
Bed/Vaskerom Bed/Vaskerom 3.4 m² 0 2
Markterrasse Markterrasse 12.4 m² 0 1
Felles entre Felles entre 19.3 m² 0 2
Trapperom Trapperom 10.8 m² 0 1
Opphold H0102 32.0 m² 1 1
Opphold H0103 13.8 m² 1 1
Markterrassse 12.8 m² 0 1
Opphold H0202 33.9 m² 1 1
WC/Vaskerom WC/Vaskerom 5.5 m² 0 1
Entré Entré 4.0 m² 0 1
Balkong Balkong 11.6 m² 0 1
Opphold H0201 33.6 m² 1 1
Bod/Vaskerom Bod/Vaskerom 5.9 m² 0 1
Forrom Forrom 2.9 m² 0 1
Opphold H0301 90.2 m² 3 1
Bod Bod 3.2 m² 0 1
Bad 1 Bad 1 7.5 m² 0 1
Bad 2 Bad 2 5.1 m² 0 1
Terrasse Terrasse 46.8 m² 0 1
Balkong U01 22.2 m² 0 1
Opphold H0302 33.5 m² 1 1
Entre Entre 3.8 m² 0 1
Vaskerom Bod/Vaskerom/Bad/WC 3.4 m² 0 2
Opphold H0501 61.4 m² 2 3
Soverom 3 Soverom 3 13.3 m² 1 1
Opphold A101 34.8 m² 1 1
Hovedsoverom A102 13.5 m² 1 1
Soverom A103 7.2 m² 1 1
Gang A104 6.4 m² 0 2
Bad A105 4.7 m² 0 1
Gang A106 2.7 m² 0 1
Entré A107 3.5 m² 0 1
Felles entré A108 25.4 m² 0 1
Postkasser A109 0.0 m² 0 0
Trapperom A110 38.8 m² 0 0
Opphold B101 30.3 m² 1 1
Soverom B102 6.7 m² 1 1
Hovedsoverom B103 9.8 m² 1 1
Gang B104 6.0 m² 0 2
Bad B105 3.3 m² 0 1
Entré B106 3.5 m² 0 1
Felles entré B107 25.4 m² 0 1
Postkasser B108 0.0 m² 0 0
Trapperom B109 38.8 m² 0 0
Opphold C101 34.8 m² 1 1
Hovedsoverom C102 13.5 m² 1 1
Soverom C103 7.2 m² 1 1
Gang C104 6.4 m² 0 2
Bad C105 4.7 m² 0 1
Gang C106 2.7 m² 0 1
Entré C107 3.5 m² 0 1
Felles entré C108 25.4 m² 0 1
Postkasser C109 0.0 m² 0 0
Trapperom C110 38.8 m² 0 0
Leilighet A401 A401 86.0 m² 2 3
Leilighet A402 A402 86.0 m² 2 3
Toppleilighet B401 B401 144.0 m² 2 3
Opphold A201 34.8 m² 1 1
Opphold A202 34.8 m² 1 1
Opphold B201 34.8 m² 1 1
Opphold B202 34.8 m² 1 1
Opphold C201 34.8 m² 1 1
Opphold C202 34.8 m² 1 1
Opphold A301 34.8 m² 2 1
Opphold A302 34.8 m² 2 1
Opphold C301 66.3 m² 2 1
Stue 101 66.3 m² 3 2
Kjøkken 102 19.8 m² 0 1
Gang 103 19.0 m² 0 3
Bad 104 7.3 m² 0 1
Toalett 105 2.8 m² 0 1
Vaskerom 106 3.9 m² 0 1
Soverom 107 10.2 m² 1 1
Bod 108 2.8 m² 0 1
Takterrasse 109 47.4 m² 0 0
Leilighet B301 B301 86.0 m² 3 4
Leilighet B302 B302 86.0 m² 3 4
Trapp Trapp 20.6 m² 0 0
Bad/WC A303 5.9 m² 0 1
Gang A304 6.4 m² 0 2
Hovedsoverom A305 13.3 m² 1 1
Bod/Vaskerom A306 3.4 m² 0 1
Entré A307 4.7 m² 0 1
Bad/WC B303 5.8 m² 0 1
Gang B304 6.4 m² 0 2
Hovedsoverom B305 13.7 m² 1 1
Bod/Vaskerom B306 3.4 m² 0 1
Entré B307 4.7 m² 0 1
Soverom C302 7.2 m² 1 1
Bad/WC C303 5.9 m² 0 1
Gang C304 6.4 m² 0 2
Hovedsoverom C305 13.7 m² 1 1
Bod/Vaskerom C306 3.4 m² 0 1
Entré C307 4.7 m² 0 1
Balcony Balcony 14.4 m² 0 1

Etasje 2 208.3 m²

Rom Areal Vinduer Dører
Opphold H0102 33.6 m² 1 1
Soverom 1 Soverom 1 14.9 m² 0 1
Soverom 2 Soverom 2 7.7 m² 0 1
Gang Gang 6.8 m² 0 3
Bad Bad 7.5 m² 0 1
Geste WC Geste WC 3.4 m² 0 2
Bod/Vaskerom Bod/Vaskerom 3.4 m² 0 1
Forrom Forrom 2.8 m² 0 1
Entre Entre 3.8 m² 0 2
Markterrasse Markterrasse 15.0 m² 0 1
Soverom 2 9.8 m² 0 1
Opphold H0202 33.6 m² 1 2
Balkong Balkong 11.9 m² 0 1
Gjestewc Gjestewc 1.9 m² 0 1
Opphold H0302 33.6 m² 1 1
Balkong U02 22.2 m² 0 1
Trapperom Trapperom 15.8 m² 0 1
Opphold H0401 33.6 m² 1 1
Porrom Porrom 2.8 m² 0 1
Gleste WC Gleste WC 1.9 m² 0 1

Etasje 3 32.3 m²

Rom Areal Vinduer Dører
Fellesareal 32.3 m² 0 1
Opphold H0402 33.6 m² 1 1
Balkong Balkong 13.4 m² 0 0
Soverom 1 Soverom 1 14.7 m² 1 1
Soverom 2 Soverom 2 7.7 m² 1 1
Bad Bad 7.6 m² 0 1
Gang Gang 6.2 m² 0 2
Porrom Porrom 2.7 m² 0 1
Bod/Vaskerom Bod/Vaskerom 3.4 m² 0 1
Gleste WC Gleste WC 1.9 m² 0 1
Entre Entre 4.0 m² 0 1

Etasje 4 147.1 m²

Rom Areal Vinduer Dører
Opphold H0401 67.2 m² 3 1
Terrasse Terrasse 45.3 m² 0 1
Gang Gang 23.1 m² 0 4
Trapperom Trapperom 9.2 m² 0 1
Soverom 1 Soverom 1 13.0 m² 1 1
Bad 1 Bad 1 7.5 m² 0 1
Bod/Vaskerom Bod/Vaskerom 3.4 m² 0 1
Soverom 2 Soverom 2 11.4 m² 1 1
Bad 2 Bad 2 5.1 m² 0 1

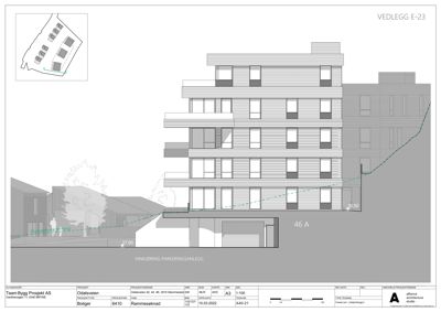
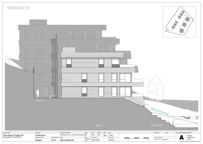
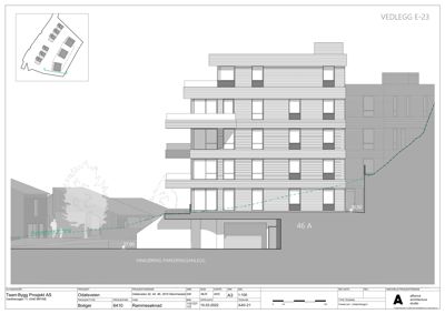
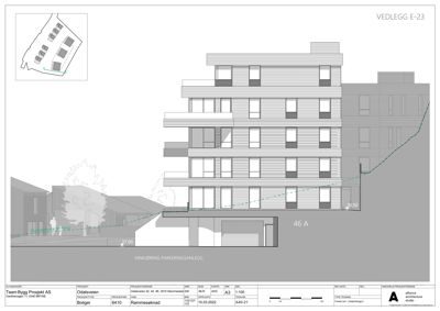
Fasader

Leilighetsbygg C

Øst
Materiale
Tre
Taktype
Flatt tak
Høyde
6.0 m
Vinduer
6
Dører
1
Synlige etasjer
3
Sør
Materiale
Tre
Taktype
Flatt tak
Høyde
9.5 m
Vinduer
10
Dører
2
Balkonger
3
Synlige etasjer
3
Vest
Materiale
Tre
Taktype
Flatt tak
Vinduer
14
Dører
1
Balkonger
3
Synlige etasjer
3
Nord
Materiale
Tre
Taktype
Flatt tak
Høyde
16.0 m
Vinduer
16
Dører
1
Balkonger
6
Synlige etasjer
5

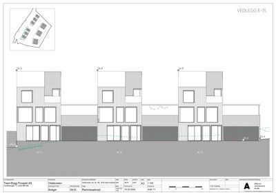
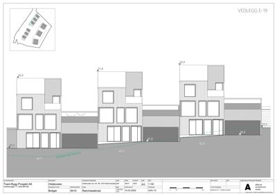
Kjedehus

Sydøst
Materiale
Tre
Taktype
Flatt tak
Høyde
6.5 m
Vinduer
3
Dører
1
Synlige etasjer
2
Nordvest
Materiale
Tre
Høyde
6.5 m
Mønehøyde
8.2 m
Vinduer
12
Dører
9
Balkonger
3
Synlige etasjer
2

Kjedehus A

Sydøst
Materiale
Tre
Taktype
Saltak
Høyde
6.8 m
Mønehøyde
8.5 m
Vinduer
2
Dører
1
Synlige etasjer
2

Kjedehus B

Sydøst
Materiale
Tre
Taktype
Saltak
Høyde
6.8 m
Mønehøyde
8.5 m
Vinduer
2
Dører
1
Synlige etasjer
2

Kjedehus C

Sydøst
Materiale
Tre
Taktype
Saltak
Høyde
6.8 m
Mønehøyde
8.5 m
Vinduer
2
Dører
1
Synlige etasjer
2

Hendelser

15.04.2026 240/115 Odalsveien 44A, Odalsveien 44B, Odalsveien 44C - Søknad om midlertidig brukstillatelse
24.03.2026 240/115 Odalsveien 42, 44 og 46 – Purring på svar på søknad om midlertidig brukstillatelse
25.02.2026 240/115 Odalsveien 44A, Odalsveien 44B, Odalsveien 44C - Søknad om midlertidig brukstillatelse
23.02.2026 240/115 Odalsveien 44A, Odalsveien 44B, Odalsveien 44C - Boligspesifikasjon i matrikkelen og tegninger
20.01.2026 240/115 Odalsveien 44A, Odalsveien 44B, Odalsveien 44C - Svar på avklaring - Ferdigattest og midlertidig brukstillatelse
19.01.2026 240/115 Odalsveien 42, 44 og 46 - Supplering av søknad
22.12.2025 240/115 Odalsveien 44A, Odalsveien 44B, Odalsveien 44C - Avklaring – ferdigattest og midlertidig brukstillatelse
01.12.2025 240/115 Odalsveien 42, 44 og 46 - Supplering av søknad
07.08.2025 240/115 Odalsveien 44A - Igangsettingstillatelse 2 - Resterende arbeider
28.07.2025 240/115 Odalsveien 44A - Søknad om igangsettingstillatelse
16.06.2025 240/115 Odalsveien 42 - Supplering av søknad
21.03.2025 240/115 Odalsveien 42, 44 og 46 - Igangsettingstillatelse 1
20.03.2025 240/115 Odalsveien 42 - Supplering av søknad
20.03.2025 240/115 Odalsveien 42, 44 og 46 - Endringstillatelse for nybygg 3 leilighetsbygg med felles parkeringskjeller
07.03.2025 240/115 Odalsveien 42 - Supplering av søknad
24.02.2025 240/115 - Søknad om igangsettingstillatelse
22.08.2022 240/115 Svar - Bekymring for setningsskader og behov for avklaring om skråning - Nybygg 3 leilighetsbygg, felles p-kjeller
12.07.2022 240/115 Bekymring for setningsskader og behov for avklaring om skråning - Nybygg 3 leilighetsbygg med felles parkeringskjeller
02.07.2022 240/115, 240/137, 240/172 Rammetillatelse - 3 leilighetsbygg med felles parkeringskjeller
01.04.2022 240/115 Kvitteringsbrev - Nybygg 3 leilighetsbygg
31.03.2022 240/115, 240/137, 240/172 Søknad om nybygg - 3 leilighetsbygg med felles parkeringskjeller