NewConstruction Igangsettingstillatelse Leilighetsbygg

Nye boligblokker med garasjekjeller i Ole Bulls gate 10, Lillestrøm

📍 Ole Bulls gate 10 , 2000 LILLESTRØM

Nøkkelinfo

Sakstype
Nybygg
Bygningstype
Leilighetsbygg
Bruksareal
2,996 m²
Boenheter
4
Kommune
Lillestrøm
Fylke
Akershus
Gnr / Bnr
81 / 1065
Saksnummer
20/65609
Fase
Igangsettingstillatelse

Om byggesaken

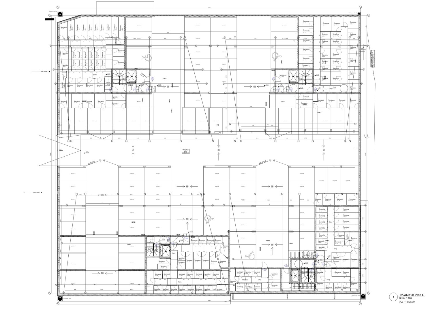
Prosjektet omfatter oppføring av fire nye boligblokker med tilhørende felles garasjekjeller under bakkenivå i Ole Bulls gate 10, Lillestrøm. Garasjekjelleren er planlagt som en plasstøpt betongkonstruksjon med et areal på ca. 2996 m². Bygningene vil inkludere sportsboder, tekniske rom og parkeringsplasser for beboere. Prosjektet inkluderer omfattende geotekniske arbeider som spunt og graving, fundamentering, samt installasjon av VA-anlegg, varme, sanitær, brannalarm og elektro. Det er etablert rekkefølgebestemmelser og støybegrensningstiltak, og det er søkt om dispensasjon for nattarbeid i forbindelse med betongstøp. Prosjektet har flere involverte aktører med ansvar for prosjektering, utførelse og kontroll, og følger gjeldende reguleringsplan og tekniske krav.

Produkter og materialer

Brannvern Brannkonsept og kontroll

Brannkonsept utarbeidet og kontrollert av BRAKON AS og Asenti AS

Brannsikkerhetstiltak og kontroll i boligblokker

Fasade Boligblokker

Antall: 4

Fire boligblokker med sportsboder, tekniske rom og parkeringsplasser

Oppføring av fire boligblokker med tilhørende fasiliteter

Grunnarbeid Spunt og graving

Spuntarbeider og graving for byggegrop, tiltaksklasse 3, utført av Entreprenørservice AS og Skanska Norge AS

Grunnarbeider for byggegrop og fundamentering av garasjekjeller

Ventilasjon Klima- og ventilasjonsanlegg

Klima- og ventilasjonsanlegg prosjektert av Errive AS

Ventilasjonsanlegg for boligblokker

Grunnarbeid VA-anlegg

Utvendig vann- og avløpsanlegg prosjektert og utført, tilknytning til eksisterende anlegg

Vann- og avløpsinstallasjoner for boligblokker og garasjekjeller

VVS Sanitær og varme

Sanitærinstallasjoner og varmeanlegg utført av Errive AS

Installasjon av sanitær og varme i boligblokker og garasjekjeller

Stål Stålkonstruksjoner

Stålkonstruksjoner over bakkenivå

Stålkonstruksjoner for boligblokker

Betong Plasstøpte betongkonstruksjoner

Betongkonstruksjoner for garasjekjeller under bakkenivå, ca. 2996 m², inkludert støp på ca. 850 m³ i en sammenhengende operasjon

Betongarbeider for felles garasjekjeller under boligblokker, inkludert støping, etterbehandling og glatting

Elektro Brannalarm, nødlys og ledsystem

Brannalarmanlegg, nødlys og ledsystem installert i henhold til krav

Elektroinstallasjoner for brannsikkerhet og belysning

Annet Fjernvarme

Avtale med fjernvarmeleverandør foreligger

Fjernvarme til boligene

Annet Avfallshåndtering

Avfallsløsning med tilknytning til eksisterende avfallssug akseptert av ROAF

Avfallshåndtering for boligene

Annet Heis

Heis skal meldes til NIREG-registeret og ha heissertifikat før brukstillatelse

Heisinstallasjoner i boligblokker

Trapper Trapper i boligblokker

Trapper i boligblokker med krav til brannsikkerhet og rømningsveier

Innvendige trapper i boligblokker

Hendelser

10.04.2026 20/65609-42 81/384 Ole Bulls gate 10, felt T2, Igangsettingstillatelse 2 - Konstruksjoner under bakkenivå for garasjekjeller
01.04.2026 20/65609-39 81/384 Søknad om dispensasjon for arbeid utenfor ordinær arbeidstid - betongstøp
30.03.2026 20/65609-38 81/384 Anmodning om informasjon om arbeid utenfor ordinær arbeidstid og støyforhold
30.03.2026 20/65609-37 81/384 Redegjørelse for rekkefølgebestemmelser og infrastruktur
27.03.2026 20/65609-36 81/384 Ole Bulls gate 10, felt T2 - rekkefølgebestemmelser
27.03.2026 20/65609-35 81/1065 Tilleggsdokumentasjon til søknad om IG 2
26.03.2026 20/65609-34 81/1065 vedrørende søknad om IG2 konstruksjoner under bakkenivå garasjekjeller
12.03.2026 20/65609-33 81/1065 Søknad om IG2 konstruksjoner under bakkenivå garasjekjeller
11.03.2026 20/65609-32 81/1065 Endring av ansvarsretter
30.12.2025 20/65609-31 81/1065 Supplering av søknad