NewConstruction UnderBehandling Leilighetsbygg

Ny leilighetshotell med kjeller i Øvre Storgate 3, Drammen

📍 Øvre Storgate 3 , 3018 DRAMMEN

Nøkkelinfo

Sakstype
Nybygg
Bygningstype
Leilighetsbygg
Bruksareal
559 m²
Boenheter
12
Kommune
Drammen
Fylke
Buskerud
Gnr / Bnr
114 / 1090
Saksnummer
26/07855
Fase
Under behandling

Om byggesaken

Ny leilighetshotell i bakgården på Øvre Storgate 3 i Drammen, bestående av 4 etasjer pluss underliggende kjeller. Bygget inneholder 12 leilighetsenheter, hver med soverom, bad, stue og kjøkken, samt felles tekniske rom, avfallsrom og sykkelparkering i kjeller. Bygget har flatt tak og fasader med pusset overflate, tilpasset omkringliggende bebyggelse. Fundamentering skjer på stålkjernepeler til fjell grunnet bløt og setningsømfintlig grunn. Det planlegges heis og utvendig svalgang mot nord. Eksisterende garasje på naboeiendom rives. Prosjektet inkluderer dispensasjon for avstand til nabogrense og overvannshåndtering med BlueProof fordrøyningsanlegg på taket.

Produkter og materialer

Dører Inngangsdører og leilighetsdører

🧱 Standard dørmateriale

Antall: 12

Dører til leiligheter og trapperom

Dører til leiligheter og fellesområder

Sykkelparkering Sykkelstativ og parkeringsplasser

Antall: 23

20 plasser i kjeller, 3 plasser under inngangsportal, inkludert laste-/familiesykler

Sykkelparkering for nybygg og eksisterende bygg

Riving Eksisterende garasje

Antall: 1

Riving av eksisterende garasje på naboeiendom 114/1162

Riving av garasje for å gi plass til nybygg

Tak Flatt tak med overvannssystem

🧱 BlueProof fordrøyningsanlegg fra Protan

Antall: 1

Sintef-godkjent vannfordrøyningssystem for takovervann

Tak med overvannshåndtering

Isolasjon Fasadeisolasjon

🧱 Isolasjon under puss

Isolasjon i fasade for energikrav

Isolasjon for fasade og bygningskropp

Vinduer Fasadevindu

🧱 3-lags energiglass

Antall: 16

Fasadevindu i pusset fasade, 16 stk på sørfasade

Fasadevindu for leilighetene i nybygget

Grunnarbeid Pelefundamentering

🧱 Stålkjernepeler, borede

Pelefundamentering til fjell, minimum 200 mm rørstørrelse

Fundamentering på stålkjernepeler til fjell grunnet bløt grunn

Fasade Pusset fasade

🧱 Puss på isolasjon

Pusset overflate for fasade i samsvar med nabobebyggelse

Fasadeoverflate for nybygget

Gulv Gulvbelegg i leiligheter

Standard gulvbelegg i leiligheter og fellesarealer

Gulvbelegg for oppholdsrom og bad

Trapper Innvendig trapp

🧱 Betong/stål

Antall: 1

Trapperom på 10,6 m² i nybygget

Innvendig trapp for adkomst mellom etasjer

Betong Fundamentplate

🧱 Betong

Hel fundamentplate på peletopper

Fundamentplate for bygget

Elektro Heisinstallasjon

Antall: 1

Heis med sjakt 1730 x 2450 mm, innvendig 1100 x 2100 mm

Heis for adkomst mellom etasjer

Ventilasjon Ventilasjonssystem

Ventilasjon i leiligheter og fellesarealer

Ventilasjon for oppholdsrom og tekniske rom

Maling Innvendig og utvendig maling

Maling av fasade og innvendige overflater

Overflatebehandling for fasade og innvendige rom

VVS Teknisk rom og avløp

Teknisk rom 17,8 m² og avfallsrom 35,4 m² i kjeller

Tekniske installasjoner og avløpssystem

Plantegning

Enebolig 326.1 m²

Etasje 0 184.1 m²

Rom Areal Vinduer Dører
Trapperom U01 15.1 m² 0 1
Avfallsrom U02 35.4 m² 0 1
Sykkelparkering U03 55.4 m² 0 0
Teknisk rom U04 17.8 m² 0 1

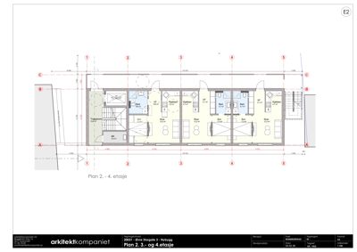
Etasje 1 142.0 m²

Rom Areal Vinduer Dører
Trapperom 101 10.6 m² 0 1
Bad 102 5.9 m² 0 1
Sov 103 7.3 m² 1 1
Stue 104 13.2 m² 2 1
Kjøkken 105 5.2 m² 0 1
Kjøkken 106 4.7 m² 0 1
Stue 107 12.3 m² 2 1
Sov 108 7.3 m² 1 1
Bad 109 4.7 m² 0 1
Sov 110 7.3 m² 1 1
Bad 111 4.7 m² 0 1
Stue 112 12.3 m² 2 1
Kjøkken 113 4.7 m² 0 1
VF 114 5.1 m² 0 1
VF 115 5.1 m² 0 1
BK 116 3.8 m² 0 0

Nybygg 163.8 m²

Etasje 2 163.8 m²

Rom Areal Vinduer Dører
Trapperom 201 10.6 m² 0 2
Bad 202 5.9 m² 0 1
Sov 203 7.3 m² 1 1
VF 204 4.0 m² 0 0
Stue 205 13.2 m² 1 1
Kjøkken 206 5.2 m² 0 0
Stue 207 12.3 m² 1 1
Kjøkken 208 4.7 m² 0 0
VF 209 5.1 m² 0 0
Sov 210 7.3 m² 1 1
Bad 211 4.7 m² 0 1
Sov 212 7.3 m² 1 1
Bad 213 4.7 m² 0 1
VF 214 5.1 m² 0 0
Kjøkken 215 4.7 m² 0 0
Stue 216 12.3 m² 1 1

Fasader

Enebolig

Nord
Materiale
Tre
Taktype
Flatt tak
Høyde
12.8 m
Vinduer
12
Dører
4
Balkonger
12
Synlige etasjer
4

Ramme

Sør
Materiale
Pusset
Taktype
Flatt tak
Høyde
17.5 m
Vinduer
16
Dører
0
Synlige etasjer
4
Vest
Materiale
Pusset
Taktype
Flatt tak
Høyde
17.5 m
Vinduer
0
Dører
0
Synlige etasjer
4

Hendelser

13.04.2026 Øvre Storgate 3, anmodning om kulturminnefaglig uttalelse
13.04.2026 Øvre Storgate 3, vi trenger flere opplysninger for å behandle søknaden din
12.03.2026 Øvre Storgate 3, melding om mottatt søknad
11.03.2026 Øvre Storgate 3 Supplering av søknad 114/1090
11.03.2026 Øvre Storgate 3 Søknad om rammetillatelse 114/1090