NewConstruction UnderBehandling Leilighetsbygg

Nytt bofellesskap med seks boligenheter i Påskeveien, Arendal

📍 Påskeveien 1 , 4823 NEDENES

Nøkkelinfo

Sakstype
Nybygg
Bygningstype
Leilighetsbygg
Bruksareal
507 m²
Boenheter
6
Kommune
Arendal
Fylke
Agder
Gnr / Bnr
430 / 220
Saksnummer
2025/26946
Fase
Under behandling

Om byggesaken

Nytt bofellesskap bestående av seks boligenheter for personer med tilretteleggingsbehov oppføres i Påskeveien, Arendal. Bygget har ett plan med totalt bruttoareal på ca. 611,6 m² og bruksareal på 507,1 m², med tilhørende boder på 24,6 m² og parkeringsareal på 131 m². Bygget er utført i tre med saltak, og inneholder fellesarealer, personalbase, kjøkken/stue, soverom, bad, tekniske rom og boder. Utomhusarbeider inkluderer parkeringsplass, uteområder og adkomstvei. Infrastruktur for vei, vann, avløp og renovasjon etableres i egen entreprise parallelt med byggingen, med godkjente tekniske planer og slokkevannskapasitet på 50 l/s. Prosjektet følger gjeldende reguleringsplan og oppfyller krav til opparbeidelse og tekniske løsninger.

Produkter og materialer

Kjøkken Kjøkkeninnredning

Antall: 6

Kjøkken/stue i hver bolig med standard kjøkkeninnredning

Kjøkkenløsninger i hver boligenhet

VVS Vann- og avløpsanlegg med slokkevann

Tilknytning til offentlig vann- og avløpsnett, slokkevannskapasitet 50 l/s, ny trykkøker installeres

Vann- og avløpsinstallasjoner med brannvannsløsning i henhold til kommunale krav

Betong Fundament og bærende konstruksjoner

🧱 Betong

Fundamenter på kote +36,20, bærende vegger i Leca eller betong mot terreng

Fundamentering og bærende konstruksjoner i betong og Leca

Fasade Trepanel fasade med saltak

🧱 Tre

Tre fasade med saltak, gesimshøyde ca. 4.4 m

Yttervegger i tre med saltak som takkonstruksjon

Dører Ytterdører i tre

🧱 Tre

Antall: 18

Ytterdører i tre, standard høyde 2100 mm, bredde 1000 mm

Ytterdører til boligenheter, boder og fellesarealer

Terrasse Terrasse til hver bolig

🧱 Tre

Antall: 6

Terrasse på ca. 9,6 m² til hver boligenhet

Utendørs terrasseareal til hver bolig

Gulv Gulvbelegg og parkett

Gulv i fellesarealer og boliger med parkett og fliser på bad

Gulvbelegg tilpasset boligstandard

Elektro Veibelysning og elektriske installasjoner

Prinsippskisse for veilys, endelig plassering og utstyr godkjennes av veimyndighet

Elektrisk anlegg for vei og bygning, inkludert veilys

Rekkverk Rekkverk på terrasser

Antall: 6

Rekkverk på terrasser i henhold til forskriftskrav

Sikkerhetsrekkverk på terrasser

Vinduer Fasadevindu i tre

🧱 Tre med 3-lags energiglass

Antall: 44

Vinduer i ulike størrelser, hovedsakelig 1290x1690 mm og 1290x1290 mm, 3-lags energiglass

Fasadevindu i tre med energiglass for lys og isolasjon

Grunnarbeid Tomtearbeid og opparbeidelse av vei og parkeringsplass

Opparbeidelse av adkomstvei, parkeringsareal på 131 m², og uteområder i henhold til godkjente tekniske planer

Grunnarbeid for vei, parkeringsplass og uteområder, inkludert planering og drenering

Tømrer Innvendige vegger og tak

🧱 Tre

Innvendige vegger og tak i tre, med isolasjon og overflater tilpasset boligformål

Innvendige konstruksjoner og overflater

Bad Sanitærutstyr og fliser

Antall: 6

Bad med fliser og sanitærutstyr tilpasset bofellesskapets behov

Bad og toalettrom med nødvendig utstyr og overflater

Plantegning

Enebolig 507.1 m²

Etasje 1 507.1 m²

Rom Areal Vinduer Dører
Stue 101 35.2 m² 3 2
Kjøkken 102 12.5 m² 1 1
Gang 103 8.4 m² 0 4
Bad 104 6.2 m² 0 1
Toalett 105 2.1 m² 0 1
Soverom 106 14.3 m² 1 1
Soverom 107 13.8 m² 1 1
Soverom 108 12.9 m² 1 1
Soverom 109 11.5 m² 1 1
Soverom 110 10.2 m² 1 1
Soverom 111 9.8 m² 1 1
Soverom 112 9.5 m² 1 1
Soverom 113 9.1 m² 1 1
Soverom 114 8.7 m² 1 1
Soverom 115 8.3 m² 1 1
Soverom 116 7.9 m² 1 1
Soverom 117 7.5 m² 1 1
Soverom 118 7.1 m² 1 1
Soverom 119 6.7 m² 1 1
Soverom 120 6.3 m² 1 1
Soverom 121 5.9 m² 1 1
Soverom 122 5.5 m² 1 1
Soverom 123 5.1 m² 1 1
Soverom 124 4.7 m² 1 1
Soverom 125 4.3 m² 1 1
Soverom 126 3.9 m² 1 1
Soverom 127 3.5 m² 1 1
Soverom 128 3.1 m² 1 1
Soverom 129 2.7 m² 1 1
Soverom 130 2.3 m² 1 1
Soverom 131 1.9 m² 1 1
Soverom 132 1.5 m² 1 1
Soverom 133 1.1 m² 1 1
Soverom 134 0.7 m² 1 1
Soverom 135 0.3 m² 1 1

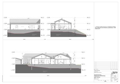
Fasader

Enebolig

Sør
Materiale
Tre
Taktype
Saltak
Vinduer
10
Dører
4
Synlige etasjer
1
Øst
Materiale
Tre
Taktype
Saltak
Vinduer
10
Dører
4
Synlige etasjer
1

Hovedbygg

Vest
Materiale
Tre
Taktype
Saltak
Høyde
4.4 m
Vinduer
10
Dører
2
Synlige etasjer
1
Nord
Materiale
Tre
Taktype
Saltak
Høyde
4.4 m
Vinduer
4
Dører
2
Synlige etasjer
1

Hendelser

21.04.2026 Supplering av søknad 430/220
09.01.2026 Tilbakemelding - Supplering av søknad 430/220
24.11.2025 Supplering av søknad 430/220
28.10.2025 Midlertidig svar - 430/220/0/0 - Påskeveien - bofellesskap med seks boligenheter
17.09.2025 Søknad om rammetillatelse 430/220