NewConstruction Igangsettingstillatelse Leilighetsbygg

Oppføring av leilighetsbygg og carport i Lunden, Nordfjordeid

📍 Rådhusvegen 41Q , 6770 NORDFJORDEID

Nøkkelinfo

Sakstype
Nybygg
Bygningstype
Leilighetsbygg
Bruksareal
2,139 m²
Boenheter
22
Kommune
Stad
Fylke
Vestland
Gnr / Bnr
45 / 236
Saksnummer
2025/2309
Fase
Igangsettingstillatelse

Om byggesaken

Lunden Bustadpark er et boligprosjekt i Nordfjordeid som omfatter oppføring av flere boligtyper, inkludert rekkehus i to etasjer, firemannsboliger, tomannsboliger og en boligblokk på 3-4 etasjer med inntil 15 leiligheter. Prosjektet inkluderer også carporter og tilhørende infrastruktur som parkeringsplasser, renovasjonsbygg og uteområder. Byggene har varierende gesimshøyder rundt 6,4-6,7 meter og mønehøyder opp til ca. 8,9 meter, med tre som hovedmateriale på fasader og saltak eller flate tak. Det er lagt vekt på sosialt samvær med skjerma grøntarealer og gangveier til sentrum. Prosjektet er delt opp i flere byggesteg, hvor byggesteg 1-4 er under igangsetting, og byggesteg 5 planlegges separat. Det er gjennomført geotekniske vurderinger, branntekniske tilrettelegginger og nabovarsling med håndtering av merknader. Prosjektet har godkjente dispensasjoner for fasadelengde og plassering av renovasjonsbygg og parkering.

Produkter og materialer

Dører Ytterdører og balkongdører

🧱 Tre

Antall: 22

Ytterdører og balkongdører til leiligheter og rekkehus

Garasjeport Carport med sportsbod

🧱 Tre og metall

Antall: 6

Carportareal 186 m² med sportsboder på ca. 5,2 m² hver

Carport med tilhørende sportsboder

Grunnarbeid Terrengarbeid og grunnutgraving

Grunnarbeider basert på geoteknisk rapport, inkl. terrengjustering og fundamentering

Grunnarbeid og terrengjustering for boligprosjektet

Pipe Skorstein og ildsted

🧱 Mur og metall

Skorstein for boenheter uten vannbåren varme, ildsted installert

Pipe og ildsted i boligene

Bad Bad og våtrom

Våtrom med fliser, membran og maling, inkl. våtromsarbeider

Bad og våtrom i boligene

Brannvern Brannkum, hydrant og slokkeutstyr

Brannkum og hydrant plassert innenfor 25-50 m fra boenheter og garasje, slokkevannskapasitet iht. krav

Brannvern og slokkeutstyr for boligområdet

VVS Vann, avløp og ventilasjon

Offentlig vann- og avløpsnett, balansert ventilasjon med ett anlegg per boenhet

VVS-installasjoner for boligene

Gulv Gulvbelegg og parkett

Gulvbelegg og parkett i oppholdsrom

Gulvbehandling i boligene

Maling Innvendig og utvendig maling

Maling av innvendige og utvendige flater

Maling for boligprosjektet

Renovasjon Renovasjonsbygg

Antall: 1

Renovasjonsbygg på ca. 23,4 m² plassert ved innkjørsel, samlet hentested for avfall

Felles renovasjonsbygg for boligområdet

Terrasse Terrasser og balkonger

🧱 Tre

Antall: 6

Terrasser på ca. 10-15 m² tilknyttet leiligheter og rekkehus, balkonger på enkelte bygg

Terrasser og balkonger til boligene

Betong Fundamenter og støttemurer

🧱 Betong

Fundamenter, støttemurer i naturstein og betong, samt betongkonstruksjoner

Betongarbeider for fundamenter og støttemurer

Fasade Trepanel fasade

🧱 Tre

Trepanel på fasader med saltak og flate tak, varierende gesims- og mønehøyder

Trepanel fasade på boligene

Trapper Innvendige trapper

🧱 Tre

Antall: 3

Innvendige trapper i boligene

Elektro Elektriske installasjoner

Elektriske installasjoner iht. TEK og gjeldende forskrifter

Elektroarbeider for boligene

Vinduer Sikkerhetsglass vinduer og balkongdører

🧱 Tre med 3-lags energiglass

Antall: 58

Sikkerhetsglass på alle vinduer/balkongdører med brystningshøyde <0,8 m på bakkeplan og verandaer i andre etasjer

Vinduer og balkongdører med sikkerhetsglass iht. TEK-krav

Parkering Parkeringsplasser og carporter

Parkering i carporter og på utendørs parkeringsplasser, inkl. HC-plasser

Parkeringsløsninger for beboere og gjester

Tak Saltak og flate tak

🧱 Taktekking iht. TEK

Saltak på rekkehus og flate tak på deler av boligene

Taktekking for boligene

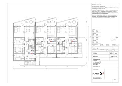
Plantegning

Carport 186.0 m²

Etasje 1 186.0 m²

Rom Areal Vinduer Dører
Sportsbod 1 5.2 m² 0 1
Parkering 2 31.7 m² 0 0
Sportsbod 3 5.2 m² 0 1
Parkering 4 31.7 m² 0 0
Sportsbod 5 5.2 m² 0 1
Parkering 6 31.7 m² 0 0

Enebolig 221.6 m²

Etasje 1 221.6 m²

Rom Areal Vinduer Dører
Entre A1.01 14.1 m² 0 1
Sov 3 A1.02 7.7 m² 1 1
Sov 2 A1.03 11.2 m² 1 1
Sov 1 A1.04 7.7 m² 1 1
Stue A1.05 22.6 m² 1 1
Bod/vask A1.06 4.4 m² 0 1
Terrasse A1.08 14.9 m² 0 0
Entre A2.01 8.7 m² 0 1
Sov 2 A2.02 6.9 m² 1 1
Bad A2.03 4.8 m² 0 1
Stue A2.04 24.5 m² 1 1
Bod/vask A2.05 4.2 m² 0 1
Sov 1 A2.06 10.3 m² 1 1
Terrasse A2.08 14.9 m² 0 0
Entre A3.01 8.6 m² 0 1
Sov 2 A3.02 7.0 m² 1 1
Bad A3.03 4.9 m² 0 1
Stue A3.04 24.5 m² 1 1
Bod/vask A3.05 4.3 m² 0 1
Sov 1 A3.06 10.3 m² 1 1
Terrasse A3.08 14.9 m² 0 0

Leilighet 198.4 m²

Etasje 1 198.4 m²

Rom Areal Vinduer Dører
Stue 101 24.3 m² 1 1
Sov 1 102 10.5 m² 1 1
Sov 2 103 6.6 m² 1 1
Bad 104 6.1 m² 0 1
Bod-teknisk 105 3.9 m² 0 1
Entré 106 4.4 m² 0 1
Utebod 107 5.0 m² 0 1
Overbygg 108 7.2 m² 0 0
Terrasse 109 10.0 m² 0 0
Leilighet D1 H01 58.4 m² 2 2
Leilighet D3 H02 58.7 m² 2 2

Fasader

Hovedbygg

Nord
Materiale
Tre
Vinduer
0
Dører
0
Synlige etasjer
1

Enebolig

Nord-Vest
Materiale
Tre
Taktype
Saltak
Høyde
6.4 m
Mønehøyde
8.4 m
Vinduer
6
Dører
1
Balkonger
3
Synlige etasjer
2
Sør-Øst
Materiale
Tre
Taktype
Saltak
Høyde
6.4 m
Mønehøyde
8.4 m
Vinduer
6
Dører
2
Balkonger
2
Synlige etasjer
2
Sør
Materiale
Tre
Taktype
Flatt tak
Høyde
6.7 m
Mønehøyde
8.9 m
Vinduer
1
Dører
0
Balkonger
1
Synlige etasjer
2
Nord
Materiale
Tre
Taktype
Flatt tak
Høyde
6.7 m
Mønehøyde
8.9 m
Vinduer
1
Dører
0
Balkonger
1
Synlige etasjer
2
Sør-Vest
Materiale
Tre
Taktype
Flatt tak
Høyde
6.5 m
Vinduer
5
Dører
1
Balkonger
1
Synlige etasjer
2
Nord-Øst
Materiale
Tre
Taktype
Flatt tak
Høyde
6.5 m
Vinduer
0
Dører
1
Balkonger
1
Synlige etasjer
2
Øst
Materiale
Tre
Taktype
Saltak
Høyde
6.5 m
Mønehøyde
8.2 m
Vinduer
10
Dører
2
Balkonger
2
Synlige etasjer
2
Vest
Materiale
Tre
Taktype
Saltak
Høyde
6.5 m
Mønehøyde
8.2 m
Vinduer
4
Dører
2
Balkonger
2
Synlige etasjer
2

Hendelser

16.04.2026 Orientering om mindre endringar av teikningsgrunnlaget for Lunden
16.04.2026 Løyve til igangsetting - Lunden bustadpark - BS4
10.04.2026 Søknad om igangsettingstillatelse 45/236
24.03.2026 Supplering av søknad 45/236
27.08.2025 Løyve til igangsetting - del av tiltak - Lunden bustadpark
27.08.2025 Søknad om igangsettingstillatelse 45/236
06.08.2025 Innsending av rammeteikningar Lunden 45/236 + 44/329
11.07.2025 Supplering av søknad 45/236
29.06.2025 Dispensasjon og rammeløyve - Lunden bustadpark
20.05.2025 Søknad om rammetillatelse 45/236