NewConstruction Igangsettingstillatelse Leilighetsbygg

Nytt boligbygg med 49 leiligheter i Steinkleiva 4, Kristiansand

📍 Steinkleiva 4

Nøkkelinfo

Sakstype
Nybygg
Bygningstype
Leilighetsbygg
Bruksareal
2,748 m²
Boenheter
49
Kommune
Grimstad
Fylke
Agder
Gnr / Bnr
152 / 1383
Saksnummer
25/03730
Fase
Igangsettingstillatelse

Om byggesaken

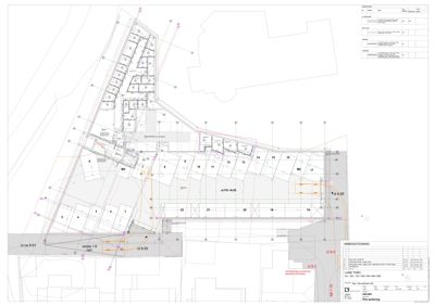
Nytt boligbygg i Steinkleiva 4, Kristiansand, består av 49 leiligheter med totalt 2748 m² BRA fordelt på 5 etasjer over parkeringsplan. Bygget har betongkonstruksjoner med stålkonstruksjoner, flatt tak og fasader i betong med innglassede balkonger. Det er planlagt innglassing av balkonger og lydreduserende tiltak for å oppnå stille side for soverom i henhold til støykrav. Bygget har tekniske rom for fjernvarmetilkobling, ventilasjon, VVS og elektroinstallasjoner. Utomhusanlegg inkluderer opparbeidelse av kvartalslekeplass og landskapsplan med gangveier, beplantning og uteoppholdsarealer. Prosjektet er i igangsettingsfase med godkjente ansvarsrettigheter for prosjektering og utførelse innen betong, tømrer, VVS, elektro, ventilasjon, heis og brannvern.

Produkter og materialer

Trapper Innvendige trapper

Antall: 1

Innvendig trapp fra kjeller til plan 1, avlukket i egen branncelle

Innvendig trapp med branncelleavlukking

Maling Innvendig maling

Innvendig maling og overflatebehandling

Innvendig maling av vegger og tak

Mur Mur-, puss- og flisearbeid

Murarbeid, puss og flisearbeid, fuktsikring i våtrom

Murarbeid og fuktsikring i våtrom

Isolasjon Isolasjon i vegger og tak

🧱 EPS, Rockwool

Isolasjon i vegger, tak og gulv for varme- og lydisolering

Isolasjon for termisk og lydmessig komfort

Gulv Gulvbelegg

Gulvbelegg i leiligheter og fellesarealer

Gulvbelegg og overflatebehandling

Rekkverk Balkongrekkverk

🧱 Tett rekkverk med lydabsorberende egenskaper

Antall: 12

Tette balkongrekkverk for lydreduksjon

Balkongrekkverk med lydabsorberende egenskaper

Stål Bærende metallkonstruksjoner

Stålkonstruksjoner for bærende elementer i bygget

Bærende stålkonstruksjoner i boligbygg

Bad Baderomsinnredning

Antall: 49

Baderomsinnredning og sanitærutstyr i hver leilighet

Standard bad med sanitærutstyr

Fasade Betongfasade med innglassing

🧱 Betong, glass

Fasader i betong med innglassede balkonger, lydabsorbenter og tette balkongrekkverk

Betongfasade med innglassede balkonger og lydreduserende tiltak

Ventilasjon Ventilasjons- og klimaanlegg

Installasjon av ventilasjons- og klimaanlegg med varme-, kjøle- og gjenvinningsfunksjoner

Ventilasjons- og klimaanlegg for boligbygget

Elektro Brannalarmanlegg og ledesystem

Installasjon av brannalarmanlegg og ledesystem

Brannalarmanlegg og ledesystem for sikkerhet

Balkong Innglassede balkonger

🧱 Glass og aluminium

Antall: 12

Fast innglassing med luftemuligheter for 9 soveromsvinduer

Innglassing for balkonger for å oppnå stille side

Terrasse Utearealer og balkonger

Antall: 12

Balkonger med innglassing, utearealer med beplantning og gangveier

Utearealer med balkonger og felles grøntområder

Heis Løfteinnretninger

Prosjektering og installasjon av heis

Heisinstallasjon i boligbygget

Grunnarbeid Veg- og grunnarbeider

Graving, sprengning, oppfylling, planering og komprimering for fundamentering og terrengtilpasning

Grunnarbeider for byggeplass og fundamentering

VVS Varme- og kuldeinstallasjoner

Tilkobling av varme- og kjølebaerer til ventilasjonsaggregater og sekundærsiden til varmeveksler fra fjernvarme

Varme- og kuldeinstallasjoner med fjernvarmetilkobling

Vinduer Fasadevindu med lydisolering

🧱 3-lags energiglass

Antall: 18

Vinduer med lydkrav for å oppnå støygrenser under 55 dB

Vinduer med lydisolering for støyreduksjon

Grunnarbeid Vann- og avløpsanlegg

Utvendige og innvendige vann- og avløpsinstallasjoner, bunnledninger

Vann- og avløpsanlegg for boligbygget

Tak Flatt tak

🧱 Membran og isolasjon

Flatt tak med taktekking og isolasjon

Flatt tak med membran og isolasjon

Betong Plasstøpte betongkonstruksjoner

Betongarbeider og stålarbeider for bærende og ikke-bærende konstruksjoner, inkl. fundamenter

Betongkonstruksjoner for boligbygg, fundamenter og bærende elementer

Kjøkken Kjøkkeninnredning

Antall: 49

Kjøkkeninnredning i hver leilighet

Standard kjøkkeninnredning for boligene

VVS Sanitærinstallasjoner

Innvendige sanitærinstallasjoner, bunnledninger, tilkobling til fjernvarme

Sanitærinstallasjoner og vannbårne varme- og kuldeinstallasjoner

Fasader

Apartment Building

Nord
Materiale
Betong
Taktype
Flatt tak
Vinduer
18
Dører
1
Balkonger
12
Synlige etasjer
4

Hendelser

22.04.2026 2025003730-45 Steinkleiva 2 Supplering av søknad 152/1383
20.04.2026 2025003730-44 Steinkleiva 4 - 152/1383 - foreløpig tilbakemelding på søknad om igangsettingstillatelse
08.04.2026 2025003730-43 Steinkleiva 2 Søknad om igangsettingstillatelse 152/1383
12.03.2026 2025003730-42 Steinkleiva 4 - 152/1383 - svar på henvendelse vedrørende fremdriftsplan
11.03.2026 2025003730-40 Steinkleiva 4 152/1383/0/0, nytt bygg - Boligformål - etterlyser fremdriftsplan
11.03.2026 2025003730-41 Steinkleiva 4 152/1383/0/0, nytt bygg - Boligformål - vedlagte redegjørelse for fravik fra TEK17.
12.01.2026 2025003730-39 Steinkleiva 2 Supplering av søknad 152/1383
12.01.2026 2025003730-38 Steinkleiva 4 - 152/1383 - boligbygg - igangsettingstillatelse del 2 og dispensasjon
12.01.2026 2025003730-37 Steinkleiva 4 - 152/1383 - endring av tiltakshaver
08.01.2026 2025003730-36 Steinkleiva 4 152/1383/0/0, igansettingstillatelse - tilleggsopplysninger
22.12.2025 2025003730-35 Steinkleiva 4 152/1383/0/0, nytt bygg - Boligformål - søknad om midlertidig dispensasjon