NewConstruction Soeknad Leilighetsbygg

Ny leilighetsbygg med parkeringskjeller i Sundgata 13, Drammen

📍 Sundgata 13 , 3015 DRAMMEN

Nøkkelinfo

Sakstype
Nybygg
Bygningstype
Leilighetsbygg
Bruksareal
1,185 m²
Boenheter
16
Kommune
Drammen
Fylke
Buskerud
Gnr / Bnr
114 / 964
Saksnummer
26/03029
Fase
Søknad

Om byggesaken

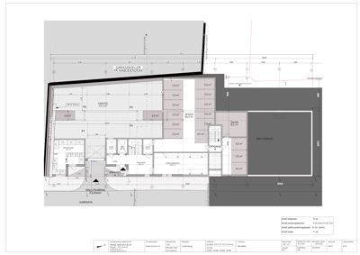
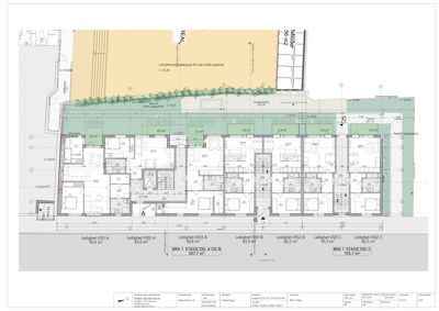
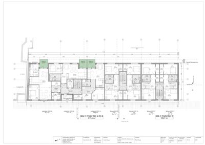
Ny boligbebyggelse i Sundgata 13-19, Drammen, bestående av 16 leiligheter fordelt på to fulle etasjer og en inntrukket loftsetasje. Bygget har en parkeringskjeller delvis under terreng med fire parkeringsplasser, boder og sykkelparkering. Bygget er delt i to volum for å tilpasse terrengstigningen og omkringliggende bebyggelse, med saltak mot gaten og flatt tak mot indre gårdsrom hvor det etableres en felles takterrasse. Fasader er i trekledning med variasjon i kledning og vindusformater. Utearealer inkluderer private balkonger, felles uteoppholdsarealer på bakkeplan og takterrasse, samt en sandlekeplass for barn. Grunnforholdene består av kvikkleire, og det er utarbeidet geoteknisk rapport med anbefalte sikringstiltak. Bygget oppfyller krav til brannsikkerhet, støy, parkering og universell utforming i henhold til gjeldende reguleringsplan, kommuneplan og tekniske forskrifter.

Produkter og materialer

VVS Sprinkleranlegg

Heldekkende sprinkleranlegg i bolig og parkeringskjeller iht. NS-EN 16925 og NS 12845

Automatisk slokkeanlegg for brannsikkerhet

Dører Ytterdører og branndører

🧱 Tre/metal

Antall: 40

Branndører EI2 30-Sa og EI2 60-CSa i branncelleskiller, ytterdører til leiligheter og fellesarealer

Dører med brannmotstand i tråd med brannkonseptet

Trapper Innvendige trapper og rømningsbalkonger

🧱 Stål/betong

Antall: 3

Trapperom med røykventilasjon, rømningsbalkonger med rekkverk i ubrennbart materiale

Trapper og rømningsbalkonger for leilighetsbygg

Fasade Trekledning med variasjon

🧱 Tre

Fasader med horisontal og vertikal trekledning, overflate B-s3,d0 utvendig

Fasader i tre med variasjon i kledning og fargebruk

Grunnarbeid Spunt og pelefundamentering

🧱 Stålspunt, borede peler til berg

Spunt for utgraving, kalksementstabilisering ved behov, borede peler til berg for fundamentering

Grunnarbeider for stabilitet og fundamentering i kvikkleireområde

Maling Utvendig maling

🧱 Værbestandig maling

Maling av trekledning i lyse fargetoner

Overflatebehandling av fasader

Vinduer Rømningsvinduer og fasadevinduer

🧱 Tre/aluminium

Antall: 59

Vinduer med brannmotstand EW 60 mot utvendig rømningsvei, lydisolasjon Rw + Ctr ≥ 33 dB for leiligheter mot trafikkert gate

Vinduer for leiligheter, inkludert rømningsvinduer, med krav til brannmotstand og lydisolasjon

Terrasse Felles takterrasse og private balkonger

🧱 Tremmegulv, rekkverk i ubrennbart materiale

Antall: 10

Felles takterrasse med rekkverk høyde 1,0 m, private balkonger med maks utstikk 0,6 m

Uteoppholdsarealer på tak og balkonger

Bad Bad og våtrom

🧱 Fliser og membran

Antall: 16

Bad med fliser og membran i henhold til forskrifter

Bad i hver leilighet

Betong Vanntett kjeller

🧱 Betong

Vanntett kjellerkonstruksjon for parkeringskjeller og boder

Kjeller i betong med vanntetting

Gulv Innvendige gulv i leiligheter

🧱 Parkett

Standard parkett i oppholdsrom

Gulvbelegg i leiligheter

Elektro Brannalarmanlegg og nødlys

Brannalarmanlegg kategori 2, ledesystem iht. NS-EN 1838, nødlys i trapperom, sluse, garasje og boder

Brannvarsling og nødlys for sikkerhet

Rekkverk Balkongrekkverk og takterrasserekkverk

🧱 Glass eller stål, ubrennbart materiale

Antall: 10

Rekkverk høyde 1,0 m, lett og visuelt åpent

Sikkerhetsrekkverk på balkonger og takterrasse

Tak Saltak og flatt tak med sedum

🧱 Teglstein/tre/vegetasjon

Saltak mot gaten, flatt tak med sedumtak og takterrasse, takoppløft med arker

Tak med kombinasjon av saltak og flatt tak med sedum og takterrasse

VVS Vann- og avløpsanlegg

Tilknytning til kommunalt vann- og avløpsnett, overvann håndteres på egen grunn med fordrøyningsmagasin og sedumtak

VA-anlegg med overvannshåndtering i henhold til VAO-plan

Fasader

Enebolig

Ukjent
Taktype
Saltak
Vinduer
6
Dører
1
Synlige etasjer
2
Sør-Vest
Materiale
Tre
Taktype
Saltak
Høyde
7.0 m
Mønehøyde
10.0 m
Vinduer
12
Dører
1
Synlige etasjer
3
Nord-Vest
Materiale
Tre
Taktype
Flatt tak
Høyde
7.0 m
Vinduer
14
Dører
2
Balkonger
4
Synlige etasjer
3

Byhus

Nord - Øst
Materiale
Tre
Taktype
Saltak
Høyde
6.8 m
Mønehøyde
9.0 m
Vinduer
6
Dører
0
Balkonger
1
Synlige etasjer
3

Leilighetsbygg

Ukjent
Materiale
Platemontasje
Taktype
Flatt tak
Vinduer
18
Dører
1
Synlige etasjer
3

Boligbygg

Sør
Materiale
Betong
Taktype
Flatt tak
Høyde
9.0 m
Vinduer
14
Dører
1
Balkonger
4
Synlige etasjer
4

Hendelser

21.04.2026 Sundgata 13, anmodning om uttalelse til søknad om oppføring av leilighetsbygg
23.03.2026 Sundgata 13, vi trenger flere opplysninger for å behandle søknaden din
30.01.2026 Sundgata 13 Søknad om rammetillatelse 114/964