NewConstruction Igangsettingstillatelse Leilighetsbygg

Riving og ny leilighetsbygning i Tollbodgata 3, Kristiansand

📍 Tollbodgata 3 , 4611 KRISTIANSAND S

Nøkkelinfo

Sakstype
Nybygg
Bygningstype
Leilighetsbygg
Bruksareal
638 m²
Kommune
Kristiansand
Fylke
Agder
Gnr / Bnr
150 / 1303
Saksnummer
24/15244
Fase
Igangsettingstillatelse

Om byggesaken

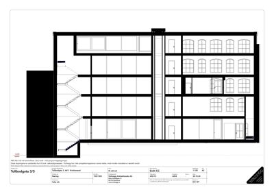
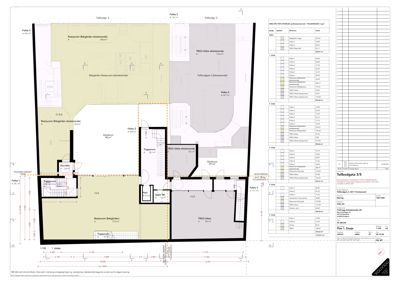
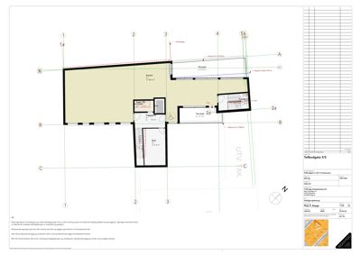
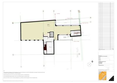
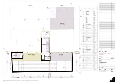
Ny leilighetsbygning oppføres i Tollbodgata 3 i Kristiansand, med fem etasjer inkludert teknisk rom på taket. Bygget har et samlet bruksareal på ca. 638 m² fordelt på kontorer, restaurant, tekniske rom, fellesarealer og lager i kjeller. Fasaden består av mur og betong med farger i rødt og grønt, og det benyttes sandwichpaneler og Formica Vivix. Bygget har flatt tak, flere trapper og balkonger, samt heisinstallasjon. Det er lagt vekt på lydisolasjon mot naboer, universell utforming og tilfredsstillende ventilasjon. Prosjektet inkluderer omfattende grunnarbeider, bærende konstruksjoner i betong, stål og tre, samt tekniske installasjoner for VVS, elektro, brann og ventilasjon. Byantikvaren har godkjent materialvalg, og Arbeidstilsynet har gitt samtykke med vilkår knyttet til arbeidsmiljø. Flere entreprenører og prosjekterende er involvert i prosjektet.

Produkter og materialer

Heis Personheis

Antall: 1

Heis installert av TK Elevator Norway AS

Heis for universell adkomst i bygget

Rekkverk Rekkverk på tak og terrasser

Rekkverk høyde 1100 mm på tak og terrasser

Sikkerhetsrekkverk

Landskapsforming Veg- og utearealer, landskapsforming

Utført av Aut Maskinentreprenør Olav Martin Sørli AS

Utearealer og landskapsarbeid

Terrasse Terrasser i 5. etasje

Antall: 2

Terrasser på ca. 37.2 m² og 17.1 m²

Utendørs terrassearealer

Dører Ytterdører i fasade

🧱 Aluminium eller tilsvarende

Antall: 3

Ytterdører i fasade for adkomst og rømningsveier

Tak Taktekkingsarbeid

Utført av Derbitak Malco AS

Taktekkingsarbeid på flatt tak

Tak Flatt tak med teknisk rom

🧱 Tegl takmateriale på flatt tak, teknisk rom på tak ca. 50 m²

Antall: 1

Teknisk rom på tak med adkomst via stige fra terrasse i 5. etasje

Tak med teknisk rom for ventilasjon og tekniske installasjoner

Stål Bærende stålkonstruksjoner

🧱 Stål

Bærende stålkonstruksjoner montert av AS Bårdsen Smie & Mek Verksted

Bæresystem for bygget

Overflater STO-puss fasade

🧱 STO-puss

Fargekode 16128 (Rød/Rust) på fasade mot bakgård

Utvendig puss på fasade

Vinduer Aluminiumsvinduer med sprosser

🧱 Aluminium, vintage uttrykk, leverandør Nordan

Antall: 15

Vindusprofiler med sprosser, 3-lags energiglass

Fasadevinduer for kontor og restaurantområder

Betong Plasstøpte betongkonstruksjoner og fundamenter

🧱 Betong

Fundamenter og bærende konstruksjoner i betong

Bæresystem for bygget

Tømrer Tømrerarbeid og montering av trekonstruksjoner

🧱 Tre

Utført av HSH Entreprenør AS, både klimaskjerm og innvendig arbeider

Trekonstruksjoner og tømrerarbeid

Mur Murarbeid

Utført av FS Mur AS

Murarbeid i bygget

Prefab betongelementer Prefab betongelementer over gulv på grunn

🧱 Prefab betongelementer

Produsert av Heidelberg Materials Prefab Norge AS

Prefabrikkerte betongelementer for konstruksjon

Ventilasjon Ventilasjons- og klimainstallasjoner

Prosjektert av Agder Ventilasjon AS

Ventilasjonssystemer for bygget

Trapper Innvendige trapper

Antall: 2

Trapp 1 og Trapp 2 i bygget, håndløpere 90 cm høyde

Trapper for adkomst mellom etasjer

Sandwichelementer Montering av sandwichelementer

🧱 Sandwichelementer

Utført av Børslid Montasje AS

Fasade- og veggelementer

Grunnarbeid Pelearbeider og grunnarbeider

Utført av Grunn Solid AS

Grunnarbeider for fundamentering

Overflater Ultraboard lydisolerende gips

🧱 Ultraboard gipsplater

To lag for lydisolasjon i vegger mot bar/restaurant

Innvendig lydisolasjon

Elektro Installasjon av ledesystem og brannalarmanlegg

Utført av Elpunkt AS

Brann- og ledesystemer

Fasade Sandwichpaneler og Formica Vivix fasade

🧱 Lindab sandwich paneler med alu overflate, Formica Vivix + i farge Eukalyptus green

Sandwich paneler i fargen 'Skogsgrønn', fasader med STO-puss i rød farge (Sto fargekode 16128), aluminiumsvinduer med vintage uttrykk fra Nordan

Fasadeelementer for nybygg, inkludert lydisolasjon og fargevalg godkjent av byantikvar

VVS Sanitærinstallasjoner, varme- og kuldeinstallasjoner

Prosjektert og utført av ASKE Rørleggermester AS

Sanitær- og varmeinstallasjoner

Fasader

Næring

Nordøst
Materiale
Betong
Taktype
Flatt tak
Høyde
16.8 m
Mønehøyde
21.9 m
Vinduer
2
Dører
0
Balkonger
1
Synlige etasjer
4
Sørøst
Materiale
Mur
Taktype
Flatt tak
Takmat.
Tegl
Høyde
16.9 m
Mønehøyde
23.6 m
Vinduer
15
Dører
3
Balkonger
1
Synlige etasjer
4
Sørvest
Materiale
Betong
Taktype
Flatt tak
Høyde
16.9 m
Mønehøyde
21.9 m
Vinduer
0
Dører
0
Synlige etasjer
5

Hovedbygg

Nordvest
Materiale
Betong
Taktype
Flatt tak
Høyde
16.8 m
Mønehøyde
21.9 m
Vinduer
3
Dører
0
Balkonger
3
Synlige etasjer
4

Hendelser

23.04.2026 2024015244-35 Tollbodgata 3 Søknad om midlertidigbrukstillatelse 150/1303
19.11.2025 2024015244-34 Tollbodgata 3 - 150/1303, igangsettingstillatelse 5 for hele resterende del av tiltaket.
17.11.2025 2024015244-33 Tollbodgata 3 Søknad om igangsettingstillatelse 150/1303
14.10.2025 2024015244-32 Tollbodgata 3 - 150/303 - etterlyser tilbakemelding som viser at vilkår er oppfylt
20.05.2025 2024015244-31 Tollbodgata 3 - 150/1303, igangsettingstillatelse 4 for resterende arbeider mht. bærende yttervegger, tak etc.
19.05.2025 2024015244-30 Tollbodgata 3 Søknad om igangsettingstillatelse 150/1303
10.04.2025 2024015244-29 Tollbodgata 3 -150/1303, godkjent endring av tillatelse for oppføring av teknisk rom på tak – korrigert vedtak.
09.04.2025 2024015244-28 Tollbodgata 3 - 150/1303, godkjent endring av tillatelse for oppføring av teknisk rom på tak.
07.04.2025 2024015244-25 Tollbodgata 3 Søknad om endring av gitt tillatelse eller godkjenning 150/1303
24.03.2025 2024015244-23 Tollbodgata 3 150/1303/0/0, riving og oppføring av ny bygning - anmodning om uttalelse til materialbeskrivelsen