NewConstruction UnderBehandling Leilighetsbygg

Oppføring og endring av leilighetsbygg i Tollinspektør Flors gate 7, Kristiansund

📍 Tollinspektør Flors gate 7 , 6510 KRISTIANSUND N

Nøkkelinfo

Sakstype
Nybygg
Bygningstype
Leilighetsbygg
Bruksareal
600 m²
Boenheter
4
Kommune
Kristiansund
Fylke
Møre og Romsdal
Gnr / Bnr
6 / 329
Saksnummer
25/05200
Fase
Under behandling

Om byggesaken

Leilighetsbygget i Tollinspektør Flors gate 7 består av fire etasjer inkludert kjeller og loft, med totalt ca. 600 m² BRA fordelt på flere boenheter. Bygget har tre trapper, balkonger og verandaer, og er oppført med trevegger og saltak. Bygget har omfattende branntekniske tiltak inkludert brannceller for hver boenhet, røykventilasjon, brannalarmanlegg kategori 2, brannklassifiserte dører og vinduer, samt manuelle slokkeapparater. Det er utført endringer i fasade og tilbygg, inkludert ny veranda og trapp, samt installasjon av brannstige med ryggbøyle. Bygget har flere fravik fra preaksepterte løsninger, dokumentert i brannkonseptet, men tilfredsstiller funksjonskravene i TEK17 med unntak av krav til automatisk slokkeanlegg. Det foreligger søknad om ferdigattest, men denne er avslått på grunn av manglende samsvar med opprinnelig tillatelse og manglende fullført ansvarsrett. Prosjektet er i fase under behandling med pågående suppleringer og tilstandsvurderinger.

Produkter og materialer

Tømrer Trearbeider og snekkerarbeid

🧱 Tre

Tømrerarbeid for vegger, tak, trapper og fasade

Tømrerarbeid i hele bygget

Varmepumpe Luft-til-luft varmepumpe

Antall: 1

Varmepumpe luft til luft som energiforsyning

Oppvarming av bygget

VVS Sanitæranlegg og varmepumpe luft

Sanitæranlegg utført av Langset Rør AS, varmepumpe luft til luft

VVS-installasjoner for sanitær og varme

Gulv Parkett og fliser

🧱 Eikeparkett og fliser

Gulv i leiligheter med eikeparkett og fliser på bad

Innvendige gulvflater i boenheter

Rekkverk Balkongrekkverk og trapperekkverk

🧱 Tre/metall

Rekkverk på balkonger og trapper iht. forskrift

Sikkerhetsrekkverk for balkonger og trapper

Vinduer Brannklassifiserte vinduer EI30 og EI60

🧱 Glass med brannmotstand

Antall: 40

Vinduer med brannmotstand EI30 mot utvendig stige, øvrige vinduer EI60 i branncellebegrensende vegger

Vinduer tilpasset brannkrav for rømningsveier og branncellebegrensning

Fasade Tre kledning og stående kledning på veranda

🧱 Tre

Stående kledning på ny veranda, trefasade med saltak

Fasade med trepanel og saltak, inkludert veranda og trapp

Maling Innvendig maling

Innvendige overflater malt i henhold til branntekniske krav

Maling av vegger og himlinger

Ventilasjon Naturlig ventilasjon

Bygget har naturlig ventilasjon, ikke mekanisk ventilasjonsanlegg

Ventilasjon for bygget

Grunnarbeid Ringmur og fundamentering

🧱 Betong

Ringmur og fundamentering for bygget

Grunnarbeid for stabilitet og bæreevne

Tak Saltak med teglstein eller betongtakstein

🧱 Teglstein/betongtakstein

Tak med brannklasse Broof (t2)

Saltak med brannklassifisert taktekking

Isolasjon Ubrennbar isolasjon A2-s1,d0

🧱 Glassull og ubrennbar isolasjon

Isolasjon i vegger og tak med ubrennbar klasse A2-s1,d0

Isolasjon med brannhemmende egenskaper

Dører Brannklassifiserte dører EI30, EI60

🧱 Brannklassifisert dørmateriale

Antall: 30

Dører til trapperom EI60, dører fra leilighet til trapperom EI30

Brannklassifiserte dører i rømningsveier og brannceller

Betong Etasjeskillere og bærende konstruksjoner

🧱 Betong og treverk

Bærende hovedsystem med R60 brannmotstand

Bærende konstruksjoner i bygget

Terrasse Ny veranda med trapp

🧱 Tre

Antall: 1

Ny veranda ca. 20,5 m² med trapp mot vest, stående kledning

Utendørs terrasse med trapp

Elektro Brannvarslingsanlegg kategori 2

Heldekkende brannalarmanlegg med optiske røykdetektorer, Siemens Cerberus Pro system

Brannalarmanlegg for tidlig varsling og sikkerhet

Trapper Innvendige trapper og utvendige rømningsstiger

🧱 Tre og metall

Antall: 3

Trapper i alle etasjer, utvendig brannstige med ryggbøyle

Trapper for intern kommunikasjon og rømningsstiger for evakuering

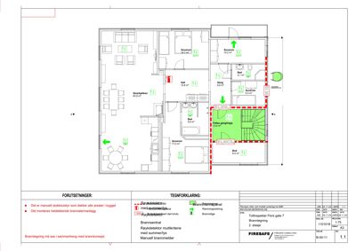
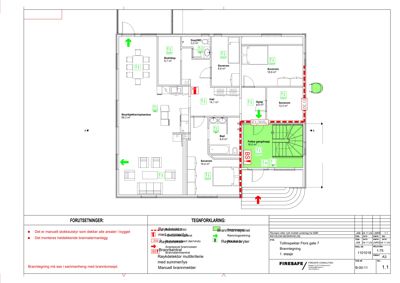
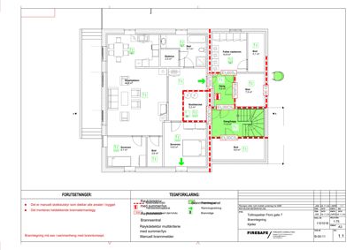
Plantegning

Kjeller 206.7 m²

Etasje 0 206.7 m²

Rom Areal Vinduer Dører
Stue/kjøkken 01 44.8 m² 2 1
Badstue 02 2.5 m² 0 1
Bad 03 8.7 m² 0 1
Soverom 04 9.1 m² 1 1
Soverom 05 14.8 m² 1 1
Bod 06 3.6 m² 0 1
Bod 07 8.8 m² 0 1
Bod 08 7.5 m² 0 1
Bod 09 5.1 m² 0 1
Felles vaskerom 10 10.9 m² 0 1
Gang 11 5.9 m² 0 2
Gang/trapp 12 11.6 m² 0 1
Bod/teknisk 13 5.2 m² 0 1

Enebolig 393.4 m²

Etasje 1 193.2 m²

Rom Areal Vinduer Dører
Stue/kjøkken/spisestue 101 56.3 m² 3 1
Bod/disp. 102 6.7 m² 0 1
Dusj/WC 103 3.0 m² 0 1
Soverom 104 8.6 m² 1 1
Soverom 105 18.9 m² 1 1
Soverom 106 16.4 m² 1 1
Soverom 107 12.5 m² 1 1
Hall 108 14.1 m² 0 2
Bad 109 6.9 m² 0 1
Gang 110 4.9 m² 0 1
Felles gang/trapp 111 16.0 m² 0 1
Ny veranda 112 20.5 m² 0 1

Etasje 2 200.2 m²

Rom Areal Vinduer Dører
Stue/kjøkken 201 63.9 m² 1 1
Soverom 202 17.0 m² 1 1
Bad 203 6.9 m² 0 1
Hall 204 10.8 m² 0 2
Soverom 205 14.7 m² 1 1
Gang 206 6.6 m² 0 2
Bad 207 4.1 m² 0 1
Soverom 208 10.2 m² 1 1
Soverom 209 6.3 m² 1 1
Felles gang/trapp 210 13.0 m² 0 2
Bod 211 8.4 m² 1 1

Fasader

Enebolig

Nord
Materiale
Tre
Taktype
Saltak
Vinduer
6
Dører
0
Balkonger
1
Synlige etasjer
2
Øst
Materiale
Tre
Taktype
Saltak
Vinduer
4
Dører
1
Synlige etasjer
2
Sør
Materiale
Tre
Taktype
Saltak
Vinduer
6
Dører
0
Synlige etasjer
2
Vest
Materiale
Tre
Taktype
Saltak
Vinduer
5
Dører
1
Balkonger
1
Synlige etasjer
2

Hendelser

20.04.2026 25/05200-9 Tollinspektør Flors gate 7, tilbakemelding på henvendelse
17.04.2026 25/05200-8 Tollinspektør Flors gate 7 - Status, innsending og videre fremdrift
12.02.2026 25/05200-7 Tollinspektør Flors gate 7, foreløpig tilbakemelding på søknad
09.02.2026 25/05200-6 Tollinspektør Flors gate 7 - supplerende opplysninger
14.10.2025 25/05200-5 Tollinspektør Flors gate 7, foreløpig tilbakemelding på søknad om søknad om ferdigattest
29.09.2025 25/05200-4 Tollinspektør Flors gate 7 Supplering av søknad 6/329
08.08.2025 25/05200-1 Tollinspektør Flors gate 7 Søknad om ferdigattest 6/329
08.08.2025 25/05200-3 Tollinspektør Flors gate 7 - Avslag på søknad om ferdigattest
08.08.2025 25/05200-2 Tollinspektør Flors gate 7 Supplering av søknad 6/329