VerticalExtension Rammetillatelse Leilighetsbygg

Påbygg og fasadeendring på leilighetsbygg i Gislesvingen 5A, Kløfta

📍 Gislesvingen 5A , 2040 KLØFTA

Nøkkelinfo

Sakstype
Påbygg
Bygningstype
Leilighetsbygg
Bruksareal
448 m²
Boenheter
4
Kommune
Ullensaker
Fylke
Akershus
Gnr / Bnr
29 / 407
Saksnummer
2025/7657
Fase
Rammetillatelse

Om byggesaken

Prosjektet omfatter påbygg av én etasje på et eksisterende leilighetsbygg med fire leiligheter på bakkeplan og kjeller, samt fasadeendringer og et tilbygg med nytt trapperom og heis. Påbygget utvider en av de eksisterende leilighetene og inkluderer en privat takterrasse på 38 m² med intern trapp til balkong. Bygningen får saltak i tråd med omkringliggende bebyggelse, og fasadene kombinerer naturmaterialer som tre og tegl med moderne elementer som glass og metall for et tidsriktig uttrykk. Totalt areal for påbygget er ca. 448 m², med universell utforming og brannsikkerhet ivaretatt gjennom brannkonsept og tekniske løsninger. Parkeringsplasser etableres i underetasje og på terreng. Grunnforholdene er utfordrende med kvikkleire, og det kreves oppdatert geoteknisk rapport før igangsetting. Prosjektet er i rammesøknadsfase med tillatelse gitt, men under klagebehandling.

Produkter og materialer

Vinduer Brannklassifiserte vinduer

🧱 Glass med brannmotstand EI30 i branncellebegrensende vegger

Antall: 14

Vinduer i branncellebegrensende vegger med EI30 brannmotstand, enkelte vinduer som rømningsvinduer

Vinduer med brannmotstand og rømningsfunksjon i henhold til brannkonsept

Dører Brannklassifiserte dører og rømningsdører

🧱 Dører med brannmotstand EI2 30-CSa, selvlukkende der påkrevd

Antall: 20

Dører i branncellebegrensende vegger, dører til trapperom, dører til balkonger og takterrasse

Brannklassifiserte dører for rømningsveier og branncellebegrensning

Tak Saltak og flatt tak

🧱 Teglstein eller tilsvarende

Påbygget får saltak i tråd med eksisterende bebyggelse, takterrasse med rekkverk

Saltak på påbygg, flatt tak på takterrasse med rekkverk

Fasade Fasade med tre- og teglmaterialer

🧱 Tre, tegl, glass, metall

Materialitet og fargevalg i tråd med lokale tradisjoner, naturmaterialer kombinert med moderne elementer for energiytelse

Fasadeendring med bruk av naturmaterialer og moderne elementer for estetikk og energiytelse

Elektro Brannalarmanlegg kategori 2

Heldekkende automatisk brannalarmanlegg med optiske røykdetektorer, direktevarsling til 110-sentral

Brannalarmanlegg for tidlig varsling og sikkerhet

Garasje Parkeringskjeller og utendørs parkeringsplasser

Antall: 8

4 parkeringsplasser i underetasje, 4 gjesteplasser på terreng, sykkelparkering i underetasje

Parkeringsplasser for beboere og gjester

Brannvern Håndslokkeapparater og brannslanger

Håndslokkeapparater som dekker alle arealer, tydelig merket og plassert utenfor trapperom

Manuelt brannslokkeutstyr for effektiv innsats

VVS Utskifting av VA-rør

Utskifting av eksisterende VA-anlegg med krav om positiv VA-uttalelse

Oppgradering av vann- og avløpsrør

Terrasse Privat takterrasse med rekkverk

Antall: 1

Takterrasse på 38 m² med rekkverk, tilknyttet leilighet via interntrapp til balkong

Utendørs oppholdsareal på tak

Heis Personheis i nytt trapperom

Antall: 1

Heis fra parkeringskjeller til 2. etasje, ikke krav om sprinkleranlegg

Heis for universell utforming og tilgjengelighet

Trapper Innvendig trapp og utvendig interntrapp

🧱 Tre/stål med brannbeskyttelse

Antall: 2

Trapperom type Tr 1, intern trapp mellom påbygg og underliggende leilighet, utvendig trapp mellom takterrasse og balkong

Trapper for intern kommunikasjon og rømningsvei

Grunnarbeid Fundamentering og geoteknikk

Oppdatert geoteknisk rapport kreves pga. dårlige grunnforhold og kvikkleire, tiltak for å unngå setninger

Fundamentering tilpasset grunnforhold med kvikkleire

Maling Overflatebehandling fasade og innvendig

Overflater med branntekniske egenskaper i henhold til TEK17 og VTEK, inkludert D-s2,d0 og B-s1,d0 klassifiseringer

Brannsikre overflatebehandlinger for vegger, tak og kledning

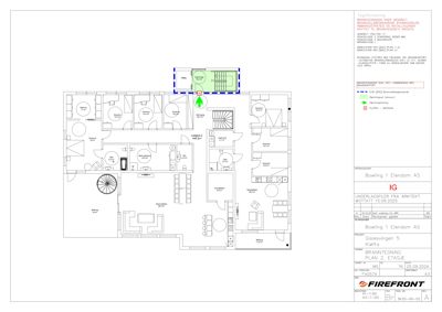
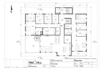
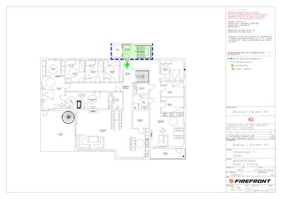
Plantegning

Påbygg 448.3 m²

Etasje 2 448.3 m²

Rom Areal Vinduer Dører
Stue/kjøkken 201 88.3 m² 2 1
Grovkjøkken 202 9.2 m² 0 1
Balkong 203 11.9 m² 0 1
Stue 204 36.4 m² 1 1
Soverom 205 10.6 m² 1 1
Soverom 206 10.7 m² 1 1
Soverom 207 15.2 m² 1 1
Bad 208 6.7 m² 0 1
Vask/bod 209 5.1 m² 0 1
Heis/Trapp 210 16.3 m² 0 1
Hall/gang 211 60.1 m² 0 1
Soverom 212 10.2 m² 1 1
Soverom 213 12.4 m² 1 1
Soverom 214 13.2 m² 1 1
Walk-in 215 11.0 m² 1 1
Soverom 216 23.0 m² 1 1
Bad/vaskerom 217 15.6 m² 0 1
Bad 218 8.3 m² 0 1
WC 219 5.2 m² 0 1
Balkong 220 44.0 m² 0 1
Balkong 221 11.9 m² 0 1

Påbygg Kløfta 235.5 m²

Etasje 3 115.0 m²

Rom Areal Vinduer Dører
Takterrasse 301 38.0 m² 0 0

Etasje 1 120.5 m²

Rom Areal Vinduer Dører
Eksisterende Leilighet 1 101 84.8 m² 3 1
Eksisterende Leilighet 2 102 448.3 m² 2 1
Eksisterende Leilighet 3 103 81.2 m² 3 1
Eksisterende Leilighet 4 104 78.3 m² 2 1
Heis/Trapp 105 12.5 m² 0 1

Fasader

Påbygg Kløfta

Nord
Materiale
Tre
Taktype
Flatt tak
Vinduer
10
Dører
2
Balkonger
1
Synlige etasjer
2
Øst
Materiale
Tre
Taktype
Saltak
Vinduer
9
Dører
1
Balkonger
1
Synlige etasjer
2

Hendelser

14.04.2026 Informasjon om klagebehandling - Gnr 29 bnr 407 - Gislesvingen 5A - Fasadeendring og påbygg - Boligbygg
14.04.2026 Oversendelse av klagesak for endelig avgjørelse - Gnr 29 bnr 407 - Gislesvingen 5A - Fasadeendring og påbygg - Boligbygg
07.04.2026 Vurdering av habilitet i behandling av byggesak - Gnr 29 bnr 407 - Gislesvingen 5A - Fasadeendring og påbygg - Boligbygg
24.03.2026 Vurdering av offentlighet - klage - Gnr 29 bnr 407 - Gislesvingen 5A - Fasadeendring og påbygg - Boligbygg
17.03.2026 Supplering til klage - Gnr 29 bnr 407 - Gislesvingen 5A - Fasadeendring og påbygg - Boligbygg
13.03.2026 Ber om redegjørelse i klagesak - gnr 29 bnr 407 - Gislesvingen 5A
13.03.2026 Avslag på anmodning om utsatt iverksettelse - Gnr 29 bnr 407 - Gislevingen 5A
12.03.2026 Ber om uttalelse i forbindelse med mottatte klager - Gnr 29 bnr 407 - Gislevingen 5A - Fasadeendring og påbygg - Boligbygg
04.03.2026 Bekreftelse på mottatt klage - Gnr 29 bnr 407 - Gislevingen 5A - Fasadeendring og påbygg - Boligbygg
27.02.2026 Nabomerknader - Gnr 29 bnr 407 - Gislesvingen 5A - Bruksendring - Bolig
27.02.2026 Klage på byggesaksvedtak - Gnr 29 bnr 407 - Gislevingen 5A - Fasadeendring og påbygg - Boligbygg
13.02.2026 Spørsmål om mottaker - Gnr 29 bnr 407 - Gislevingen 5A - Fasadeendring og påbygg - Boligbygg
13.02.2026 Bekreftelse på mottatt klage - Gnr 29 bnr 407 - Gislevingen 5A - Fasadeendring og påbygg - Boligbygg
12.02.2026 Svar på henvendelse om klagefrist - gnr 29 bnr 407 - Gislevingen 5A
12.02.2026 Tillegg til klage på vedtak for rammetillatelse - Gnr 29 bnr 407 - Gislevingen 5A - Fasadeendring og påbygg - Boligbygg
11.02.2026 Klage på vedtak for rammetillatelse - Gnr 29 bnr 407 - Gislevingen 5A - Fasadeendring og påbygg - Boligbygg
11.02.2026 Klage på vedtak for rammetillatelse - Gnr 29 bnr 407 - Gislevingen 5A - Fasadeendring og påbygg - Boligbygg
10.02.2026 Dato for overlevering av vedtak om byggesak - Gnr 29 bnr 407 - Gislevingen 5A - Fasadeendring og påbygg - Boligbygg
09.02.2026 Klage på vedtak for rammetillatelse - Gnr 29 bnr 407 - Gislevingen 5A - Fasadeendring og påbygg - Boligbygg
04.02.2026 Klage på vedtak for rammetillatelse - Gnr 29 bnr 407 - Gislevingen 5A - Fasadeendring og påbygg - Boligbygg
27.01.2026 Underretning av vedtak - Gnr 29 bnr 407 - Gislevingen 5A - Fasadeendring og påbygg - Boligbygg
27.01.2026 Rammetillatelse - Gnr 29 bnr 407 - Gislevingen 5A - Fasadeendring og påbygg - Boligbygg
26.01.2026 Oppdatert plantegning - Gnr 29 bnr 407 - Gislesvingen 5A - Bruksendring - Bolig
31.10.2025 Søknad om rammetillatelse - Gnr 29 bnr 407 - Gislevingen 5A - Fasadeendring og påbygg - Boligbygg
26.09.2025 Merknad til nabovarsel - Gnr 29 bnr 407 - Gislevingen 5A