VerticalExtension UnderBehandling Leilighetsbygg

Innredning av loft og påbygg i leilighetsbygg, Kalfarveien 106, Bergen

📍 Kalfarveien 104A , 5022 BERGEN

Nøkkelinfo

Sakstype
Påbygg
Bygningstype
Leilighetsbygg
Bruksareal
49 m²
Boenheter
4
Kommune
Bergen
Fylke
Vestland
Gnr / Bnr
163 / 121
Saksnummer
BYGG-2025/16549
Fase
Under behandling

Om byggesaken

Prosjektet omfatter innredning av eksisterende loftareal til en ny leilighet på ca. 48,7 m² BRA med soverom, bad, kjøkken/stue og gang, under skråtak med nye og utvidede takvinduer. Det etableres en takark med rød båndtekking som tilpasses byggets eksisterende takflate. Eksisterende balkonger i plan 02 og 03 utvides i lengde og dybde. Det oppføres også en ny sportsbod på ca. 20 m² BRA i hagen, tilpasset hovedhusets materialbruk og formspråk. I tillegg er det søkt om tilføring av takterrasse på eksisterende byggets nordside. Bygget er et stort frittliggende boligbygg med 4 etasjer og loft, med tre eksisterende boenheter som økes til fire. Tiltaket inkluderer også oppgradering av klimaskall og tekniske anlegg med etterisolering, nye lavenergivinduer, balansert ventilasjon og varmepumpe. Uteoppholdsareal og parkeringskrav er ivaretatt, og tiltaket er tilpasset kulturmiljøet i området.

Produkter og materialer

Balkong Utvidelse av eksisterende balkonger

🧱 Tre rekkverk

Antall: 2

Eksisterende balkonger i plan 02 og 03 utvides fra 3,35 m til 3,5 m i lengde og fra 1,0 m til 1,6 m i dybde

Utvidelse av balkonger for økt privat uteoppholdsareal

Grunnarbeid Lokal overvannshåndtering (LOD)

Tiltak for lokal overvannshåndtering i henhold til VA-norm og kommunale krav

Overvannshåndtering for ny boenhet og sportsbod

Varmepumpe Effektiv varmekilde med rom- og soneregulering

Varmepumpe installert som kompenserende tiltak for energikrav

Energibesparende varmekilde

Gulv Etterisolering gulv mot grunn/kjeller

Etterisolering begrenset av tilgjengelig høyde, med kapillærbrytende tiltak

Isolasjon av gulv mot grunn

Isolasjon Etterisolering av yttervegger og tak

Innvendig og/eller utvendig etterisolering med dampsperre/fuktsperre, økt isolasjonstykkelse i tak/loft

Forbedring av klimaskall for bedre energiytelse

Vinduer Lavenergiruter 3-lags

Utskifting av vinduer til 3-lags lavenergiruter med forbedret karm og tetting, bevaring av fasadeprofil

Energiforbedring av vinduer

Elektro Energieffektiv belysning og styring

LED-belysning med dimming og tilstedeværelsesstyring

Energibesparende belysning i ny leilighet

Balkong Takterrasse

Antall: 1

Takterrasse på nordside, bredde 2,7 m, dybde 1,84 m, plassert med avstand 1,24 m fra takende

Ny takterrasse tilpasset takets proporsjoner og skjermet av vegetasjon

Garasje Sportsbod

🧱 Material- og formspråk tilpasset hovedhus

Antall: 1

Ny sportsbod i hagen på ca. 20 m² BRA, plassert i bakhagen med lav synlighet

Frittstående sportsbod tilknyttet loftsleiligheten

Vinduer Takvindu

Antall: 4

Nye og utvidede takvinduer, størrelse 66x140 cm, inkludert ett dobbeltvindu (2x 66x140 cm)

Nye takvinduer og utvidelse av eksisterende takvinduer for loftsleilighet

Tømrer Bærekonstruksjoner og brann-/lydskille

Endringer i bærende konstruksjoner, brann- og lydskiller i bygg

Innvendige konstruksjonsendringer for ny leilighet

Ventilasjon Balansert ventilasjon med varmegjenvinner

Balansert ventilasjon med høy virkningsgrad, behovsstyring (CO2/fukt/tidsstyring), termostatregulering per sone

Forbedring av inneklima og energiytelse

Bad Våtromsinnredning

Antall: 1

Nytt bad i loftsleilighet med våtromsstandard

Bad i ny leilighet

Sykkelparkering Sykkelbod

Antall: 1

5 m² bod til ny enhet med plass til 2 sykler

Sykkelparkering og bod for loftsleilighet

Fasade Takark med båndtekking

🧱 Rød båndtekking

Antall: 1

Takark tilpasset eksisterende takflate med rød båndtekking for visuell integrasjon

Ny takark i forbindelse med loftsleilighet

Plantegning

Bod 20.0 m²

Etasje 1 20.0 m²

Rom Areal Vinduer Dører
Bod 01 Bod 01 5.0 m² 0 1
Bod 02 Bod 02 5.0 m² 0 1
Bod 03 Bod 03 5.0 m² 0 1
Bod 04 Bod 04 5.0 m² 0 1

Enebolig 712.0 m²

Etasje 1 119.0 m²

Rom Areal Vinduer Dører
Stue 101 36.5 m² 3 2
Sovev. 1 102 14.5 m² 1 1
Sovev. 2 103 12.5 m² 1 1
Bad 104 6.5 m² 0 1
Kjøkken 105 11.5 m² 1 1
Spisev. 106 18.5 m² 1 1
Gang 107 5.5 m² 0 2
Vaskerom 108 4.5 m² 0 1

Etasje 0 206.5 m²

Rom Areal Vinduer Dører
Kjeller 001 206.5 m² 0 0

Etasje 2 115.4 m²

Rom Areal Vinduer Dører
Kjøkken / Stue 201 19.0 m² 2 1
Entre 202 4.1 m² 0 2
Sov 02 203 9.6 m² 1 1
Bad 204 4.7 m² 0 1
Kjøkken / Stue 205 19.0 m² 2 1
Entre 206 4.1 m² 0 2
Sov 02 207 9.6 m² 1 1
Bad 208 4.7 m² 0 1

Etasje 3 115.4 m²

Rom Areal Vinduer Dører
Kjøkken / Stue 301 36.9 m² 3 1
Gang 302 4.9 m² 0 2
Sov 02 303 11.7 m² 1 1
Bad 304 5.4 m² 0 1
Inngang/trapp 305 11.4 m² 0 1
Sov 02 306 7.2 m² 1 1
Bad 307 3.6 m² 0 1
Vaskerom 308 5.0 m² 0 1

Etasje 4 115.4 m²

Rom Areal Vinduer Dører
Kjøkken/Stue 401 29.6 m² 2 1
Sov 402 6.5 m² 1 1
Tek. 403 2.0 m² 0 1
Sov 02 404 11.2 m² 1 1
Bad 405 4.7 m² 0 1
Gang 406 7.8 m² 0 2

Etasje 5 40.3 m²

Rom Areal Vinduer Dører
Kjøkken / Stue 501 18.6 m² 1 1
Sov 502 11.9 m² 1 1
Bad 503 3.8 m² 0 1

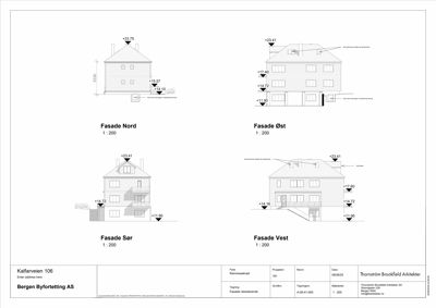
Fasader

Enebolig

Nord
Materiale
Tre
Taktype
Saltak
Høyde
6.3 m
Mønehøyde
23.8 m
Vinduer
4
Dører
1
Synlige etasjer
2
Øst
Materiale
Tre
Taktype
Saltak
Høyde
7.4 m
Mønehøyde
23.4 m
Vinduer
6
Dører
0
Synlige etasjer
3
Sør
Materiale
Tre
Taktype
Saltak
Høyde
7.4 m
Mønehøyde
23.4 m
Vinduer
4
Dører
1
Balkonger
1
Synlige etasjer
3
Vest
Materiale
Tre
Taktype
Saltak
Høyde
7.4 m
Mønehøyde
23.4 m
Vinduer
6
Dører
1
Balkonger
1
Synlige etasjer
3
Sørøst
Materiale
Tre
Taktype
Saltak
Vinduer
8
Dører
0
Balkonger
2
Synlige etasjer
3
Kalf. V.
Materiale
Tre
Taktype
Saltak
Vinduer
4
Dører
0
Balkonger
2
Synlige etasjer
2

Hendelser

13.04.2026 Tillatelse til endring,163/121/0/0 Kalfarveien 106
24.03.2026 Kalfarveien 106 Søknad om endring av gitt tillatelse eller godkjenning 163/121
15.12.2025 Rammetillatelse. 163/121. Kalfarveien 106.
05.12.2025 Fakturagrunnlag
05.12.2025 ubw ordre 20683704
27.11.2025 Rammetillatelse.163/121. Kalfarveien 106.
21.11.2025 Gjennomgått kommentarene til byarkitekten og korrigert prosjektet delvis etterkommer deres innspill
18.11.2025 Spørsmål ifm. Byantikvarens vurdering - 163/121/0/0 Kalfarveien 106, innredning av loft
18.11.2025 Vedrørende uttalelse fra Byantikvaren - 163/121/0/0 Kalfarveien 106, innredning av loft
17.11.2025 Byantikvarens tilbakemelding 2025/250465 163/121/0/0 Kalfarveien 106, innredning av loft
20.10.2025 Kalfarveien 106, anmodning om uttalelse
20.10.2025 Intern høring
13.10.2025 Bekreftelse på mottatt søknad
08.10.2025 Kalfarveien 106 Søknad om rammetillatelse