Rehabilitation Soeknad Leilighetsbygg

Ombygging med bærende konstruksjonsendring i Hyggenstranda 19

📍 Hyggenstranda 19 , 3442 HYGGEN

Nøkkelinfo

Sakstype
Rehabilitering
Bygningstype
Leilighetsbygg
Bruksareal
120 m²
Boenheter
1
Kommune
Asker
Fylke
Akershus
Gnr / Bnr
277 / 19
Saksnummer
26/1161
Fase
Søknad

Om byggesaken

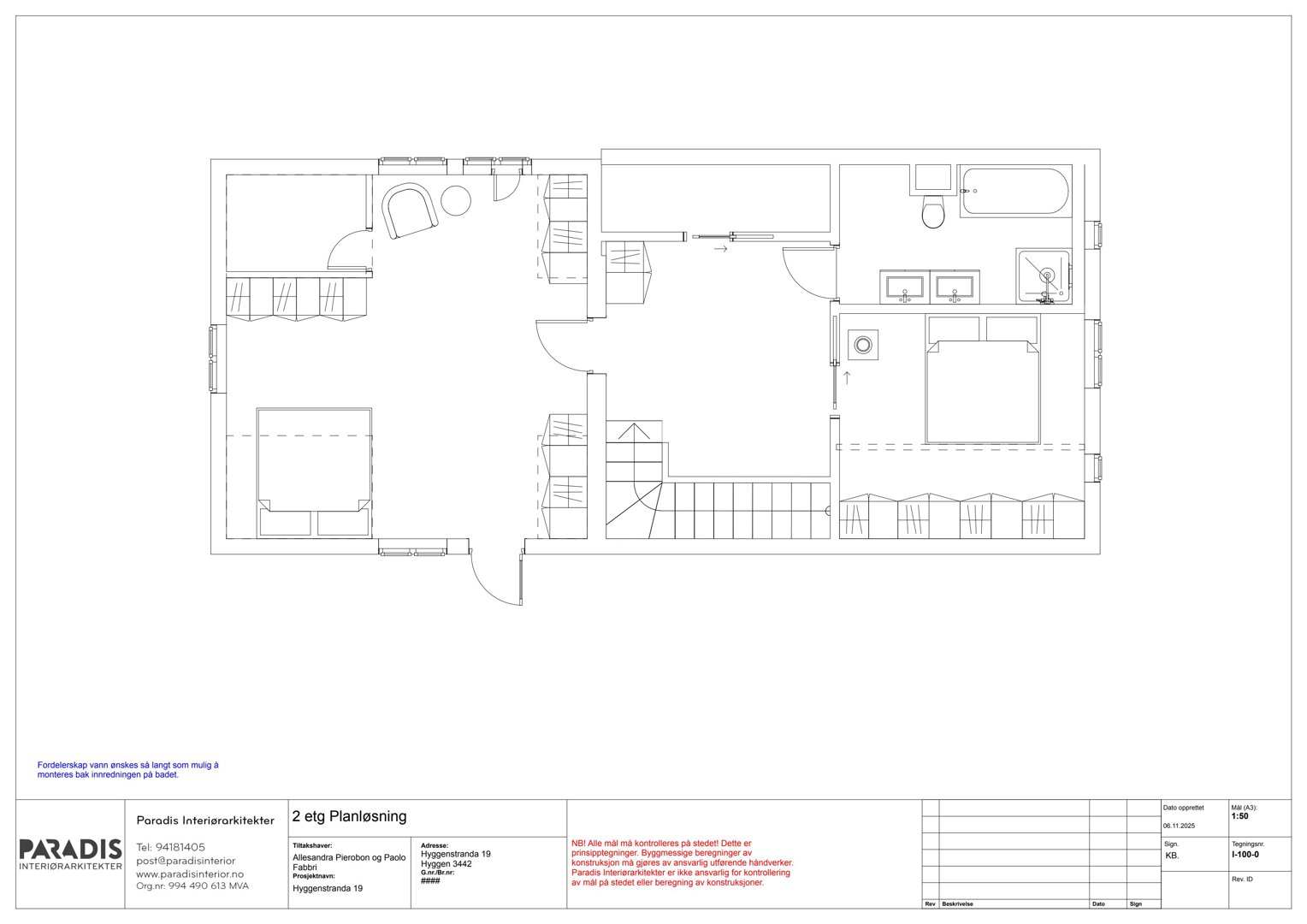
Ombygging av eksisterende leilighetsbygg i Hyggenstranda 19 med endring av bærende konstruksjoner. Prosjektet omfatter innvendige planløsninger i to etasjer, inkludert riving av eksisterende konstruksjoner og ny planløsning for 1. og 2. etasje. Bygget har et totalt areal på ca. 120,5 m² med rom som stue, kjøkken, bad og soverom. Arbeidet inkluderer montering av nye trekonstruksjoner og bærende metall- eller betongkonstruksjoner, samt oppgradering av sanitærinstallasjoner. Det gjøres ingen ytre fasadeendringer, og tiltaket påvirker ikke byggets eksteriør.

Produkter og materialer

Grunnarbeid Riving og forberedelse

Riveplan for 1. og 2. etasje eksisterende konstruksjoner

Riving av eksisterende innvendige konstruksjoner som del av ombyggingen

Gulv Gulvbelegg og overflater

Oppgradering av gulvflater i ombygde rom

Dører Innvendige dører

Antall: 9

Dører i stue, soverom, bad, gang og kjøkken iht. plantegning

Innvendige dører som inngår i ombygging av planløsning

Sanitærinstallasjoner Sanitærinstallasjoner

Oppgradering og montering av sanitærinstallasjoner i ombygging

Sanitærinstallasjoner inkludert vannklosett og fordelerskap for vann bak badinnredning

Tømrer Montering av trekonstruksjoner

Utførelse av tømrerarbeid og montering av trekonstruksjoner i ombygging

Tømrerarbeid for montering av nye trekonstruksjoner i bygget

Vinduer Innvendige vinduer

Antall: 7

3 vinduer i stue, 1 i soverom 1, 1 i soverom 2, 1 i kjøkken

Vinduer i oppholdsrom som inngår i ombyggingen

Betong Montering av bærende betongkonstruksjoner

🧱 Betong

Montering av bærende metall- eller betongkonstruksjoner i ombygging

Bærende betongkonstruksjoner for endring av bæresystem

Trapper Innvendig trapp

Antall: 1

Eksisterende eller oppgradert trapp mellom etasjer i ombygging

Stål Montering av bærende metallkonstruksjoner

🧱 Metall

Montering av bærende metall- eller betongkonstruksjoner i ombygging

Bærende metall- eller betongkonstruksjoner for endring av bæresystem

Plantegning

Enebolig 120.5 m²

Etasje 1 120.5 m²

Rom Areal Vinduer Dører
Stue 101 35.2 m² 3 2
Sovev. 1 102 14.5 m² 1 1
Bad 103 8.5 m² 0 1
Sovev. 2 104 12.0 m² 1 1
Gang 105 10.5 m² 0 3
Kjøkken 106 15.8 m² 1 1

Hendelser

13.04.2026 277/19 Hyggenstranda 19 - Søknad om tillatelse i ett trinn - Ombygging - Endring av bærende konstruksjoner